
Omschrijving
DUURZAAM EN GOED ONDERHOUDEN GEZINSHUIS MET 4 SLAAPKAMERS, RUIME TUIN IN EEN FIJNE WOONOMGEVING NABIJ DIVERSE VOORZIENINGEN
Algemeen
• Bouwjaar 1990
• Mooi afgewerkt huis met een ruime tuin met overdekt terras en tuinhuis
• Goed onderhouden en afgewerkt in een lichte kleurstelling
• Met airco-unit op de begane grond en eerste verdieping
• Totale woonoppervlakte ca. 108 m²
• Totaal perceeloppervlakte ca. 255 m²
• Inhoud ca. 424 m³
• Isolatie: dakisolatie, muurisolatie, vloerisolatie
• Hardhouten kozijnen met dubbelglas
• Deze woning beschikt gedeeltelijk over rolluiken
• Deze woning beschikt over 10 zonnepanelen bouwjaar 2020
• Met 4 slaapkamers; een fijn gezinshuis
• Energielabel B
• CV installatie Remeha Calenta bouwjaar 2010 eigendom
Ligging
• Gelegen in een rustige woonwijk nabij winkels en basisschool
• Op loopafstand van o.a. wandelgebied
• Met de auto ca. 15 minuten naar de autosnelweg
• NS-Station op ca. 10 minuten fietsafstand
Indeling
Begane grond
• Hal met tegelvloer vloer, modern toilet met wandcloset en fonteintje, meterkast 4 groepen 1 aardlekschakelaar en
krachtstroom
• Gezellige L-vormige doorzon woonkamer met tegelvloer beschikt over veel lichtinval en een airco
• Open keuken met tegelvloer en een nette hoekkeuken v.v. de volgende apparatuur: inductiekookplaat,
afzuigkap, koelkast en combimagnetron, een loopdeur biedt toegang tot het terras
1e verdieping
• Trap naar de verdieping
• Vanaf de overloop met airco is er toegang tot 3 slaapkamers en de badkamer
• Gehele verdieping voorzien van een laminaatvloer
• De grootste slaapkamer heeft inbouwkast en de dakkapel biedt een leuk uitzicht aan de voorzijde
• De tweede slaapkamer ligt aan de achterzijde en betreft een leuke kinder-, logeer- of werkkamer
De derde slaapkamer is gelegen aan de voorzijde en betreft eveneens een leuke kinderkamer/logeerkamer of
werkkamer met dakkapel
• Complete nette badkamer met ligbad, douche, toilet en een vaste wastafel in een badkamermeubel
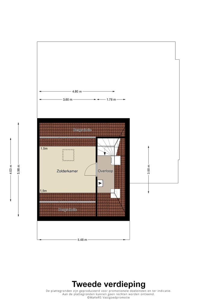
2de verdieping
• Bereikbaar middels een vaste gelakte trap met aan de achterzijde een klein dakraam
• Voorzolder met c.v.-opstelling, wasmachine/droger aansluiting en omvormer zonnepanelen
• Ruime zolderkamer met tapijtvloer; een ideale werkkamer of in te richten als 4e slaapkamer
Tuin
• De goed onderhouden achtertuin heeft een ideale zonligging op het zuiden
• De tuin beschikt over een overdekt terras en een gazon
• Vanuit de tuin is er toegang tot een ruim houten tuinhuis met een overdekte zithoek
Garage
• De garage is voorzien van een elektrische kantel poort met loopdeur en een gootsteen
KORTOM: WONEN IN EEN RUIME HALFVRIJSTAANDE WONING MET EEN HEERLIJKE ZONNIGE TUIN IN EEN GEZELLIGE KINDVRIENDELIJKE WOONWIJK
Ter bescherming van de belangen van zowel koper als verkoper, wordt uitdrukkelijk gesteld dat een koopovereenkomst met betrekking tot deze onroerende zaak eerst dan tot stand komt nadat koper en verkoper de koopovereenkomst hebben getekend (“schriftelijkheidsvereiste”).
De termijn die wordt opgenomen voor eventuele (overeengekomen) ontbindende voorwaarden (bv. Financiering) is in de regel 4 tot 6 weken na het sluiten van de mondelinge wilsovereenkomst.
De waarborgsom/bankgarantie is 10% van de koopsom. De koper dient deze 2 weken ná het vervallen van de ontbindende voorwaarden bij de desbetreffende notaris te deponeren.
Koper is te allen tijde gerechtigd voor eigen rekening een bouwkundige keuring te (laten) verrichten dan wel andere adviseurs te raadplegen teneinde een goed inzicht te verkrijgen over de staat van onderhoud.
Deze informatie is door ons met de nodige zorgvuldigheid samengesteld. Onzerzijds wordt echter geen enkele aansprakelijkheid aanvaard voor enige onvolledigheid, onjuistheid of anderszins, dan wel de gevolgen daarvan. Alle opgegeven maten en oppervlakten zijn indicatief.
Kenmerken
Overdracht
- Laatste vraagprijs
- € 350.000 kosten koper
- Vraagprijs per m²
- € 3.241
- Status
- Verkocht
Bouw
- Soort woonhuis
- Eengezinswoning, 2-onder-1-kapwoning
- Soort bouw
- Bestaande bouw
- Bouwjaar
- 1990
- Soort dak
- Samengesteld dak bedekt met pannen
Oppervlakten en inhoud
- Gebruiksoppervlakten
- Wonen
- 108 m²
- Overige inpandige ruimte
- 19 m²
- Gebouwgebonden buitenruimte
- 29 m²
- Externe bergruimte
- 7 m²
- Perceel
- 255 m²
- Inhoud
- 424 m³
Indeling
- Aantal kamers
- 7 kamers (4 slaapkamers)
- Aantal badkamers
- 1 badkamer en 1 apart toilet
- Badkamervoorzieningen
- Douche, ligbad, toilet, wastafel, en wastafelmeubel
- Aantal woonlagen
- 3 woonlagen
- Voorzieningen
- Airconditioning, dakraam, mechanische ventilatie, rolluiken, TV kabel, en zonnepanelen
Energie
- Energielabel
- Isolatie
- Dakisolatie, dubbel glas, muurisolatie en vloerisolatie
- Verwarming
- Cv-ketel
- Warm water
- Cv-ketel
- Cv-ketel
- Remeha Calenta (gas gestookt combiketel uit 2010, eigendom)
Kadastrale gegevens
- SITTARD S 345
- Kadastrale kaart
- Oppervlakte
- 255 m²
- Eigendomssituatie
- Volle eigendom
Buitenruimte
- Ligging
- In woonwijk
- Tuin
- Achtertuin en voortuin
- Achtertuin
- 128 m² (13,00 meter diep en 9,85 meter breed)
- Ligging tuin
- Gelegen op het zuiden
Bergruimte
- Schuur/berging
- Vrijstaande houten berging
Garage
- Soort garage
- Aangebouwde stenen garage
- Capaciteit
- 1 auto
- Voorzieningen
- Elektra en stromend water
- Isolatie
- Geen isolatie
Parkeergelegenheid
- Soort parkeergelegenheid
- Op eigen terrein en openbaar parkeren
Foto's 39
© 2001-2026 funda






































