Dit huis op Funda: https://www.funda.nl/detail/koop/sittard/huis-koekoekstraat-13/43872042/

Omschrijving
Deze tussenwoning is rustig en centraal gelegen in de wijk Limbrichterveld nabij winkels, scholen en met een snelle verbinding naar de autosnelweg en uitvalswegen. Het pand is geheel voorzien van kunststof kozijnen met dubbelglas m.u.v. het wc raampje. Er zijn 44 zonnepanelen (2014) aanwezig die uiteraard zorgen voor een lage elektriciteitsrekening. Energielabel B! De woning beschikt nagenoeg geheel over rolluiken en er is eveneens 1 screen aanwezig. Op de begane grond bevindt zich de inpandige garage. De tuin is bereikbaar vanuit de bijkeuken op de begane grond en voorzien van een overdekt terras. Ideale woning voor starters!
!! VIRTUEEL BEZICHTIGEN VIA DE BUTTON OP DE WEBSITE !!
Indeling
De entree/hal is voorzien van een laminaatvloer. Hier bevindt zich verder de meterkast (automatische groepenkast) en toegang tot de garage, bijkeuken en extra (slaap)kamer. Vanuit de bijkeuken is er ook toegang tot de tuin.
De bijkeuken is voorzien van een aanrecht met warm/koud water en de aansluitingen voor de wasapparatuur. De (slaap) kamer is voorzien van een laminaatvloer.
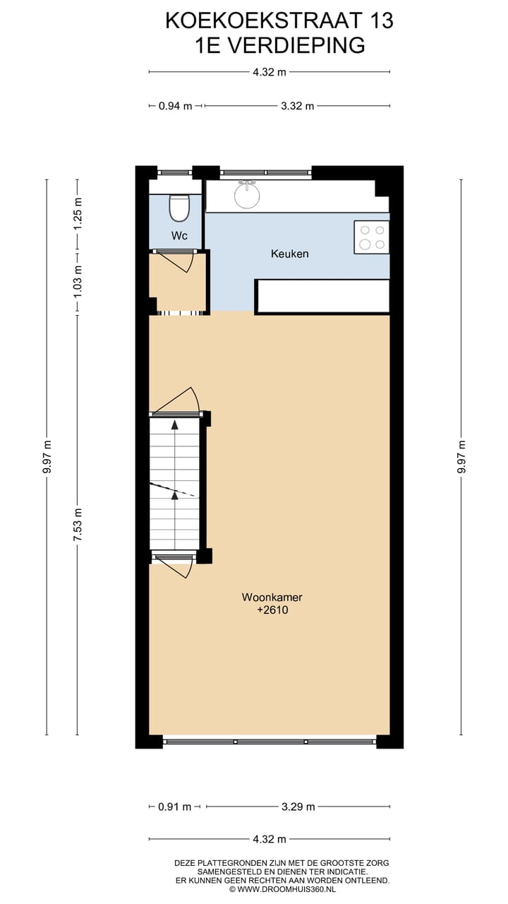
Eerste verdieping
De eerste verdieping is voorzien van een laminaatvloer. Er is een apart toilet. De woonkamer staat in open verbinding met de keuken. De keuken is mooi ruim en voorzien van koelkast, 5-pitsgaskookplaat, oven en afzuigkap. De vaatwasser gaat mee, de aansluiting blijft uiteraard zitten.
Tweede verdieping
De overloop geeft toegang tot de 3 slaapkamers. 1 van de slaapkamers heeft een muurkast en alle slaapkamers zijn voorzien van een laminaatvloer. De badkamer is voorzien van een douche, wastafel en 2de toilet. Verder is er op de overloop een bergkast, alwaar de cv-ketel is geplaatst (Intergas, huurtoestel dient door de koper overgenomen te worden).
Bijzonderheden
- Tussengelegen drive-in woning met inpandige garage en 4 slaapkamers en tuin;
- Geheel voorzien van dubbelglas in kunststof kozijnen m.u.v. het wc raampje;
- Nagenoeg geheel rolluiken, 1 screen en zonnepanelen;
- Nabij winkelvoorzieningen, scholen en de belangrijkste uitvalswegen;
- Verzorgde tuin met overdekt terras.
Tot slot:
- Deze verkoopinformatie is met de nodige zorgvuldigheid samengesteld. Hierbij zijn wij deels afhankelijk van informatie die wij van derden ontvangen. Aan onjuistheden en/of onvolkomenheden kunt u echter geen rechten ontlenen. Indien bepaalde informatie voor u van wezenlijk belang is dan adviseren wij u deze op juistheid te controleren. Onzerzijds wordt geen aansprakelijkheid aanvaardt voor enige onvolledigheid, onjuistheid of anderszins, dan wel de gevolgen daarvan. Alle opgegeven maten en oppervlakten zijn indicatief;
- Koper is te allen tijde gerechtigd om voor eigen rekening een bouwkundig onderzoek te (laten) verrichten, dan wel andere adviseurs te raadplegen teneinde een goed inzicht te verkrijgen in de staat van onderhoud of andere aspecten van de onroerende zaak. Koper dient bij het doen van een bod wel direct aan te geven of hij een dergelijk onderzoek wenst;
- De waarborgsom/bankgarantie is 10% van de koopsom. De koper dient deze 1 week na het vervallen van de ontbindende voorwaarden bij de desbetreffende notaris te deponeren;
- Ter bescherming van de belangen van zowel koper als verkoper, wordt uitdrukkelijk gesteld dat een koopovereenkomst met betrekking tot deze onroerende zaak eerst dan tot stand komt, nadat koper en verkoper de koopovereenkomst hebben getekend ("schriftelijkheidsvereiste").
Kenmerken
Overdracht
- Laatste vraagprijs
- € 200.000 kosten koper
- Vraagprijs per m²
- € 1.709
- Status
- Verkocht
Bouw
- Soort woonhuis
- Eengezinswoning, tussenwoning (drive-in woning)
- Soort bouw
- Bestaande bouw
- Bouwjaar
- 1970
- Soort dak
- Plat dak bedekt met bitumineuze dakbedekking
Oppervlakten en inhoud
- Gebruiksoppervlakten
- Wonen
- 117 m²
- Overige inpandige ruimte
- 15 m²
- Gebouwgebonden buitenruimte
- 12 m²
- Perceel
- 102 m²
- Inhoud
- 466 m³
Indeling
- Aantal kamers
- 5 kamers (4 slaapkamers)
- Aantal badkamers
- 1 badkamer en 1 apart toilet
- Badkamervoorzieningen
- Douche, toilet, en wastafel
- Aantal woonlagen
- 3 woonlagen
- Voorzieningen
- Mechanische ventilatie, natuurlijke ventilatie, rolluiken, en zonnepanelen
Energie
- Energielabel
- Isolatie
- Dubbel glas
- Verwarming
- Cv-ketel
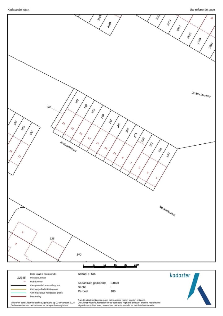
Kadastrale gegevens
- SITTARD L 186
- Kadastrale kaart
- Oppervlakte
- 102 m²
- Eigendomssituatie
- Volle eigendom
Buitenruimte
- Ligging
- Aan rustige weg en in woonwijk
- Tuin
- Achtertuin
Garage
- Soort garage
- Inpandig
- Capaciteit
- 1 auto
- Voorzieningen
- Elektra
Parkeergelegenheid
- Soort parkeergelegenheid
- Op eigen terrein en openbaar parkeren
Foto's 33
© 2001-2026 funda
































