
Omschrijving
De biedingstermijn voor deze woning sluit op: Maandag 11 augustus om 23.59 uur.
Ben jij op zoek naar een woning waar je jouw eigen stempel op kunt drukken? Dan is dit jouw kans! Deze charmante ‘jaren 50’ tussenwoning is dé perfecte basis voor starters of handige klussers.
Deze woning ligt in de prettige wijk ‘Overhoven’ met een school, voetbalclub en supermarkt in de buurt. Je woont hier rustig, maar met alle dagelijkse voorzieningen binnen handbereik.
Indeling
Souterrain: Praktische provisiekelder, ideaal voor opslag of voorraad.
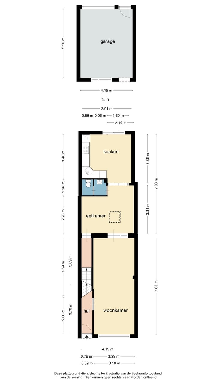
Begane grond:
Hal met een toegangsdeur tot de woon/eetkamer. De woning beschikt over een lichte woonkamer en een aparte eetkamer. Toilet met separate wastafel. In de aanbouw bevindt zich een ruime keuken in hoekopstelling.
Middels een schuifpui is de omsloten tuin toegankelijk.
Tuin:
De omsloten tuin is voorzien van een terras. Aan de achterzijde van de tuin is de garage gelegen welke plaats biedt voor 1 auto. De garage is voorzien van een sectionaalpoort en een aparte loopdeur. Perfect als extra opslagruimte of klusruimte
De tuin is tevens bereikbaar middels een achterom.
1e verdieping:
Overloop, twee ruime slaapkamers, waarvan één met een extra wastafel. De grote slaapkamer is voorzien van een inbouwkast. De badkamer is voorzien van een bad-douchecombinatie en een wastafel met opbergmeubel.
2e verdieping:
Middels een vaste trap is de 2e verdieping bereikbaar.
Hier bevindt zich de derde slaapkamer.
De aanwezigheid van bergschotten zorgt voor extra veel bergruimte.
Bijzonderheden
Centrale ligging;
Betaalbaar wonen met ruimte en potentie;
Geheel voorzien van kunststof kozijnen met dubbele beglazing;
De woning is voorzien van rolluiken;
Cv installatie: eigendom/ 2012.
Deze verkoopinformatie is met de nodige zorgvuldigheid samengesteld. Hierbij zijn wij deels afhankelijk van informatie die wij van derden ontvangen. Aan onjuistheden en/of onvolkomenheden kunt u echter geen rechten ontlenen. Indien bepaalde informatie voor u van wezenlijk belang is dan adviseren wij u deze op juistheid te controleren. Onzerzijds wordt geen aansprakelijkheid aanvaardt voor enige onvolledigheid, onjuistheid of anderszins, dan wel de gevolgen daarvan.
Koper is te allen tijde gerechtigd voor eigen rekening een bouwkundige keuring te (laten) verrichten dan wel andere adviseurs te raadplegen teneinde een goed inzicht te verkrijgen over de staat van onderhoud.
Kenmerken
Overdracht
- Laatste vraagprijs
- € 189.000 kosten koper
- Vraagprijs per m²
- € 1.929
- Status
- Verkocht
Bouw
- Soort woonhuis
- Eengezinswoning, tussenwoning
- Soort bouw
- Bestaande bouw
- Bouwjaar
- 1952
- Specifiek
- Kluswoning
- Soort dak
- Zadeldak bedekt met kunststof en pannen
- Keurmerken
- Energie Prestatie Advies
Oppervlakten en inhoud
- Gebruiksoppervlakten
- Wonen
- 98 m²
- Overige inpandige ruimte
- 32 m²
- Externe bergruimte
- 23 m²
- Perceel
- 134 m²
- Inhoud
- 459 m³
Indeling
- Aantal kamers
- 4 kamers (3 slaapkamers)
- Aantal badkamers
- 1 badkamer en 1 apart toilet
- Badkamervoorzieningen
- Wastafel, wastafelmeubel, en zitbad
- Aantal woonlagen
- 2 woonlagen, een zolder, en een kelder
- Voorzieningen
- Dakraam, rolluiken, en schuifpui
Energie
- Energielabel
- D
- Isolatie
- Dubbel glas
- Verwarming
- Cv-ketel
- Warm water
- Cv-ketel
- Cv-ketel
- HR ketel combi (gas gestookt combiketel uit 2012, eigendom)
Kadastrale gegevens
- SITTARD-GELEEN K 784
- Kadastrale kaart
- Oppervlakte
- 134 m²
- Eigendomssituatie
- Volle eigendom
Buitenruimte
- Ligging
- Aan rustige weg
- Tuin
- Achtertuin
- Achtertuin
- 30 m² (6,00 meter diep en 5,00 meter breed)
- Ligging tuin
- Gelegen op het zuidoosten bereikbaar via achterom
Garage
- Soort garage
- Aangebouwde stenen garage
Parkeergelegenheid
- Soort parkeergelegenheid
- Op eigen terrein en openbaar parkeren
Foto's 32
© 2001-2025 funda































