Dit huis op Funda: https://www.funda.nl/detail/koop/sneek/huis-looxmastraat-42/43716444/

Omschrijving
Binnen vijf minuten wandelen naar het gezellige centrum van Sneek? Check. Wonen nabij de stadsgrachten? Check. Een woning die écht af is in een charmante en gezellige straat? Check! De Looxmastraat 42 in Sneek heeft het allemaal! We nemen je graag mee naar deze oude tussenwoning in een modern jasje.
Je woont hier in de Noordoosthoek, tegen de rand van de binnenstad. Hierdoor heb je vrijwel alle voorzieningen op steenworp afstand. Er zijn verschillende supermarkten, scholen en verenigingen in de omgeving. De wijk zelf heeft een gemoedelijke en kindvriendelijke sfeer. Moet je toch de stad uit? Dan rijd je gemakkelijk de rondweg op. Daarnaast beschikt Sneek over een treinverbinding naar Stavoren en Leeuwarden en is er een busverbinding naar onder andere Heerenveen, Bolsward en Lemmer.
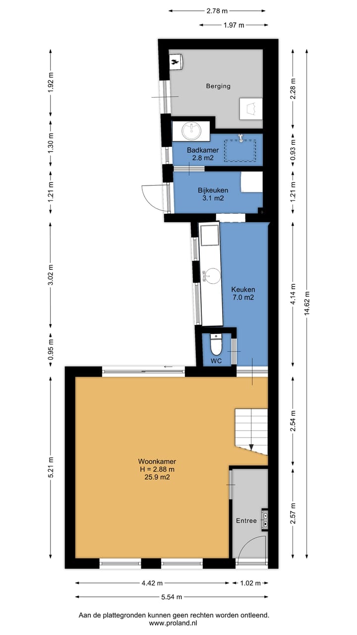
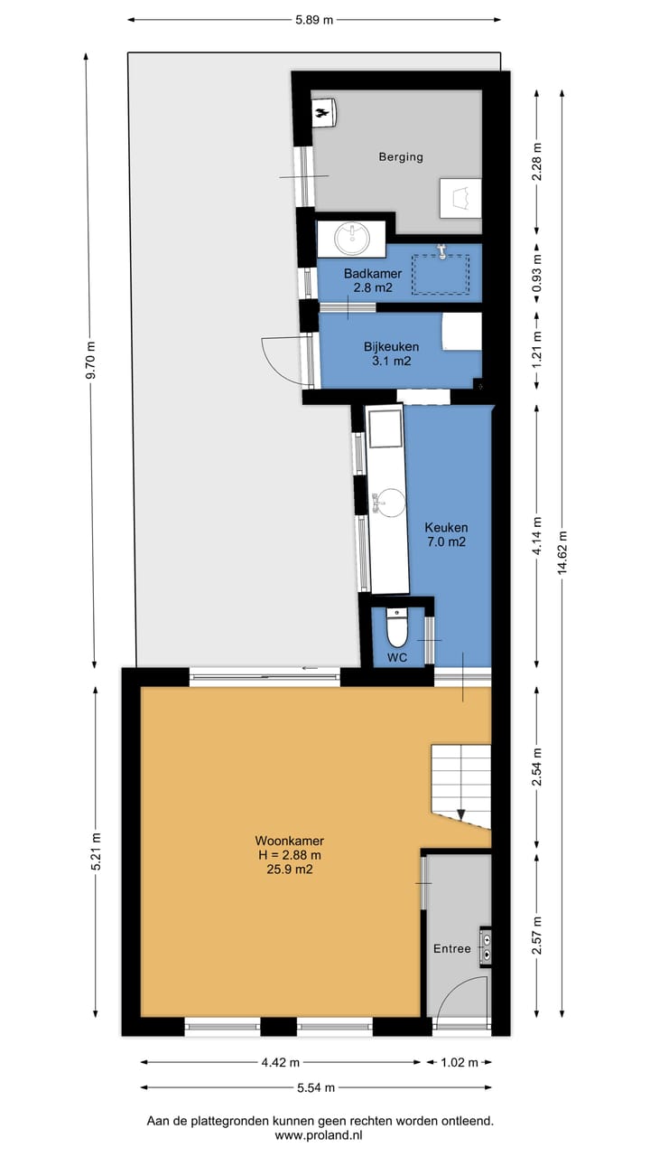
Bij binnenkomst valt direct op hoe netjes de woning is afgewerkt. Je komt binnen in de hal, die toegang geeft tot de woonkamer. Hier ligt een prachtige visgraatvloer met vloerverwarming die doorloopt over het grootste deel van de begane grond. De karakteristieke elementen in de woonkamer zijn behouden gebleven dankzij het mooie balkenplafond. Vanuit de woonkamer heb je een gezellig uitzicht op het ruim opgezette straatbeeld. Aan de achterzijde van de woonkamer vind je een nieuw geplaatste schuifpui die toegang geeft tot de onderhoudsvrije tuin op het zuiden. Deze tuin, die in 2021 is aangelegd, biedt de perfecte gelegenheid om op warme dagen je woonkamer te verlengen met het buitenleven!
Via de woonkamer kom je in de keuken, die ook toegang biedt tot het toilet. Deze sfeervolle keuken is in 2024 gerenoveerd, en dat zie je. Dankzij de praktische kastenwand heb je voldoende opbergruimte. Achter de keuken bevindt zich een bijkeuken met toegang tot de tuin, een extra berging met witgoedaansluitingen, de cv-opstelling en de badkamer. Ook de badkamer is recent gerenoveerd. Je beschikt hier over een royale inloopdouche en een fraai wastafelmeubel.
Via de trap in de woonkamer kom je op de eerste verdieping, waar de slaapkamer zich bevindt. Ook deze verdieping is in 2024 gerenoveerd. Het betreft een royale ruimte met veel daglicht, een handige op maat gemaakte inbouwkast en recent geplaatste dakramen. Door de royale afmetingen is het zelfs mogelijk om hier een tweede slaapkamer te realiseren.
Er zijn diverse maatregelen getroffen om de duurzaamheid van de woning te verbeteren. Zo zijn er acht zonnepanelen geplaatst en is het dak volledig geïsoleerd. Dit heeft geresulteerd in een energielabel A. Daarnaast geniet je in deze woning van veel privacy, want er is geen inkijk van voor- of achterburen.
Het is echt een kwestie van spullen pakken en intrekken. Door de recente renovaties is de woning helemaal af. Dit, in combinatie met de gezellige wijk, maakt wonen hier heerlijk!
Bijzonderheden:
- Energielabel A met 8 zonnepanelen
- Recent gerenoveerde keuken en badkamer (2024)
- Schilderwerk buitenzijde (2023)
- Meterkast vernieuwd, elektra deels vervangen
- Wonen nabij de grachten en het stadscentrum
Kenmerken
Overdracht
- Laatste vraagprijs
- € 247.500 kosten koper
- Vraagprijs per m²
- € 3.867
- Status
- Verkocht
Bouw
- Soort woonhuis
- Eengezinswoning, tussenwoning
- Soort bouw
- Bestaande bouw
- Bouwjaar
- 1878
- Soort dak
- Zadeldak bedekt met pannen
Oppervlakten en inhoud
- Gebruiksoppervlakten
- Wonen
- 64 m²
- Externe bergruimte
- 6 m²
- Perceel
- 85 m²
- Inhoud
- 259 m³
Indeling
- Aantal kamers
- 2 kamers (1 slaapkamer)
- Aantal badkamers
- 1 badkamer en 1 apart toilet
- Badkamervoorzieningen
- Douche en wastafelmeubel
- Aantal woonlagen
- 2 woonlagen
- Voorzieningen
- Dakraam
Energie
- Energielabel
- A
- Isolatie
- Dakisolatie, HR-glas en vloerisolatie
- Verwarming
- Cv-ketel
- Warm water
- Cv-ketel
- Cv-ketel
- Gas gestookt combiketel, eigendom
Kadastrale gegevens
- SNEEK A 1234
- Kadastrale kaart
- Oppervlakte
- 85 m²
- Eigendomssituatie
- Volle eigendom
Buitenruimte
- Ligging
- Aan rustige weg en in woonwijk
- Tuin
- Achtertuin en voortuin
- Achtertuin
- 27 m² (9,00 meter diep en 3,00 meter breed)
- Ligging tuin
- Gelegen op het zuiden
Bergruimte
- Schuur/berging
- Aangebouwde stenen berging
Foto's 59
© 2001-2025 funda


























































