Dit huis op Funda: https://www.funda.nl/detail/koop/sneek/huis-meeuwenlaan-75/43834705/

Omschrijving
Indrukwekkend! Deze riante 2/1-kapwoning ligt op een zeer vrije, groene en ruim opgezette en rustige locatie in de woonwijk Hemdijk. De woning is oorspronkelijk gebouwd in 1971 en is aanzienlijk vergroot (2011), smaakvol gemoderniseerd en verbouwd tot een comfortabele eengezinswoning met zo'n 216m2 woonoppervlak en verduurzaamd tot een energielabel A. De inrichting en -aanleg van de tuin is de afgelopen jaren compleet vernieuwd en de achtertuin biedt zon tot in de late uren. Kortom een heerlijk ruim leefhuis, instapklaar en perfect voor een gezin met opgroeiende kinderen! De aantrekkelijke woonwijk Hemdijk is ruim opgezet en groen en ligt direct het centrum van de stad, trein- en busstation, scholen, ziekenhuis en uitvalswegen.
Begane grond:
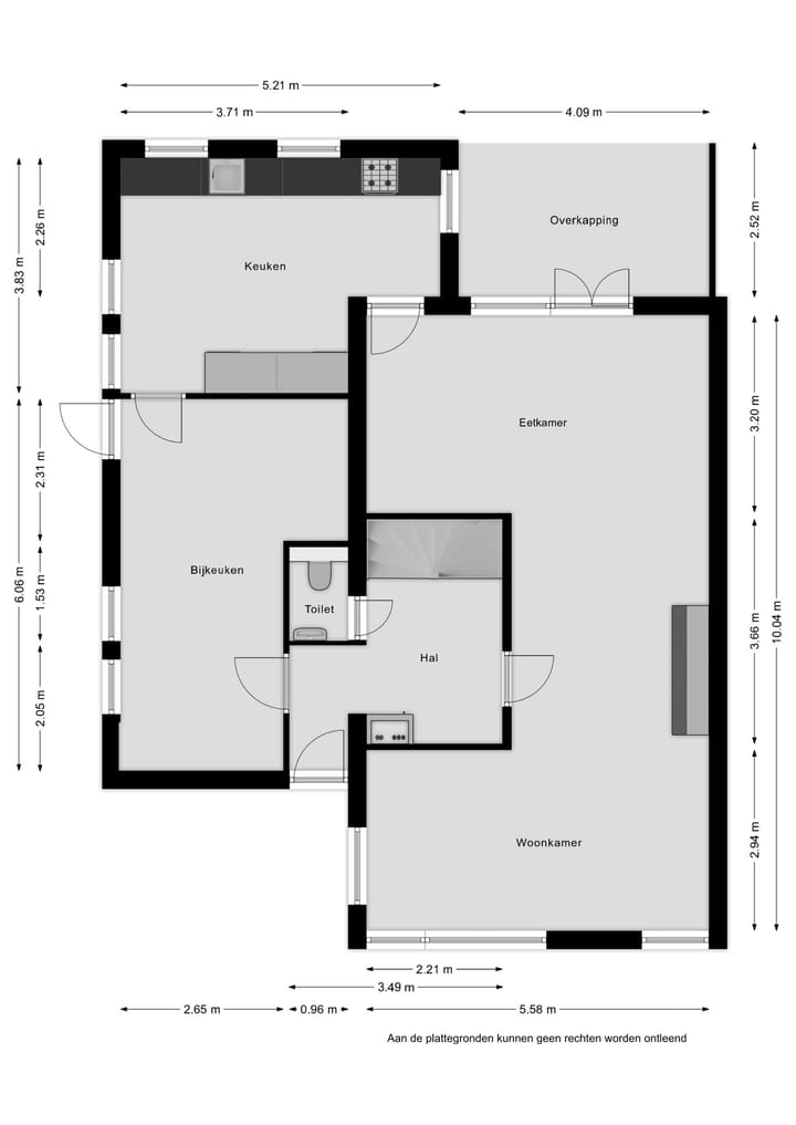
Entree. Ruime hal (ca. 10m2) met open trapopgang en garderobe. Moderne wc, vernieuwd in 2021, ingericht met wandcloset en fonteintje. Meterkast (11 gr./aardlek). Deur met glas naar de ruime U-vormige living (ca. 48m2) met zitkamer aan de voorzijde en eetkamer aan de achterzijde. Centraal in de ruimte gelegen haardpartij. Tuindeuren in de eetkamer naar overdekte loungehoek/tuinkamer en achtertuin. Ruime eetkeuken (ca. 18m2) met moderne inrichting voorzien van inbouwapparatuur. De keukeninrichting is geplaatst in 2011 en in 2024 compleet gerenoveerd met nieuw front, composiet aanrechtblad, spoelbak, gaskookplaat en schouw. De oven, magnetron en vaatwasmachine zijn van 2021, de ijskast van 2023 en de afzuigkap van 2011. De grote bijkeuken/berging (ca. 18m2) is zowel vanuit de hal als de keuken bereikbaar, wordt gebruikt als wasruimte (wasmachine/wasdroger aansluiting), heeft een aanrechtblok, met extra plek voor witgoed en het geheel biedt veel bergruimte. Buitendeur opzij.
Recentelijk, onderhoudsvriendelijk, aangelegde voortuin en oprit. De oprit biedt plek voor meerdere auto's. Er is een dubbel stopcontact en een buitenkraan aanwezig. De toegang opzij is afsluitbaar en tevens geschikt als stalling of bergruimte. De achtertuin ligt op het zuidoosten, is circa 15 meter diep en 13 meter breed en biedt veel privacy. De tuininrichting is compleet vernieuwd, opgehoogd en aangelegd met terrassen, gazon, borders en Lariks schuttingen met verlichting. De nieuwe houten berging heeft een schuifdeur als toegangsdeur, is ca. 11m2 en voorzien van elektra en een regenwaterreservoir. Aansluitend een groot zonneterras met pergola. De overkapping grenzend aan de woning is een heerlijke tuinkamer/loungehoek voor het gehele jaar, heeft inbouwverlichting en een daklicht. Het terras is hier aangelegd met keramische tegels. In de achtertuin zijn tevens stopcontacten aanwezig.
1e verdieping:
Ruime overloop met ca. 80cm diepe kastenwand. In 2021 vernieuwde, volledig betegelde, badkamer (ca. 5m2) ingericht met 2e toilet (wandcloset), inloopdouche, breed wastafelmeubel, geïntegreerde kranen, (led) inbouwverlichting en mechanische ventilatie. Een grote slaapkamer (ca. 17m2) aan de voorzijde en een grote slaapkamer (ca. 18m2) aan de achterzijde. Toegang tot balkon/dakterras (ca. 9m2). De opbouw (2011) boven de bijkeuken/keuken biedt ruimte voor twee grote ruimtelijke slaapkamers (ca. 13/14m2) met wastafelmeubel en een vide met entresol en dak-/kantelraam. De overloop en slaapkamers zijn voorzien van parketvloer.
2e verdieping:
Vaste trap. Ruime overloop/hobby/berging (ca. 11m2) met opstelling cv-combiketel en dak-/kantelraam. Grote vijfde slaapkamer (ca. 16m2) met twee grote dak-/kantelramen en extra berging achter knieschotten.
Info:
Energielabel A. Volledig geïsoleerd (m.u.v. de begane grond vloer). Spouwmuurisolatie (EPS HR++ parels 2021). CV (Remeha Avanta HR-combiketel 2022 (CW5); eigendom). 13 Zonnepanelen (2022) 395Wp per stuk. Airco's (inverters) in woonkamer en keuken. Keukenboiler. Elektrische radiator op overloop en in badkamer. Inbouwverlichting. Paneeldeuren met smaakvol deurbeslag. Pvc vloer begane grond. Parketvloer 1e verdieping. Buitenschilderwerk professioneel uitgevoerd in 2022. Buitengevels gereinigd en geïmpregneerd in 2024. Zinken goten en hemelwaterafvoeren. Red cedar bekleding opbouw. Lariks schuttingen. Tuinaanleg (2022-2024). Badkamer en wc (2021). Renovatie keuken (2024). Opbouw (2011). Bouwjaar 1971. Eigen grond 411m2. Gebruiksoppervlak wonen ca. 216m2. Berging ca. 11m2. Inhoud ca. 655m3.
Riante 2/1-kapwoning op groene en vrije locatie direct bij het centrum, smaakvol gemoderniseerd, instapklaar en met een energielabel A!
Bezichtiging uitsluitend via de makelaar.
Kenmerken
Overdracht
- Laatste vraagprijs
- € 579.500 kosten koper
- Vraagprijs per m²
- € 2.683
- Status
- Verkocht
Bouw
- Soort woonhuis
- Eengezinswoning, 2-onder-1-kapwoning
- Soort bouw
- Bestaande bouw
- Bouwjaar
- 1971
- Soort dak
- Zadeldak bedekt met pannen
Oppervlakten en inhoud
- Gebruiksoppervlakten
- Wonen
- 216 m²
- Overige inpandige ruimte
- 5 m²
- Gebouwgebonden buitenruimte
- 10 m²
- Externe bergruimte
- 11 m²
- Perceel
- 411 m²
- Inhoud
- 655 m³
Indeling
- Aantal kamers
- 6 kamers (5 slaapkamers)
- Aantal badkamers
- 1 badkamer en 1 apart toilet
- Badkamervoorzieningen
- Inloopdouche, toilet, en wastafelmeubel
- Aantal woonlagen
- 3 woonlagen
- Voorzieningen
- Airconditioning, dakraam, mechanische ventilatie, rookkanaal, TV kabel, en zonnepanelen
Energie
- Energielabel
- Isolatie
- Dakisolatie, dubbel glas, HR-glas en muurisolatie
- Verwarming
- Cv-ketel
- Warm water
- Cv-ketel
- Cv-ketel
- Remeha Avanata Ace HR (CW5) (gas gestookt combiketel uit 2022, eigendom)
Kadastrale gegevens
- SNEEK A 5000
- Kadastrale kaart
- Oppervlakte
- 411 m²
- Eigendomssituatie
- Volle eigendom
Buitenruimte
- Ligging
- In woonwijk
- Tuin
- Achtertuin, voortuin en zijtuin
- Achtertuin
- 195 m² (15,00 meter diep en 13,00 meter breed)
- Ligging tuin
- Gelegen op het zuidoosten bereikbaar via achterom
- Balkon/dakterras
- Balkon aanwezig
Bergruimte
- Schuur/berging
- Vrijstaande houten berging
- Voorzieningen
- Elektra
Parkeergelegenheid
- Soort parkeergelegenheid
- Op eigen terrein en openbaar parkeren
Foto's 63
© 2001-2026 funda






























































