Dit huis op Funda: https://www.funda.nl/detail/koop/soest/appartement-de-akkeren-30/43119478/

Omschrijving
U HEEFT EEN OBJECTCODE NODIG ALS U ONS BELT. DE CODE IS: 8 4 7 2 2
Welkom aan De Akkeren 30! Dit fijne appartement met één slaapkamer biedt een heerlijke leefruimte en volop kansen om er je eigen moderne thuis van te maken. De woning is gelegen in een rustige, groene woonomgeving, op korte afstand van winkels, openbaar vervoer en het centrum van Soest.
Locatie:
Het appartement ligt in een rustige straat met voldoende parkeergelegenheid en veel groen in de omgeving. Binnen enkele minuten bereik je winkels, openbaar vervoer en uitvalswegen richting Amersfoort en Utrecht. Ook natuurgebieden zoals de Soesterduinen liggen op korte afstand.
Ga je mee naar binnen?
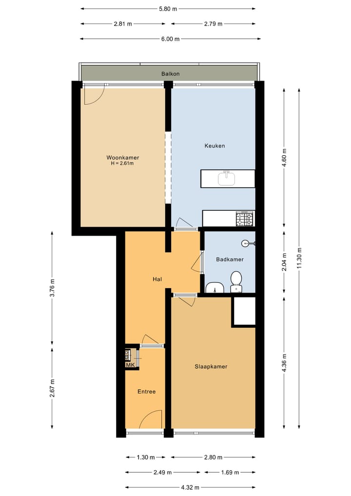
De woonkamer is opvallend licht dankzij de brede raampartijen en biedt voldoende ruimte voor een gezellige zit- en eethoek. Aansluitend vind je de keuken, praktisch ingedeeld en voorzien van een spoeleiland, waardoor je prettig kunt koken en toch in contact blijft met de woonkamer. Met een frisse afwerking kun je hier een eigentijdse woonkeuken creëren die helemaal bij jouw stijl past.
De slaapkamer is ruim genoeg voor een tweepersoonsbed en een kledingkast. De naastgelegen badkamer beschikt over een douche, wastafel en toilet, eenvoudig van opzet, maar met veel potentie voor een moderne update.
Ga je mee naar buiten?
Aan de achterzijde bevindt zich een balkon, waar je op zonnige dagen heerlijk buiten kunt zitten. Een fijne plek om te ontspannen met een kop koffie of een goed boek.
Bijzonderheden
- Servicekosten € 197,- per maand
- Stookkosten € 80,- per maand
- Het betreft een voormalige huurwoning van de Alliantie
- 'Niet zelf bewoond-', 'Asbest-' en 'Ouderdomsclausule' van toepassing
- Verkoper behoudt zich het recht van gunning voor
- Vaste projectnotaris;
- Verkoper verkoopt de woning voor eigen gebruik (of gebruik door eerstegraads familielid), welke persoon daar zijn/haar hoofdverblijf gaat hebben;
- Verkoper verkoopt niet aan een belegger of koper met meer onroerend goed op zijn naam;
- Het betreft een voormalige huurwoning van de Alliantie;
- 'Niet zelf bewoond-', 'Asbest-' en 'Ouderdomsclausule' van toepassing;
- Verkoper behoudt zich het recht van gunning voor tot tekenen van de koopakte;
****VOORRANGSREGELING DE ALLIANTIE ****
Als sociale huurder (bij de Alliantie of een andere corporatie) krijg je vaak voorrang op de koopwoningen en/of middensegment huurwoningen die wij aanbieden. Dit doen wij, omdat wij streven naar een passende woning voor zoveel mogelijk mensen. De woning die wordt achtergelaten kan dan weer aangeboden worden aan mensen die op de wachtlijst staan voor een betaalbare huurwoning. Zo krijgen meer mensen de kans om te wonen in een huis die past bij hun situatie.
Zijn er meerdere huurders die hebben geboden? Dan krijgt de huurder met het hoogste bod (in een bepaalde voorrangscategorie) voorrang. De voorrang is tot de uiterste inschrijfdatum bij inschrijving geldig. Wil je aanspraak maken op de voorrang? Meld je dan aan voor de e-mail updates op ikzoek.nl, geef je huidige woonsituatie op bij de bezichtigingsaanvraag en meld het bij het uitbrengen van je bod bij de makelaar. De voorrangsregeling vervalt bij een bod onder de vraagprijs. Let op; voorrang betekent dat we met u als eerste in gesprek zullen gaan. We verkopen de woning niet onder de getaxeerde marktwaarde, en deze kan hoger zijn dan de vraagprijs.
Benieuwd naar de complete voorrangsregeling? Kijk op de-alliantie.nl/ik-zoek/voorrang-huurders - en zie direct wat de voorrangsregeling voor jou betekent.
Deze informatie is door ons met de nodige zorgvuldigheid samengesteld. Onzerzijds wordt echter geen enkele aansprakelijkheid aanvaard voor enige onvolledigheid, onjuistheid of anderszins, dan wel de gevolgen daarvan. Alle opgegeven maten en oppervlakten zijn indicatief.
Kenmerken
Overdracht
- Aangeboden sinds
- Aanvaarding
- In overleg
- Vraagprijs
- € 270.000 kosten koper
- Vraagprijs per m²
- € 4.909
- Status
- Verkocht onder voorbehoud
Bouw
- Soort appartement
- Galerijflat
- Soort bouw
- Bestaande bouw
- Bouwjaar
- 1969
Oppervlakten en inhoud
- Gebruiksoppervlakten
- Wonen
- 55 m²
- Inhoud
- 181 m³
Indeling
- Aantal kamers
- 2 kamers (1 slaapkamer)
- Aantal woonlagen
- 1 woonlaag
Energie
- Energielabel
- E
VvE checklist
- Inschrijving KvK
- Nee
- Jaarlijkse vergadering
- Nee
- Periodieke bijdrage
- Nee
- Reservefonds aanwezig
- Nee
- Onderhoudsplan
- Nee
- Opstalverzekering
- Nee
Foto's 19
© 2001-2025 funda


















