Dit huis op Funda: https://www.funda.nl/detail/koop/soest/appartement-rubenslaan-142/43270774/

Rubenslaan 1423764 VL SoestDe Eng
€ 285.000 k.k.
Omschrijving
Instapklaar 3-KAMERAPPARTEMENT op centrale locatie in Soest
ERFPACHT VAN TOEPASSING
Op een aantrekkelijke en centrale plek in Soest, aan de Rubenslaan, ligt dit goed ingedeelde 3-kamerappartement op de derde verdieping met een eigen berging in de onderbouw. Een ideale woning voor wie comfortabel wil wonen met alle voorzieningen binnen handbereik én volop natuur in de directe omgeving.
Winkels, supermarkten, sportfaciliteiten en gezellige eetgelegenheden bevinden zich op loopafstand. Ook het NS-station is nabij gelegen. Binnen vijf minuten fietst u naar de Eempolder en ook de bossen rond Paleis Soestdijk en de Soesterduinen zijn eenvoudig te bereiken.
De bereikbaarheid is uitstekend: via de nabijgelegen uitvalswegen rijdt u vlot richting Baarn en Amersfoort, en ook de opritten naar de A1, A27 en A28 zijn in circa tien autominuten bereikbaar. Soest ligt werkelijk centraal in Nederland en dat merkt u hier elke dag.
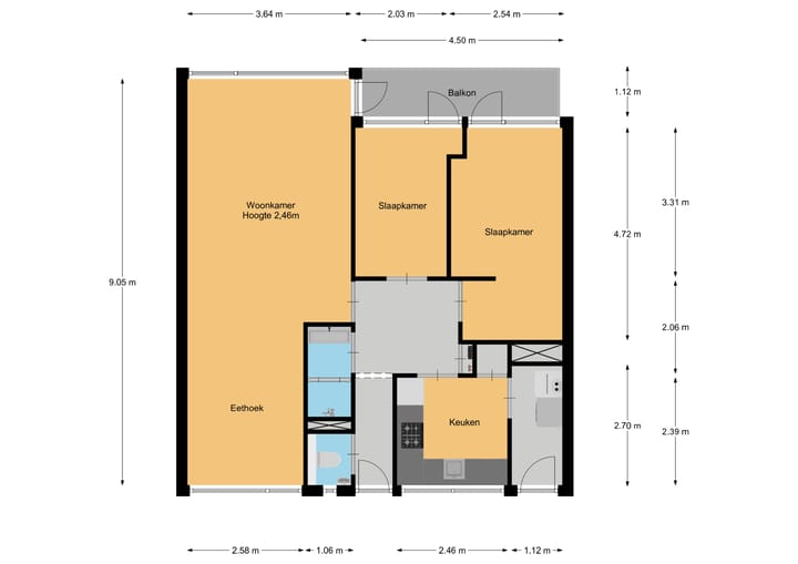
Indeling
Via de gezamenlijke entree met bellentableau en trapopgang bereikt u het appartement op de derde verdieping. U komt binnen in een centrale hal met toegang tot alle vertrekken. Hier bevindt zich links het toilet.
De lichte woonkamer met royale eethoek biedt toegang tot het balkon. Ook beide slaapkamers hebben een eigen toegang tot het balkon, wat zorgt voor veel licht en een prettig buitengevoel. De keuken (2023) is praktisch opgesteld in een hoek en beschikt over een aparte afgesloten ruimte met wasmachine en boiler. De badkamer is modern uitgevoerd.
Kenmerken
* Bouwjaar: 1960
* Woonoppervlakte: ca. 72 m²
* Energielabel: D (geldig tot 01-09-2026)
* Eigen berging in de onderbouw
Bijzonderheden
* VVE bijdrage inclusief Erfpacht € 76,- aftrekbaar en Gasvoorschot € 120,- € 455,- per maand
(incl. € 120,- voorschot stookkosten en € 76,50 erfpachtcanon)
* Centraal gelegen in Soest
* Balkon bereikbaar vanuit woonkamer én slaapkamers
* Blokverwarming
* Geen lift aanwezig
Kenmerken
Overdracht
- Aangeboden sinds
- Aanvaarding
- In overleg
- Vraagprijs
- € 285.000 kosten koper
- Vraagprijs per m²
- € 3.958
- Status
- Beschikbaar
- Bijdrage VvE
- € 455,00 per maand
Bouw
- Soort appartement
- Galerijflat (appartement)
- Soort bouw
- Bestaande bouw
- Bouwjaar
- 1960
- Soort dak
- Plat dak bedekt met bitumineuze dakbedekking
Oppervlakten en inhoud
- Gebruiksoppervlakten
- Wonen
- 72 m²
- Gebouwgebonden buitenruimte
- 5 m²
- Externe bergruimte
- 6 m²
- Inhoud
- 221 m³
Indeling
- Aantal kamers
- 3 kamers (2 slaapkamers)
- Aantal badkamers
- 1 badkamer en 1 apart toilet
- Badkamervoorzieningen
- Inloopdouche en wastafelmeubel
- Aantal woonlagen
- 1 woonlaag
- Gelegen op
- 3e woonlaag
Energie
- Energielabel
- D
- Isolatie
- Dubbel glas
- Warm water
- Elektrische boiler (huur)
Kadastrale gegevens
- SOEST K 2758
- Kadastrale kaart
- Eigendomssituatie
- Particulier eigendom belast met erfpacht
- Lasten
- € 918,43 per jaar
Buitenruimte
- Ligging
- Aan rustige weg, in bosrijke omgeving, in woonwijk en vrij uitzicht
Bergruimte
- Schuur/berging
- Box
- Voorzieningen
- Elektra
Parkeergelegenheid
- Soort parkeergelegenheid
- Openbaar parkeren
VvE checklist
- Inschrijving KvK
- Ja
- Jaarlijkse vergadering
- Ja
- Periodieke bijdrage
- Ja (€ 455,00 per maand)
- Reservefonds aanwezig
- Ja
- Onderhoudsplan
- Ja
- Opstalverzekering
- Ja
Foto's 16
© 2001-2025 funda















