Dit huis op Funda: https://www.funda.nl/detail/koop/soest/huis-hofstedering-108/43128673/

Omschrijving
Deze verrassend luxe afgewerkte en fors uitgebouwde hoekwoning met extra grote garage en heerlijke overkapping met houtkachel is fraai gelegen in de kindvriendelijke wijk “De Boerenstreek”. Dit heerlijke comfortabele huis beschikt o.a. over vloerverwarming op de begane grond, 11 zonnepanelen en airco op de 2e verdieping. De bijzonder smaakvolle afwerking met o.a. de “en suite deuren”, de fraai schouw, glad gestuukte plafonds en de eiken vloer geven het gevoel van een sfeervolle 30-er jaren woning. Een heerlijk gezinshuis met een rustige ligging, in de directe nabijheid van de voorzieningen en de bossen van Pijnenburg.
Indeling:
Begane grond:
Entree, hal, meterkast, toilet (zwevend) met fontein, gezellige woonkeuken met grote ingebouwde voorraadkast, massief eiken vloerdelen en fraai keukenblok voorzien van getrommeld granieten aanrechtblad, 6 pits fornuis met brede oven (Smeg), Miele vaatwasser, koelkast en close-in boiler, en suite deuren naar tuingerichte woonkamer met een gezellige schouw met gas openhaard, openslaande deuren naar overdekt terras voorzien van Bankirai vloerdelen en houtkachel.
1e verdieping:
Overloop, 3 volwaardige slaapkamers met eenduidige laminaat vloer en glasvlies behang, sfeervolle badkamer met inloopdouche, ligbad, wastafel en 2e toilet.
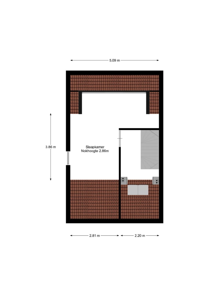
2e verdieping:
Bereikbaar via een vaste trap; voorzolder met opstelling zonneboiler, HR combiketel (2020), aansluiting wasmachine en droger, riante 4e slaapkamer met grote dakkapel, een kopgevelraam en airconditioning.
Bijzonderheden:
Extra lange garage met vliering en geïsoleerd dak.
De plafonds op de begane grond zijn glad gestuukt.
Overkapping met verlichting.
Kenmerken
Overdracht
- Laatste vraagprijs
- € 635.000 kosten koper
- Vraagprijs per m²
- € 5.205
- Status
- Verkocht
Bouw
- Soort woonhuis
- Eengezinswoning, hoekwoning
- Soort bouw
- Bestaande bouw
- Bouwjaar
- 2004
- Specifiek
- Gedeeltelijk gestoffeerd
- Soort dak
- Zadeldak bedekt met pannen
Oppervlakten en inhoud
- Gebruiksoppervlakten
- Wonen
- 122 m²
- Gebouwgebonden buitenruimte
- 25 m²
- Externe bergruimte
- 25 m²
- Perceel
- 210 m²
- Inhoud
- 439 m³
Indeling
- Aantal kamers
- 5 kamers (4 slaapkamers)
- Aantal badkamers
- 1 badkamer en 1 apart toilet
- Badkamervoorzieningen
- Inloopdouche, ligbad, toilet, en wastafel
- Aantal woonlagen
- 3 woonlagen
- Voorzieningen
- Airconditioning, glasvezelkabel, mechanische ventilatie, natuurlijke ventilatie, rookkanaal, TV kabel, en zonnepanelen
Energie
- Energielabel
- A
- Isolatie
- Dakisolatie, dubbel glas, muurisolatie en vloerisolatie
- Verwarming
- Cv-ketel, gashaard en gedeeltelijke vloerverwarming
- Warm water
- Zonneboiler
- Cv-ketel
- HR (gas gestookt combiketel uit 2018, eigendom)
Kadastrale gegevens
- SOEST G 12484
- Kadastrale kaart
- Oppervlakte
- 210 m²
- Eigendomssituatie
- Volle eigendom
Buitenruimte
- Ligging
- Aan rustige weg en in woonwijk
- Tuin
- Achtertuin en voortuin
- Achtertuin
- 76 m² (8,40 meter diep en 9,00 meter breed)
- Ligging tuin
- Gelegen op het noordwesten
Garage
- Soort garage
- Aangebouwde stenen garage
- Capaciteit
- 1 auto
- Voorzieningen
- Elektrische deur, vliering en elektra
Parkeergelegenheid
- Soort parkeergelegenheid
- Op eigen terrein
Foto's 27
© 2001-2025 funda


























