
Omschrijving
Aan rustige straat in wijk 't Eigen' in Son en Breugel gelegen nette tussenwoning met aangebouwde overkapping, zonnepanelen, voor- en achtertuin, berging en vrije achterom. Winkels, scholen en uitvalswegen zijn in de directe omgeving.
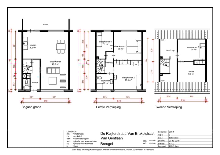
De indeling van de woning is als volgt:
Begane grond:
Entree. Hal met trapkast, trapopgang naar de eerste verdieping, meterkast en deels betegeld toilet met fonteintje. De woonkamer is voorzien van dubbele tuindeuren en heeft een open moderne keuken met diverse inbouwapparatuur zoals een 5-pits gasfornuis met oven, afzuigkap, koelkast, vriezer en vaatwasser en biedt eveneens toegang tot de achterdeur. De keuken is voorzien van een opstelplaats voor een boiler.
De gehele begane grond is voorzien van vloerverwarming.
Eerste verdieping:
Overloop met vaste trap naar de tweede verdieping en toegang tot drie slaapkamers en de badkamer. Slaapkamer I is voorzien van een wastafelmeubel en kastenwand, slaapkamer II heeft eveneens een kastenwand. De moderne luxe badkamer is voorzien van een inloopdouche, ligbad, hangend toilet en wastafelmeubel.
Tweede verdieping:
Middels vaste trap bereikbare zolderverdieping met voorzolder met klein dakraam en berguimte achter de knieschotten alsmede de opstelplaats voor de HR combi-ketel (Nefit, bouwjaar 2010), de aansluitingen voor het witgoed en de omvormer van de 10 zonnepanelen. Vierde slaapkamer met walk-in closet en een dakkapel.
Tuin:
Achtertuin gelegen op het noorden met terras, gras, diverse borders en een aangebouwde kunststof overkapping. Achter in de tuin bevindt zich een vrijstaande stenen berging en de overdekte achterom.
Bijzonderheden:
- Er geldt een zelfbewoningsplicht en een antispeculatiebeding van 3 jaar;
- In de koopovereenkomst zal, naast een bankgarantie/waarborgsom, een voorbehoud voor financiering worden opgenomen van 6 weken en een overdrachtsdatum van 8 weken;
- Wanneer er veel geïnteresseerden voor deze woning zijn, kan verkoper besluiten dat een beperkt aantal kandidaten de woning kan bezichtigen waarna een inschrijving plaats vindt. De overige geïnteresseerden worden op een wachtlijst geplaatst;
- Verkoper heeft het recht van gunning;
- Het notarieel transport dient plaatst te vinden bij AKD Notarissen te Eindhoven;
- De plattegrond dient slechts als indicatie, hier kunnen geen rechten aan worden ontleend.
Kenmerken
Overdracht
- Laatste vraagprijs
- € 435.000 kosten koper
- Vraagprijs per m²
- € 3.655
- Status
- Verkocht
Bouw
- Soort woonhuis
- Eengezinswoning, tussenwoning
- Soort bouw
- Bestaande bouw
- Bouwjaar
- 1967
Oppervlakten en inhoud
- Gebruiksoppervlakten
- Wonen
- 119 m²
- Externe bergruimte
- 12 m²
- Perceel
- 161 m²
- Inhoud
- 390 m³
Indeling
- Aantal kamers
- 5 kamers (4 slaapkamers)
- Aantal badkamers
- 2 aparte toiletten
- Aantal woonlagen
- 3 woonlagen
Energie
- Energielabel
- Isolatie
- Dubbel glas, gedeeltelijk dubbel glas en volledig geïsoleerd
- Verwarming
- Cv-ketel
- Warm water
- Cv-ketel en zonnecollectoren
- Cv-ketel
- Nefit (gas gestookt combiketel uit 2012, eigendom)
Kadastrale gegevens
- SON EN BREUGEL E 2526
- Kadastrale kaart
- Oppervlakte
- 161 m²
- Eigendomssituatie
- Eigendom belast met erfpacht
Buitenruimte
- Tuin
- Achtertuin
- Achtertuin
- 72 m² (12,00 meter diep en 6,00 meter breed)
- Ligging tuin
- Gelegen op het noorden bereikbaar via achterom
Bergruimte
- Schuur/berging
- Vrijstaande stenen berging
Foto's 33
© 2001-2026 funda
































