
Omschrijving
J. de Baanlaan 141 te Spijkenisse-Rietvelden
Mooi gelegen 4-kamer appartement (6e etage, ca. 109m2) met berging en privé-parkeerplaats in de mooie wijk ‘De Rietvelden’. Prachtig uitzicht!
Dit gunstig gelegen appartement met privé-parkeerplaats ligt aan de buitenrand van de voorkeurswijk ‘De Rietvelden’. Dit zongerichte appartement heeft een royale living van ruim 30m2 en een balkon van ca. 13m2 met een prachtig uitzicht over Spijkenisse. Beleef het mee en maak een vrijblijvende afspraak voor een bezichtiging.
Indeling:
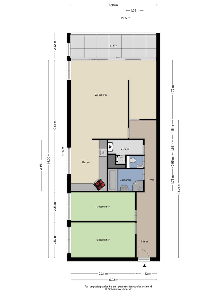
Begane Grond: Mooie entree van het complex met toegang naar de bergingen, trappenhuis en lift.
6e Verdieping: Ruime centrale hal met op elke verdieping 3 woningen, meterkast. Entree van de woning, hal met videofoon, 2 slaapkamers (afm. resp. 5,20x2,90 en 5,20x2,40). Nette badkamer met douche, handdoekradiator en badkamermeubel met lades en wastafel. Apart toilet met fonteintje, bijkeuken met opstelplaats voor CV (Vaillant 2011), mechanische ventilatie unit en wasmachineaansluiting. Royale zongerichte living (ca. 37m2) met airco en een schuifpui naar het zonneterras, welke is gelegen over de volle breedte van de woning. Naast de woonkamer is een studeerkamer, welke desgewenst bij de woonkamer kan worden betrokken. Luxe open keuken in hoekopstelling met veel kastruimte (zowel onder- als bovenkastjes), spoelbak, kookplaat, afzuigkap, combimagnetron, koelkast, vriezer en vaatwasser. Het gehele appartement is v.v. laminaat.
Er is een berging in de onderbouw, alsmede een eigen parkeerplaats.
Bijzonderheden:
• eigen parkeerplaats
• ligging nabij uitvalswegen
• prachtige ligging met mooi uitzicht
• 4 kamers, de woonkamer is nog te vergroten
• oplevering in overleg
Algemeen:
• eigen grond
• bouwjaar 1998
• VVE ca. € 200,00 per maand
• woonoppervlakte ca. 109m2
• inhoud ca. 360m3
• kadastraal bekend gem. Spijkenisse, sectie E, nummer 5353A, index 17.
De hierboven beschreven woninginformatie is geheel vrijblijvend en slechts bedoeld als uitnodiging tot het starten van onderhandelingen. Ten aanzien van de juistheid van de vermelde informatie, maatvoering, bouwjaren, oppervlakte- en inhoudsmaten kan door Mudde Makelaardij geen aansprakelijkheid worden aanvaard, noch kan aan de vermelde informatie enig recht worden ontleend.
De Meetinstructie is gebaseerd op de NEN2580. De Meetinstructie is bedoeld om een meer eenduidige manier van meten toe te passen voor het geven van een indicatie van de gebruiksoppervlakte. De Meetinstructie sluit verschillen in meetuitkomsten niet volledig uit, door bijvoorbeeld interpretatieverschillen, afrondingen of beperkingen bij het uitvoeren van de meting.
Kenmerken
Overdracht
- Laatste vraagprijs
- € 498.000 kosten koper
- Vraagprijs per m²
- € 4.569
- Status
- Verkocht
- Bijdrage VvE
- € 200,00 per maand
Bouw
- Bouwjaar
- Na 2020
- Soort appartement
- Portiekflat (appartement)
- Soort bouw
- Bestaande bouw
- Soort dak
- Plat dak bedekt met bitumineuze dakbedekking
- Toegankelijkheid
- Toegankelijk voor ouderen
Oppervlakten en inhoud
- Gebruiksoppervlakten
- Wonen
- 109 m²
- Gebouwgebonden buitenruimte
- 14 m²
- Externe bergruimte
- 7 m²
- Inhoud
- 360 m³
Indeling
- Aantal kamers
- 4 kamers (2 slaapkamers)
- Aantal badkamers
- 1 badkamer en 1 apart toilet
- Badkamervoorzieningen
- Douche, wastafel, en wastafelmeubel
- Aantal woonlagen
- 1 woonlaag
- Voorzieningen
- Airconditioning, buitenzonwering, lift, mechanische ventilatie, natuurlijke ventilatie, en schuifpui
- Gelegen op
- 6e woonlaag
Energie
- Energielabel
- A
- Isolatie
- Dakisolatie, dubbel glas, muurisolatie en vloerisolatie
- Verwarming
- Cv-ketel
- Warm water
- Cv-ketel
- Cv-ketel
- Vaillant (gas gestookt combiketel uit 2011, eigendom)
Kadastrale gegevens
- SPIJKENISSE E 5353
- Kadastrale kaart
- Eigendomssituatie
- Volle eigendom
Buitenruimte
- Ligging
- Aan park, aan water, in woonwijk en vrij uitzicht
- Balkon/dakterras
- Balkon aanwezig
Bergruimte
- Schuur/berging
- Box
- Voorzieningen
- Elektra
Garage
- Soort garage
- Parkeerplaats
- Isolatie
- Dakisolatie, dubbel glas en muurisolatie
Parkeergelegenheid
- Soort parkeergelegenheid
- Op eigen terrein en openbaar parkeren
VvE checklist
- Inschrijving KvK
- Ja
- Jaarlijkse vergadering
- Ja
- Periodieke bijdrage
- Ja (€ 200,00 per maand)
- Reservefonds aanwezig
- Ja
- Onderhoudsplan
- Ja
- Opstalverzekering
- Ja
Foto's 25
© 2001-2025 funda
























