
Omschrijving
Ruime 2-onder-1-kapwoning met 5 slaapkamers, kunststof kozijnen met dubbelglas (HR ++), geheel nieuw dak, vloerisolatie, spouwmuurisolatie, zonnepanelen, energielabel A, airco, parkeren op eigen terrein, garage en tuin.
Deze goed onderhouden woning is gelegen op een perceel van 275 m² en biedt volop ruimte voor een comfortabel gezin. Deze woning is perfect voor wie op zoek is naar een rustig gelegen woning met een praktische indeling en veel buitenruimte. Kom snel kijken en ontdek de mogelijkheden!
LIGGING
Met de auto ben je in een mum van tijd in Rotterdam, dankzij de goede verbindingen via de A15 en A20. Ook met het openbaar vervoer is Spijkenisse goed bereikbaar, met de metro en trein die je snel naar de grote stad brengen. Voor wie graag naar het strand gaat, is de nabijheid van de Hoek van Holland een extra pluspunt.
VOORTUIN, OPRIT, GARAGE EN ENTREE
De woning beschikt over een ruime oprit, ideaal voor het parkeren van meerdere voertuigen, en een garage voor extra opslag of als werkruimte. De voor- en achtertuin zijn goed onderhouden en bieden veel mogelijkheden voor zowel ontspanning als speelruimte voor kinderen. De garage heeft een handbediende rolpoort en is voorzien van elektra.
LIVING, EETKAMER EN KEUKEN
De woonkamer is voorzien van plavuizen en kunststof kozijnen met HR++ glas, wat zorgt voor optimale isolatie. De voordeur, garagedeur en kozijn van de garage zijn vernieuwd. De keuken, gerenoveerd in 2014, is van alle gemakken voorzien, waaronder een koel/vriescombinatie, spoelbak, 5-pits gasfornuis, afzuigkap, vaatwasser, oven en magnetron. Er is voldoende kastruimte en de keuken ziet er prima onderhouden uit. Tevens is er nog een keurig toilet en fonteintje.
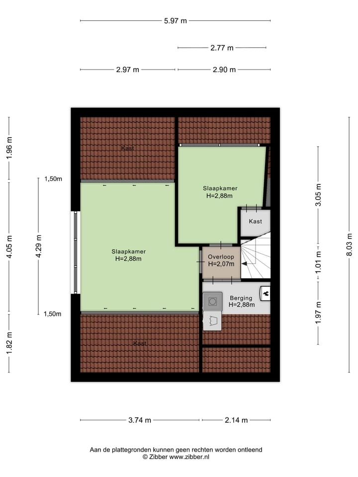
1E VERDIEPING
Op de eerste verdieping bevinden zich drie slaapkamers. Een ruime hoofdslaapkamer aan de voorzijde en twee goede slaapkamers aan de achterzijde. Alle slaapkamers zijn voorzien van laminaatvloeren en zijn netjes afgewerkt. De badkamer dateert uit 2014 en is volledig uitgerust met een wastafelmeubel, douchecabine, ligbad, zwevend toilet, raam en een designradiator.
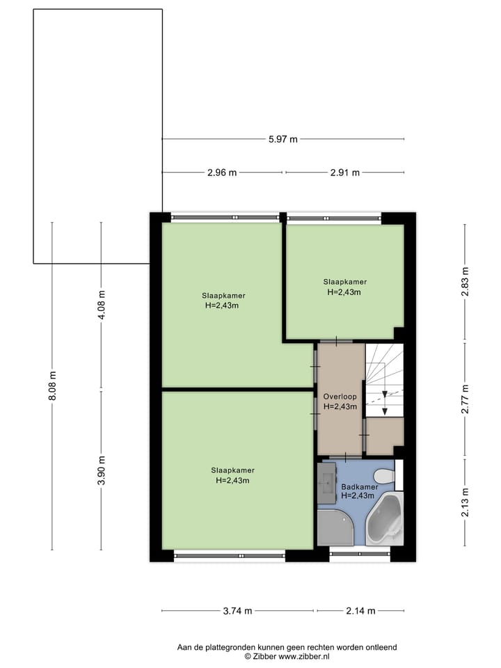
2E VERDIEPING
Op de tweede verdieping vind je een kleine overloop met twee slaapkamers, waarvan één momenteel in gebruik is als werkkamer. De woning is voorzien van kunststof kozijnen en dubbelglas, wat zorgt voor extra isolatie en onderhoudsgemak.
TUIN
De achtertuin is goed onderhouden en biedt veel ruimte om te genieten van het buitenleven. De tuin is perfect voor zowel ontspanning als voor het ontvangen van gasten. Er is voldoende ruimte voor een gezellige zithoek, een tuinset en eventueel een speelplek voor kinderen. Daarnaast beschikt de tuin over een houten tuinhuisje met elektra, ideaal voor extra opslag of als werkruimte.
KENMERKEN
- Bouwjaar 1973.
- Energielabel A.
- Eigen grond.
- 5 slaapkamers.
- Moderne keuken.
- Moderne badkamer.
- Airco's | 2023.
- meterkast | 2014.
- Zonnepanelen 10 stuks | 2023.
- Kunststof kozijnen met dubbelglas (HR++).
- Kruipruimte volledig geïsoleerd.
- Dak volledig vernieuwd | 2023.
- Spouwmuurisolatie | 2021.
- Elektrische rolluiken aanwezig.
- Achtertuin met achterom.
- Achteruitgang op grond van buren (mondeling overlegd).
- Bij verkoop: In de koopovereenkomst zal een ouderdomsclausule opgenomen worden.
- Aan de plattegrond kunnen geen rechten worden ontleend. Alle maten zijn indicatief.
- Oplevering in overleg; conform lijst roerende zaken.
BIJZONDERHEDEN:
* Vanaf 1 januari 2023 zijn makelaars wettelijk verplicht een biedlogboek bij te houden bij de verkoop van bestaande woningen (en wanneer de koper en/of de verkoper een particulier is). Biedingen kun je per die datum, en indien gewenst, nog steeds mondeling met ons bespreken maar dien je daarna digitaal aan ons te bevestigen via jouw MOVE-account. Het biedlogboek is niet van toepassing bij de verkoop van nieuwbouw, recreatiewoningen, bedrijfswoningen, garageboxen, bouwkavels, woon-/bedrijfspanden en (agrarische) bedrijfsobjecten zonder woonbestemming.
* Bij het sluiten van een koopovereenkomst verklaar je je akkoord dat ondertekening van de koopovereenkomst eventueel digitaal plaatsvindt (met iDIN identificatie) door gebruikmaking van het platform van DocuSign.
* De koopovereenkomst wordt opgesteld conform het meest recente model dat is vastgesteld door de NVM, de Consumentenbond en Vereniging Eigen Huis en aangevuld met (indien van toepassing) enkele aanvullende artikelen.
* Vanzelfsprekend staat het je vrij om, indien gewenst, een bouwkundige uit te nodigen de woning bouwkundig voor je te keuren teneinde jezelf een goed beeld te kunnen vormen van de bouwkundige staat van de woning.
* Er is pas sprake van een rechtsgeldige koop als de particuliere verkoper en de particuliere koper de koopovereenkomst hebben ondertekend.
NISSEWAARD
Nissewaard is een gemeente op het eiland Voorne-Putten in het zuiden van de provincie Zuid Holland. De gemeente Nissewaard is sinds 2015 ontstaan door samenvoeging van de gemeenten Spijkenisse en Bernisse met een oppervlakte van 98,82 km² en telt ruim 85.000 inwoners. De gemeente maakt deel uit van de metropoolregio Rotterdam Den Haag.
SPIJKENISSE
Spijkenisse is een stad in de provincie Zuid-Holland, gelegen in de regio Voorne-Putten. Het ligt dicht bij de stad Rotterdam en biedt een uitstekende combinatie van stedelijke voorzieningen en rustige, groene omgevingen. Spijkenisse heeft de afgelopen jaren een transformatie doorgemaakt en is nu een aantrekkelijke plek om te wonen, met een mix van moderne woningen, voorzieningen en natuur. De stad heeft een rustige, dorpsachtige sfeer met alle voordelen van stedelijke voorzieningen binnen handbereik. Spijkenisse is een gewilde woonlocatie voor gezinnen, werkenden en senioren, mede door de gunstige ligging ten opzichte van Rotterdam en de ruime keuze aan woningen, van appartementen tot eengezinswoningen.
ENTHOUSIAST?
Dat kunnen wij ons voorstellen. Maak dan snel een afspraak voor een oriënterende bezichtiging van deze woning. Je eigen woning nog niet verkocht? Wij komen graag bij je langs! Bel voor een vrijblijvend verkoopgesprek. DE MOOISTE HUIZEN KOOP JE BIJ OOMS SPIJKENISSE. DIT HUIS BEWIJST HET.
TOT SLOT
Deze informatie is door ons met de nodige zorgvuldigheid samengesteld. Onzerzijds wordt echter geen enkele aansprakelijkheid aanvaard voor enige onvolledigheid, onjuistheid of anderszins dan wel de gevolgen daarvan. Alle opgegeven maten en oppervlakten zijn indicatief. Van toepassing zijn de NVM voorwaarden. Ooms Spijkenisse behartigt de belangen van de verkopende partij. Ons advies bij het kopen van jouw nieuwe woning is dan ook om je eigen NVM-aankoopmakelaar mee te nemen.
DÉ NVM-MAKELAAR IN SPIJKENISSE MET 10 VESTIGINGEN IN JOUW REGIO
Kenmerken
Overdracht
- Laatste vraagprijs
- € 480.000 kosten koper
- Vraagprijs per m²
- € 3.840
- Status
- Verkocht
Bouw
- Soort woonhuis
- Eengezinswoning, 2-onder-1-kapwoning
- Soort bouw
- Bestaande bouw
- Bouwjaar
- 1973
- Specifiek
- Gestoffeerd
- Soort dak
- Zadeldak bedekt met bitumineuze dakbedekking, overig en pannen
Oppervlakten en inhoud
- Gebruiksoppervlakten
- Wonen
- 125 m²
- Overige inpandige ruimte
- 17 m²
- Perceel
- 275 m²
- Inhoud
- 503 m³
Indeling
- Aantal kamers
- 6 kamers (5 slaapkamers)
- Aantal badkamers
- 1 badkamer en 1 apart toilet
- Badkamervoorzieningen
- Douche, ligbad, toilet, en wastafelmeubel
- Aantal woonlagen
- 3 woonlagen
- Voorzieningen
- Buitenzonwering, rolluiken, TV kabel, en zonnepanelen
Energie
- Energielabel
- A
- Isolatie
- Dakisolatie, dubbel glas, muurisolatie en vloerisolatie
- Verwarming
- Cv-ketel
- Warm water
- Cv-ketel
- Cv-ketel
- Remeha (gas gestookt combiketel, eigendom)
Kadastrale gegevens
- SPIJKENISSE D 2635
- Kadastrale kaart
- Oppervlakte
- 275 m²
- Eigendomssituatie
- Volle eigendom
Buitenruimte
- Ligging
- Aan rustige weg en in woonwijk
- Tuin
- Achtertuin en voortuin
- Achtertuin
- 114 m² (12,00 meter diep en 9,50 meter breed)
- Ligging tuin
- Gelegen op het zuidwesten
Garage
- Soort garage
- Aangebouwde stenen garage en parkeerplaats
- Capaciteit
- 1 auto
- Voorzieningen
- Elektra
- Isolatie
- Geen spouw
Parkeergelegenheid
- Soort parkeergelegenheid
- Op eigen terrein en openbaar parkeren
Foto's 39
© 2001-2025 funda






































