
Omschrijving
Laanwoning met dakterras | drie slaapkamers | acht zonnepanelen | overkapping | nabij Winkelcentrum Maaswijk |
Deze ruime laanwoning met een woonoppervlakte van 133 m² ligt in de populaire wijk Maaswijk. De woning beschikt over drie ruime slaapkamers, een dakterras en een leuke overkapping in de achtertuin. Op loopafstand bevinden zich Winkelcentrum Maaswijk, openbaar vervoer, een basisschool en een voetbalvereniging. Een praktische woning met alle benodigde voorzieningen in de buurt.
Indeling:
Begane grond:
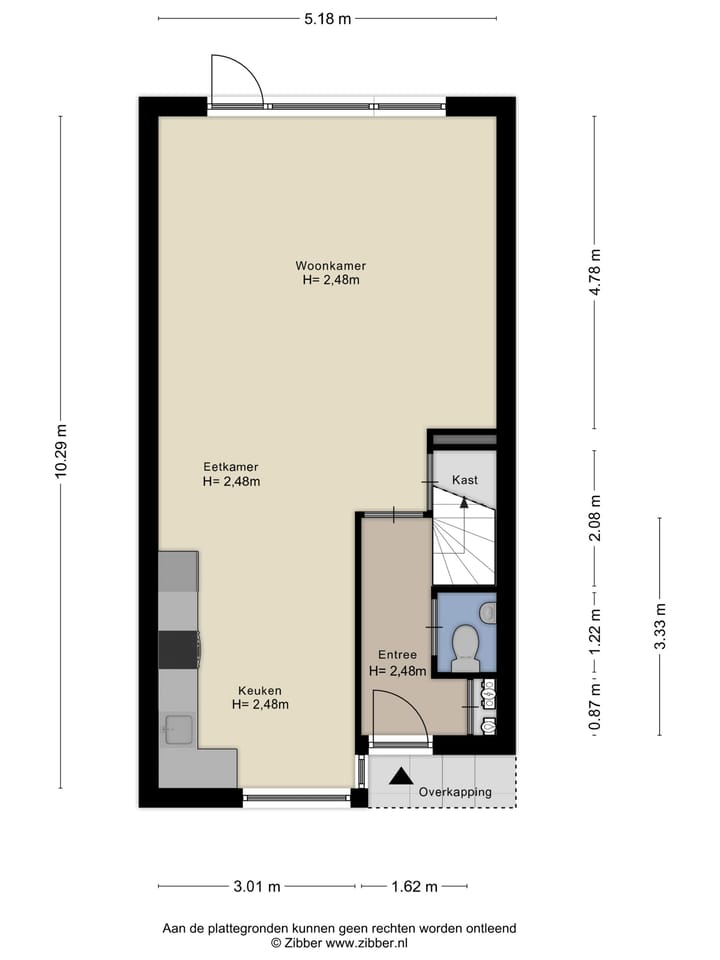
Via de voortuin betreed je de woning. De entree, hal, meterkast, deels betegeld toilet met fontein, de trap naar de eerste verdieping en de toegang naar de woonkamer. De ruime woonkamer bevindt zich aan de achterzijde en biedt volop ruimte voor een comfortabele zithoek.
Aan de voorzijde van de woning is het eetgedeelte met de halfopen keuken, die is uitgerust met een ingebouwde koelkast en vaatwasser. Daarnaast beschikt de keuken over een oven, inductiekookplaat (met boostfunctie) en afzuigkap. De grote ramen zorgen voor de nodige lichtinval in de keuken.
Voor- en achtertuin:
De voortuin is compact en biedt een overdekte entree naar de woning. De achtertuin is gelegen op het noordwesten en is voorzien van een overkapping, een berging en een achterom, wat zorgt voor extra gemak en opbergruimte.
1e verdieping:
De overloop op de eerste verdieping geeft toegang tot de badkamer, een tweede deels betegelde toilet en twee ruime slaapkamers.
De geheel betegelde badkamer is voorzien van een douchehoek, ligbad, wastafel en spiegel.
Aan de achterzijde bevindt zich een grote slaapkamer, die eventueel kan worden opgedeeld in een aparte slaapkamer en een kastenkamer, kantoor of opbergruimte. Deze kamer kan natuurlijk ook als master bedroom worden gebruikt. De tweede slaapkamer bevindt zich aan de voorzijde van de woning en biedt uitzicht op de straat.
2e verdieping:
Op de overloop van de tweede verdieping vind je de aansluitingen voor de wasmachine, droger, de mechanische ventilatie unit, de omvormer en de cv-ketel. Vanaf hier heb je ook toegang tot het dakterras, die zich aan de achterzijde van de woning bevindt .
Deze verdieping beschikt verder over een multifunctionele ruimte die momenteel in gebruik is als opbergruimte\hobbykamer/ slaapkamer.
Bijzonderheden:
- Bouwjaar 1998;
- 3 slaapkamers;
- Eigen grond;
- 133m2 woonoppervlakte;
- Dakterras;
- Dak vernieuwd en 8 zonnepanelen geplaatst in 2022;
- Overkapping in de achtertuin;
- Schilderwerk gedaan in 2024;
- Tuin op het noordoosten;
- Oplevering in overleg met verkopers, indicatie Q4 2025.
ENTHOUSIAST GEWORDEN?
Dat kunnen wij ons voorstellen. Maak dan snel een afspraak voor een oriënterende bezichtiging van deze fantastische eengezinswoning.
Uw eigen woning nog niet verkocht? Wij komen graag bij u langs! Bel voor een vrijblijvend verkoopgesprek!
DE MOOISTE HUIZEN KOOP JE BIJ OOMS MAKELAARS. DIT HUIS BEWIJST HET.
Deze informatie is door ons met de nodige zorgvuldigheid samengesteld. Onzerzijds wordt echter geen enkele aansprakelijkheid aanvaard voor enige onvolledigheid, onjuistheid of anderszins dan wel de gevolgen daarvan. Alle opgegeven maten en oppervlakten zijn indicatief. Van toepassing zijn de NVM voorwaarden.
Ooms behartigt de belangen van de verkopende partij. Neem uw eigen NVM-aankoopmakelaar mee.
Kenmerken
Overdracht
- Laatste vraagprijs
- € 415.000 kosten koper
- Vraagprijs per m²
- € 3.120
- Status
- Verkocht
Bouw
- Soort woonhuis
- Eengezinswoning, tussenwoning
- Soort bouw
- Bestaande bouw
- Bouwjaar
- 1998
- Specifiek
- Gestoffeerd
- Soort dak
- Plat dak bedekt met bitumineuze dakbedekking
Oppervlakten en inhoud
- Gebruiksoppervlakten
- Wonen
- 133 m²
- Gebouwgebonden buitenruimte
- 26 m²
- Externe bergruimte
- 9 m²
- Perceel
- 143 m²
- Inhoud
- 470 m³
Indeling
- Aantal kamers
- 4 kamers (3 slaapkamers)
- Aantal badkamers
- 1 badkamer en 2 aparte toiletten
- Badkamervoorzieningen
- Douche, ligbad, en wastafelmeubel
- Aantal woonlagen
- 3 woonlagen
- Voorzieningen
- Mechanische ventilatie en zonnepanelen
Energie
- Energielabel
- A
- Isolatie
- Volledig geïsoleerd
- Verwarming
- Cv-ketel
- Warm water
- Cv-ketel
- Cv-ketel
- Vaillant (gas gestookt combiketel uit 2013, eigendom)
Kadastrale gegevens
- SPIJKENISSE G 1909
- Kadastrale kaart
- Oppervlakte
- 143 m²
- Eigendomssituatie
- Volle eigendom
Buitenruimte
- Ligging
- In woonwijk
- Tuin
- Achtertuin en voortuin
- Achtertuin
- 77 m² (14,00 meter diep en 5,50 meter breed)
- Ligging tuin
- Gelegen op het noordoosten bereikbaar via achterom
- Balkon/dakterras
- Dakterras aanwezig
Bergruimte
- Schuur/berging
- Vrijstaande houten berging
- Voorzieningen
- Elektra
Parkeergelegenheid
- Soort parkeergelegenheid
- Openbaar parkeren
Foto's 40
© 2001-2025 funda







































