
Omschrijving
Deze vakkundig gemoderniseerde en verduurzaamde tussenwoning wordt heel compleet te koop aangeboden en is gewoon instapklaar !
Deze prachtige tussenwoning is voorzien van een nieuw energielabel B en de maandelijkse energielasten zijn daardoor ook erg laag. Ideaal !
De woning is goed geïsoleerd en uitgerust met kunststofkozijnen voorzien van grotendeels HR++ glas, 8 zonnepanelen van 310 Wp per stuk en CV via Intergas HRE-combiketel van 2020.
Het is heerlijk comfortabel wonen hier. Met de moderne afwerking en verrassende ruimte is dit voor vele woningzoekers een buitenkans in de huidige markt.
Sint Jacobiparochie ligt in de gemeente Waadhoeke en heeft meerdere voorzieningen zoals kinderopvang, scholen en een goed verenigingsleven. Het dorp ligt op kleine afstand van Sint Annaparochie waar nog meer voorzieningen te vinden zijn in onder andere het winkelcentrum en ook voortgezet onderwijs. Eigenlijk heeft Sint Annaparochie alle belangrijke voorzieningen en anders heb je Franeker of Leeuwarden dichtbij.
Indeling:
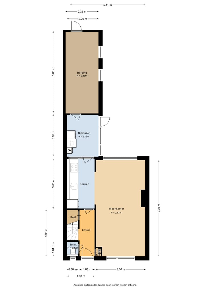
Begane grond:
Via de blauwe kunststof design voordeur met een rolluik uitgerust kom je in de hal, moderne toiletruimte met wandcloset, de meterkast en kelderkast. De zonnige woonkamer meet bijna 25 m2 en hierin is nog het schoorsteenkanaal aanwezig. De zuidkant heeft markiezen en de noordkant een rolluik.
De (half)open keuken is volledig vernieuwd in 2020 met een fraaie inbouwkeuken voorzien van diverse apparatuur en in 2023 uitgerust met een inductieplaat. Achter de keuken een prima betegelde bijkeuken met o.a de witgoedopstelling en tuindeur. Achter de bijkeuken bevindt zich nog een ruime aangebouwde berging die ook een tuindeur heeft. Naast de achtertuin met achterom is daar recentelijk ook een veranda/overkapping gerealiseerd, welke ook aan de voorzijde af te sluiten is.
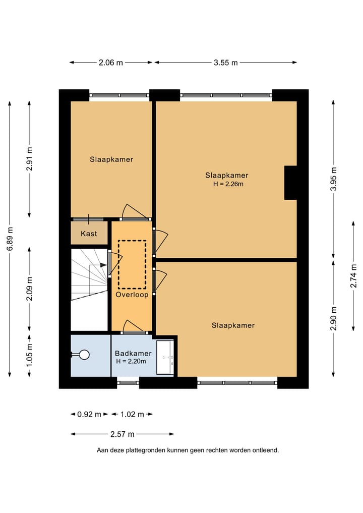
Verdiepingen:
Op de overloop vindt u de toegangsdeuren naar de badkamer en de 3 slaapkamers (waarvan de ouderslaapkamer met een infrarood sauna die is inbegrepen). De nette badkamer is circa 15 jaar oud en voorzien van een ruime inloopdouche met een wastafelmeubel. Op de overloop treft u tevens de vlizotrap aan waarmee u zich toegang verschaft tot de geïsoleerde zolderberging met dakramen.
Bijzonderheden:
- energielabel B
- lage energielasten !
- CV via Intergas HRE-combiketel 2020
- 8 zonnepanelen eigendom 310 Wp per stuk
- volledig kunststofkozijnen met grotendeels HR++ beglazingen
- moderne kwaliteitskeuken van 2020 met diverse inbouwapparatuur
- fraaie PVC vloer op de begane grond en op de verdieping de originele plankenvloeren
- markies voorgevel en rolluiken bij achtergevel en voordeur (mei 2024)
- woonoppervlakte 85 m² en overige inpandige ruimte (berging) 11 m²
- infrarood sauna op de ouderslaapkamer is inclusief
- eigen grond 172 m².
Kenmerken
Overdracht
- Laatste vraagprijs
- € 215.000 kosten koper
- Vraagprijs per m²
- € 2.529
- Status
- Verkocht
Bouw
- Soort woonhuis
- Eengezinswoning, tussenwoning
- Soort bouw
- Bestaande bouw
- Bouwperiode
- 1960-1970
- Soort dak
- Zadeldak bedekt met pannen
Oppervlakten en inhoud
- Gebruiksoppervlakten
- Wonen
- 85 m²
- Overige inpandige ruimte
- 11 m²
- Externe bergruimte
- 13 m²
- Perceel
- 172 m²
- Inhoud
- 347 m³
Indeling
- Aantal kamers
- 5 kamers (3 slaapkamers)
- Aantal badkamers
- 1 badkamer en 1 apart toilet
- Badkamervoorzieningen
- Sauna, inloopdouche, en wastafelmeubel
- Aantal woonlagen
- 3 woonlagen
- Voorzieningen
- Buitenzonwering, dakraam, natuurlijke ventilatie, rolluiken, rookkanaal, sauna, TV kabel, en zonnepanelen
Energie
- Energielabel
- B
- Isolatie
- Dakisolatie, dubbel glas, HR-glas, muurisolatie en vloerisolatie
- Verwarming
- Cv-ketel
- Warm water
- Cv-ketel
- Cv-ketel
- Intergas HRE ( combiketel uit 2020, eigendom)
Kadastrale gegevens
- SINT JACOBI PAROCHIE A 2464
- Kadastrale kaart
- Oppervlakte
- 172 m²
- Eigendomssituatie
- Volle eigendom
Buitenruimte
- Ligging
- Aan rustige weg en in woonwijk
- Tuin
- Achtertuin en voortuin
- Voortuin
- 54 m² (9,00 meter diep en 6,00 meter breed)
- Ligging tuin
- Gelegen op het zuiden
Bergruimte
- Schuur/berging
- Aangebouwde stenen berging
- Voorzieningen
- Elektra
Parkeergelegenheid
- Soort parkeergelegenheid
- Openbaar parkeren
Foto's 45
© 2001-2025 funda












































