Dit huis op Funda: https://www.funda.nl/detail/koop/stadskanaal/huis-putterhof-9/43266372/

Putterhof 99502 TC StadskanaalVogelwijk en De Borgen
€ 375.000 k.k.
BlikvangerInstapklare halfvrijstaande woning met garage en drie slaapkamers
Omschrijving
Stadskanaal - Putterhof 9
Vraagprijs: € 375.000,- k.k.
Bent u op zoek naar een instapklare woning op een gewilde locatie? Dan is deze prachtig gelegen half vrijstaande woning in de geliefde Vogelwijk van Stadskanaal precies wat u zoekt! Deze woning met drie ruime slaapkamers staat op een perceel van ca. 380 m² en beschikt over een ruime garage met voorgebouwde carport.
Indeling:
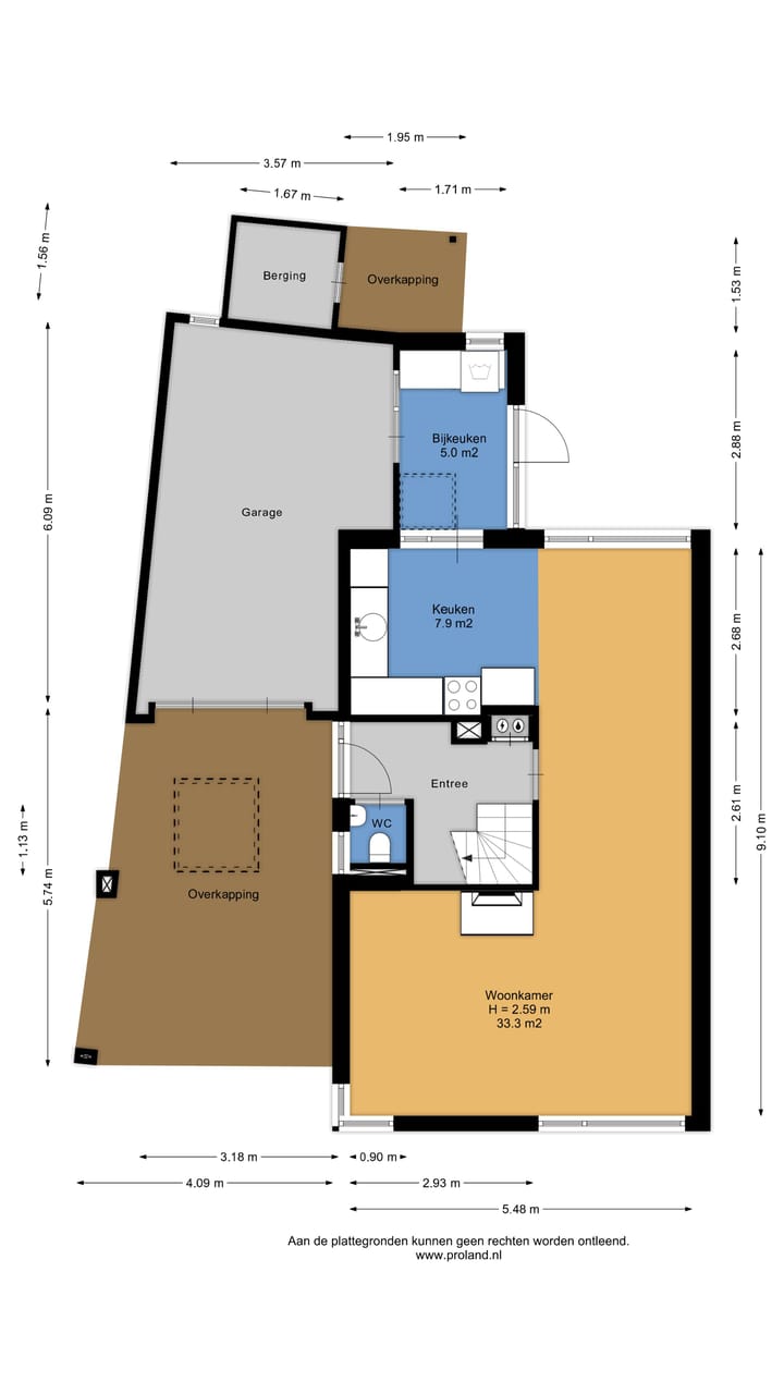
Begane grond: entree /hal met trapopgang, meterkast, toilet (wandcloset met fontein), sfeervolle L-vormige woonkamer (ca. 33.3 m²) met veel lichtinval en open keuken (ca. 7.9 m²) in hoekopstelling v.v. diverse inbouwapparatuur, bijkeuken/berging (ca. 5 m² met achter entree en binnendoor naar de aangebouwde stenen garage (ca. 21 m²).
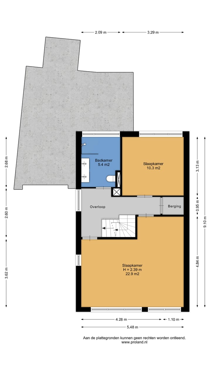
Eerste verdieping: overloop, 2 slaapkamers (resp. ca. 22.9 m² en 10.3 m²), badkamer (ca. 5.4 m²) met dubbel wastafelmeubel, wandcloset en inloopdouche.
Tweede verdieping: middels vaste trap bereikbare overloop met hobbyruimte/thuiswerkplek, CV ruimte, en slaapkamer (ca. 12 m²).
Overige informatie:
- Origineel bouwjaar: 1979 conform Bagviewer Kadaster;
- Voorzien van dak- en gevelisolatie;
- Houten kozijnen rondom v.v. grotendeels isolerende beglazing;
- Verwarmd middels CV (Nefit, bouwjaar ca. 2015) en 2 airco's;
- Voorzien van 10 zonnepanelen;
- De keuken beschikt over: gaskookplaat, afzuigkap, koelkast en oven;
- In de tuin bevindt zich een aangebouwde houten schuur (ca. 2.8 m²) ideaal voor bv. tuingereedschap en een vrijstaande houten blokhut (ca. 7.3 m²).
Omgevingsinfo:
De woning is gelegen vlakbij het bekende Pagedal met o.a. een fijne zwemplas, allerlei recreatie- en sportmogelijkheden, uitloop- en fietsgebied door een prachtig aangelegd bos bereikbaar middels de Rode Loper brug. Verder ligt de woning vlakbij alle uitvalswegen zodat kernplaatsen als Emmen en Groningen eenvoudig bereikbaar zijn.
Stadskanaal zelf heeft uitgebreide voorzieningen met o.a. een uitgebreid en gevarieerd winkelbestand, theater, hotel, bioscoop en ziekenhuis. Verder zijn er op korte afstand van de woning een basisschool en scholen voor het voortgezet onderwijs. Daarbij kent Stadskanaal een snelle busverbinding naar o.a. Emmen, Assen en Groningen.
Kenmerken
Overdracht
- Aangeboden sinds
- Aanvaarding
- In overleg
- Vraagprijs
- € 375.000 kosten koper
- Vraagprijs per m²
- € 2.841
- Status
- Beschikbaar
Bouw
- Soort woonhuis
- Eengezinswoning, 2-onder-1-kapwoning
- Soort bouw
- Bestaande bouw
- Bouwjaar
- 1979
- Soort dak
- Dwarskap bedekt met pannen
Oppervlakten en inhoud
- Gebruiksoppervlakten
- Wonen
- 132 m²
- Overige inpandige ruimte
- 20 m²
- Gebouwgebonden buitenruimte
- 24 m²
- Externe bergruimte
- 10 m²
- Perceel
- 380 m²
- Inhoud
- 524 m³
Indeling
- Aantal kamers
- 4 kamers (3 slaapkamers)
- Aantal badkamers
- 1 badkamer en 1 apart toilet
- Badkamervoorzieningen
- Dubbele wastafel, inloopdouche, en toilet
- Aantal woonlagen
- 3 woonlagen
- Voorzieningen
- Buitenzonwering, dakraam, glasvezelkabel, mechanische ventilatie, rookkanaal, TV kabel, en zonnepanelen
Energie
- Energielabel
- B
- Isolatie
- Dakisolatie en muurisolatie
- Verwarming
- Cv-ketel en gedeeltelijke vloerverwarming
- Warm water
- Cv-ketel
- Cv-ketel
- Nefit (2015, eigendom)
Kadastrale gegevens
- ONSTWEDDE B 7220
- Kadastrale kaart
- Oppervlakte
- 294 m²
- Eigendomssituatie
- Volle eigendom
- ONSTWEDDE B 7649
- Kadastrale kaart
- Oppervlakte
- 73 m²
- Eigendomssituatie
- Volle eigendom
- ONSTWEDDE B 12512
- Kadastrale kaart
- Oppervlakte
- 13 m²
Buitenruimte
- Ligging
- Aan rustige weg, in bosrijke omgeving en in woonwijk
- Tuin
- Achtertuin, voortuin en zijtuin
Bergruimte
- Schuur/berging
- Vrijstaande houten berging
Garage
- Soort garage
- Aangebouwde stenen garage
- Capaciteit
- 1 auto
Parkeergelegenheid
- Soort parkeergelegenheid
- Op eigen terrein
Foto's 38
Plattegronden 5
© 2001-2025 funda










































