Dit huis op Funda: https://www.funda.nl/detail/koop/staphorst/huis-rijksweg/89392480/

Rijksweg7951 DH StaphorstStaphorst streek
€ 339.000 v.o.n.
Omschrijving
Ontdek ons nieuwe woonproject "DUNNINKSERF".
Ideaal gelegen nabij het centrum, uitvalswegen, scholen en winkels. Geniet van de perfecte combinatie van rust en bereikbaarheid in een moderne, duurzame woning. De ideale plek voor comfortabel wonen met alles binnen handbereik. Grijp deze kans en maak van dit nieuwbouwproject jouw nieuwe thuis!
Het plan bestaat uit 10 woningen.
waaronder een appartementencomplex. Bestaande uit 4 appartementen.
woning 5 (verkocht)
woning 6 is nog beschikbaar (74m2)
woning 7 is nog beschikbaar (117m2)
woning 8 is nog beschikbaar (74m2)
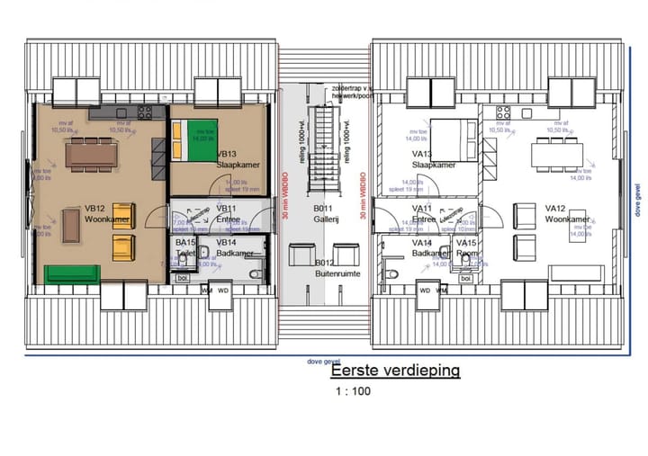
Bouwnummer 6 en 8 – Sfeervolle appartementen met semi-open galerij en terras
Compact en comfortabel wonen met buitenterras en gedeelde galerij
Dit fijne bovenappartement heeft een woonoppervlakte van ca. 74 m² en een inhoud van ca. 493 m³. De woonkamer met open keuken beslaat een oppervlakte van 44 m², ideaal voor een knusse, lichte leefruimte.
De woning beschikt over één slaapkamer van ca. 16 m² en is verbonden met een semi-open galerij met een gedeeld buitenterras, waar u heerlijk buiten kunt zitten en contact heeft met de buren. De galerij wordt gedeeld met Bouwnummer 8, wat zorgt voor een gezellige en sociale woonomgeving.
Bouwnummer 6 en 8 hebben als kenmerken:
Woonoppervlakte: 74 m2
Inhoud: 493 m3
Woonkamer/keuken van 44 m²
Eén slaapkamer van 16 m²
Semi-open galerij met gedeeld buitenterras
Bouwnummer 7 – Ruim benedenappartement met twee slaapkamers
Veel leefruimte en comfort op de begane grond
Bouwnummer 7 is een royaal benedenappartement met een totale perceeloppervlakte van ca. 686 m², waarvan ca. 44 m² gemeenschappelijke steeg. De woning biedt een grote, open woonkamer met keuken van 65 m², waar u volop ruimte heeft voor wonen en koken.
Daarnaast beschikt dit appartement over twee slaapkamers van respectievelijk 16 en 13 m², ideaal voor een gezin, een werkruimte of hobby.
Kenmerken
Woonoppervlakte:117m2
Inhoud:428m3
Perceeloppervlakte: ca. 686 m² (incl. 44 m² gemeenschappelijke steeg)
Ruime woonkamer/keuken van 65 m²
Twee slaapkamers van 16 en 13 m²
Kenmerken
Overdracht
- Oorspronkelijke vraagprijs
- € 475.000 vrij op naam
- Aangeboden sinds
- Aanvaarding
- In overleg
- Vraagprijs
- € 339.000 vrij op naam
- Vraagprijs per m²
- € 4.581
- Status
- Beschikbaar
Bouw
- Bouwjaar
- Na 2020
- Soort woonhuis
- Eengezinswoning, tussenwoning
- Soort bouw
- Nieuwbouw
Oppervlakten en inhoud
- Gebruiksoppervlakten
- Wonen
- 74 m²
- Perceel
- 309 m²
- Inhoud
- 700 m³
Indeling
- Aantal kamers
- 3 kamers (1 slaapkamer)
- Aantal woonlagen
- 1 woonlaag
Energie
- Energielabel
- Niet beschikbaar
- Verwarming
- Gehele vloerverwarming en warmtepomp
Kadastrale gegevens
- STAPHORST AA 2980
- Kadastrale kaart
- Oppervlakte
- 309 m²
- Eigendomssituatie
- Volle eigendom
Buitenruimte
- Ligging
- Aan drukke weg, buiten bebouwde kom, in centrum en vrij uitzicht
Foto's 4
© 2001-2026 funda



