Dit huis op Funda: https://www.funda.nl/detail/koop/stavoren/huis-de-bleeck-8/43090735/

Omschrijving
Aan de rand van het open vaarwater van Stavoren ligt deze moderne, vrijstaande nieuwbouwwoning. Een zeldzaam plekje waar wonen, ontspanning en watersport samenkomen. Je eigen ligplaats ligt letterlijk voor de deur, geschikt voor een zeilboot, sloep of kruiser en dankzij de open vaarverbinding vaar je met gemak het IJsselmeer of de Friese meren op.
De woning maakt deel uit van het exclusieve plan ‘Woonwaterrijk’, een rustige wijk aan het water waar zowel permanente bewoning als recreatief verblijf is toegestaan. Het perceel van 338 m² bestaat deels uit privéwater, zo’n 13 bij 8,5 meter, afgeschermd door een charmante ophaalbrug die alleen jij kunt openen. Ook aan de voorzijde ligt vaarwater, gescheiden door een rustige straat.
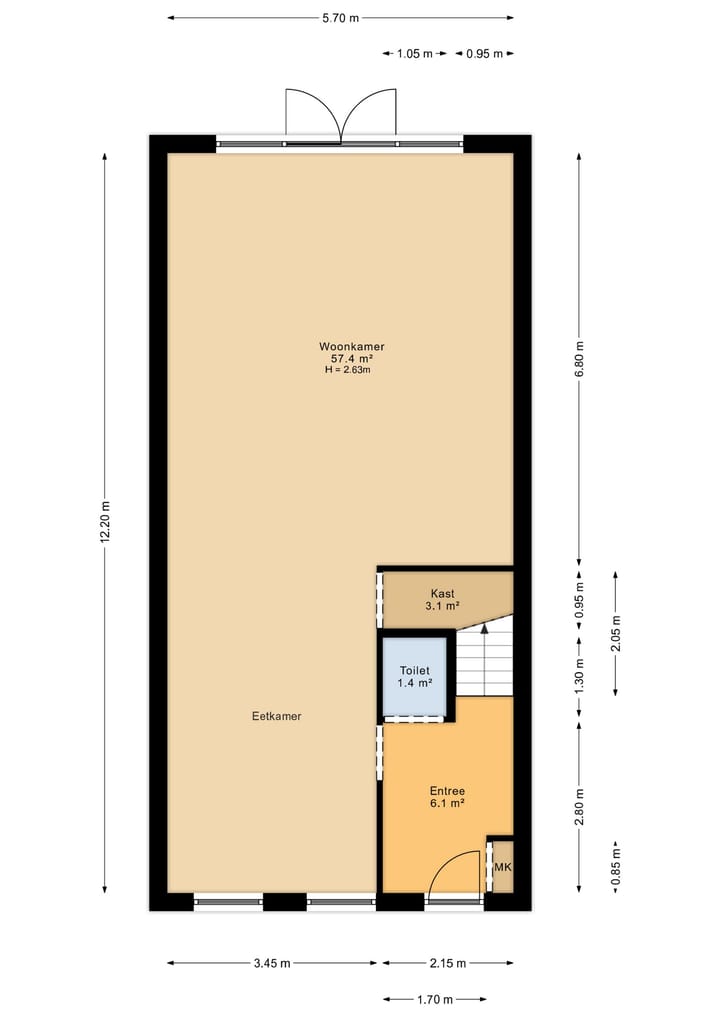
Binnen vind je een royale en lichte begane grond van zo’n 57 m², met openslaande deuren naar de tuin. De keuken kun je nog naar wens plaatsen, aan de voorzijde of meer centraal in de ruimte. Boven zijn vier kamers verdeeld over twee verdiepingen: twee ruime slaapkamers en een badkamer op de eerste verdieping (nog zelf in te delen), en nog twee (slaap)kamers op de tweede etage. Vanuit de bovenste verdieping kijk je op heldere dagen zelfs over het IJsselmeer heen.
De woning is recent gebouwd, volledig gasloos, en voorzien van moderne energietechniek zoals een warmtepomp, acht zonnepanelen en HR++ glas in kunststof kozijnen. Vloerverwarming is aangelegd op de begane grond en eerste verdieping, en indien gewenst kan ook de tweede verdieping verwarmd worden, bijvoorbeeld met infraroodpanelen.
De tuin ligt op het noordwesten, met volop ruimte voor een berging of een overkapping. Of je nu wilt zwemmen, vissen of gewoon aan het water wilt zitten met een glas wijn, deze plek biedt alle ruimte en rust.
Om je een goed beeld te geven van de mogelijkheden, zijn artist impressions beschikbaar van de keuken, woonkamer en badkamer. De woning wordt aangeboden voor € 572.500 v.o.n. in de huidige, casco-afgebouwde staat. Volledige afbouw is mogelijk voor circa € 80.000, deze opties zijn via Wonen aan Water Makelaars op te vragen.
Indeling in het kort:
De begane grond heeft een ruime hal met toilet, trapopgang, meterkast, een open keuken (plaats naar keuze), en een riante woonkamer met tuinzicht.
Op de eerste verdieping bevinden zich een overloop, technische ruimte, badkamer en twee ruime slaapkamers.
De tweede verdieping biedt nog eens twee kamers en aansluitingen voor wasmachine en droger.
Belangrijke kenmerken:
* Gasloos wonen met energielabel A+++
* Eigen perceel met water, totaal 338 m²
* Woonoppervlak circa 143 m²
* 8 zonnepanelen en warmtepomp
* Vloerverwarming op de begane grond en eerste verdieping
* Directe vaarverbinding met het IJsselmeer
* Goede mogelijkheden voor vakantieverhuur
De ligging in Stavoren is ideaal. Je woont op korte afstand van het strand, de sluis en de gezellige cafés en restaurants van dit charmante Elfstedenstadje. In de omgeving vind je schitterende natuurgebieden, zoals de Gaasterlandse bossen, kliffen en meren; een prachtig decor voor wandel- en fietstochten.
Alle dagelijkse voorzieningen zijn dichtbij: een grote supermarkt om de hoek, een basisschool, kinderopvang en diverse sportverenigingen. Dankzij het eigen treinstation is Stavoren uitstekend bereikbaar, met een directe verbinding naar Sneek en Leeuwarden.
Stavoren is het oudste Elfstedenstadje van Friesland, met een unieke ligging aan open vaarwater dat in directe verbinding staat met heel Nederland. Vanuit je eigen ligplaats vaar je zó het IJsselmeer op, zonder sluizen, zonder wachten.
Een unieke kans voor wie aan het water wil wonen, of wil investeren in een toekomstbestendige woning met karakter én uitzicht. Jouw eigen waterfront villa wacht op je.
Kenmerken
Overdracht
- Laatste vraagprijs
- € 560.000 kosten koper
- Vraagprijs per m²
- € 3.916
- Status
- Verkocht
Bouw
- Soort woonhuis
- Eengezinswoning, vrijstaande woning
- Soort bouw
- Bestaande bouw
- Bouwjaar
- 2024
- Soort dak
- Zadeldak bedekt met pannen
Oppervlakten en inhoud
- Gebruiksoppervlakten
- Wonen
- 143 m²
- Perceel
- 338 m²
- Inhoud
- 556 m³
Indeling
- Aantal kamers
- 5 kamers (4 slaapkamers)
- Aantal badkamers
- 1 badkamer en 1 apart toilet
- Badkamervoorzieningen
- Douche, ligbad, toilet, en wastafelmeubel
- Aantal woonlagen
- 3 woonlagen
- Voorzieningen
- Mechanische ventilatie en zonnepanelen
Energie
- Energielabel
- A+++
- Isolatie
- Volledig geïsoleerd
- Verwarming
- Gedeeltelijke vloerverwarming en warmtepomp
- Warm water
- Elektrische boiler
Kadastrale gegevens
- STAVEREN C 534
- Kadastrale kaart
- Oppervlakte
- 72 m²
- Eigendomssituatie
- Volle eigendom
- STAVEREN C 535
- Kadastrale kaart
- Oppervlakte
- 250 m²
- Eigendomssituatie
- Volle eigendom
- STAVEREN C 536
- Kadastrale kaart
- Oppervlakte
- 16 m²
- Eigendomssituatie
- Volle eigendom
Buitenruimte
- Ligging
- Aan rustige weg, aan vaarwater, aan water en in woonwijk
- Tuin
- Achtertuin en voortuin
- Achtertuin
- 106 m² (12,50 meter diep en 8,50 meter breed)
Parkeergelegenheid
- Soort parkeergelegenheid
- Openbaar parkeren
Foto's 55
© 2001-2025 funda






















































