
Appartementen eerste verdieping 1.1 (Bouwnr. 1)8331 CS SteenwijkOostwijken, De Beitel
€ 559.900 v.o.n.
Omschrijving
SteenStaete
Start bouw na de zomer 2025. Prognose oplevering medio Q2 2026.
Modern, comfortabel en volledig gasloos wonen nabij het centrum van de stad Steenwijk; dat is wonen in project SteenStaete. In dit voormalig bankgebouw worden 14 hoogwaardige appartementen gerealiseerd, alle voorzien van een badkamer en geheel naar smaak in te richten. Dit alles gelegen in een rustige omgeving op loopafstand van het stadscentrum.
Algemene informatie over de appartementen:
Dit bijzondere project biedt ruimte aan 14 appartementen. De appartementen variëren in de grootte van 78 tot wel 144 m². Ideaal aan het project is dat de woningen geheel gasloos zijn en voorzien zijn van warmtepompen.
Bijzonderheden
• Gasloos en veel oog voor duurzaamheid
• Vloerverwarming middels warmtepomp
• Warmte-terug-win installatie
• Videofoon deursysteem
• Afgesloten fietsenstalling
• Diverse opties t.b.v. inpandig parkeren.
• Voorzien van 2 liften.
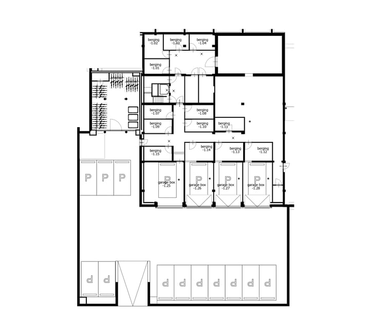
• Berging en parkeren in de onderbouw / garage (optioneel).
• Eigen Grond
• Vereniging van Eigenaren wordt opgestart
• Maandelijkse VVE bijdrage wordt later vastgesteld
• Project met afbouwborg garantie
• Er zijn reeds termijnen gefactureerd. Voor een actueel overzicht kunt u contact opnemen met ons.
Steenstaete is zeer centraal gelegen nabij het centrum met een ruim winkelaanbod, theater en filmhuis De Meenthe, bioscoop en NS-intercitystation, scholen en sportgelegenheden in Sportpark De Nieuwe Gagels en De Groene Long met o.a. overdekt zwembad.
Ook qua bereikbaarheid is de stad Steenwijk zeer gunstig gelegen, denk aan de goede verbindingen met de rest van Nederland via A32 (Meppel-Leeuwarden), A28 (Utrecht-Groningen)en N333 (Flevoland-Overijssel).
Tevens biedt de omgeving veel diversiteit en mooie natuurgebieden met o.a. de bossen van "De Woldberg" en landgoed "De Eese", de schoonheid van het Nationaal Park "Wieden en Weerribben" met prachtige vaar- /fiets-/wandel-/paardrijdroutes die nooit zullen vervelen.
Kenmerken
Overdracht
- Aangeboden sinds
- Aanvaarding
- In overleg
- Vraagprijs
- € 559.900 vrij op naam
- Vraagprijs per m²
- € 4.515
- Status
- Beschikbaar
Bouw
- Soort appartement
- Galerijflat (appartement)
- Soort bouw
- Nieuwbouw
- Bouwjaar
- 2025
- Soort dak
- Plat dak
- Keurmerken
- SWK Garantiecertificaat
Oppervlakten en inhoud
- Gebruiksoppervlakten
- Wonen
- 124 m²
- Gebouwgebonden buitenruimte
- 10 m²
- Externe bergruimte
- 8 m²
- Inhoud
- 562 m³
Indeling
- Aantal kamers
- 3 kamers (2 slaapkamers)
- Aantal badkamers
- 1 badkamer en 1 apart toilet
- Badkamervoorzieningen
- Douche, inloopdouche, toilet, vloerverwarming, en wastafel
- Aantal woonlagen
- 1 woonlaag
- Voorzieningen
- Mechanische ventilatie, TV kabel, en zonnepanelen
- Gelegen op
- 2e woonlaag
Energie
- Energielabel
- Niet beschikbaar
- Isolatie
- Volledig geïsoleerd
- Verwarming
- Gehele vloerverwarming en warmtepomp
- Warm water
- Elektrische boiler
Buitenruimte
- Ligging
- In centrum en in woonwijk
Bergruimte
- Schuur/berging
- Inpandig
- Voorzieningen
- Elektra
Garage
- Soort garage
- Parkeerplaats
Parkeergelegenheid
- Soort parkeergelegenheid
- Op afgesloten terrein, op eigen terrein, openbaar parkeren en parkeergarage
Foto's 9
© 2001-2025 funda








