Dit huis op Funda: https://www.funda.nl/detail/koop/streefkerk/huis-nieuwe-veer-41/89545114/

Nieuwe Veer 412959 AK StreefkerkDijkgebied-Streefkerk
€ 799.000 k.k.
BlikvangerVrijstaande ruimte karaktervolle woning met prachtig uitzicht!
Omschrijving
Wonen aan de Nieuwe Veer
Een plek waar karakter en vrijheid hand in hand gaan. Deze vrijstaande woning ademt sfeer en karakter, met zorgvuldig bewaarde details uit vervlogen tijden. Denk aan glas-in-loodramen, stalramen, pironnen op het dak en karakteristieke dakkapellen.
De woning beschikt over twee schuren en ligt prachtig, met vrij uitzicht rondom. Het geheel vormt een ansichtwaardige plaatje. Vanuit de woonkamer kijkt u recht op molen De Liefde en aan de overzijde bewondert u het indrukwekkende rivierenlandschap van de Lek. De foto’s geven slechts een impressie, komt u dit met eigen bekijken?
De woning
De buitenzijde van de woning straalt direct charme en authenciteit uit. Het statige metselwerk, sierlijke gevel met pironnen en de klassieke dakkapellen geven de woning een tijdloze uitstraling. De statige entree wordt omgeven door stijlvolle details. Het smeedijzeren hekwerk versterkt het traditionele karakter. De woning biedt aan de binnenzijde veel leefruimte. Bij binnenkomst via de entree bereikt u de hal met toegang tot het toilet, meterkast, lichte woonkamer, open keuken, de 1e verdieping én het souterrain. Aan de achterzijde van de woning grenst een ruim terras met een vaste trap naar onderliggende veranda. Het terras is dé plek om samen met familie en vrienden van lange zomeravonden te genieten.
Op de verdieping bevinden zich 3 (voorheen 4) slaapkamers en de badkamer. De bergzolder (hoogte 1,25m) is vanaf de overloop bereikbaar. Hier ervaart u vrijheid in alle richtingen.
In het souterrain bevindt zich een ruime 4e slaapkamer met toegang tot een praktische, een iets hoger gelegen hobbyruimte. Het souterrain is ook goed bruikbaar als thuiskantoor met een eigen buitendeur met trap aan de zijkant van de woning. Daarnaast vindt u hier de 2e badkamer, 3e toilet, extra bergruimte en een cv-kast. Via de hal is er toegang tot een praktische, overdekte veranda als ‘voorportaal’ van de achtertuin. Komt u mee verder in de tuin?
Buiten
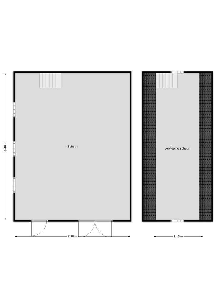
De woning ligt op een royaal perceel met achterop het perceel een ruime, onderheide en volledig geïsoleerde schuur met verdieping, in totaal ca. 99m2 groot. Ideaal voor het stallen van voertuigen, hobby’s óf het combineren van wonen en werken- ook de ondernemer kan hier uitstekend uit de voeten. Op het dak liggen 27 zonnepanelen die in 2024 zorgden voor een opbrengst van ca. 7000 kWh. De tuin is fraai aangelegd met verschillende niveaus, volwassen bomen, beplanting, meerdere terrassen en 2e schuur (ca. 21m2). Het pad vanaf de dijk loopt tot achter in de tuin en biedt ruimte voor het stallen van een wagenpark, boot en/of caravan of camper. Aan de overkant van de woning wordt een perceel gehuurd van ca. 37m2 waar parkeerplek is voor 2 auto’s met zelfs een actief en bruikbaar laadpunt.
Alles samen maakt dit huis een heerlijke plek om te genieten van ruimte, rust en eindeloze mogelijkheden.
Rust en ruimte in de Alblasserwaard
Gelegen in het idyllische Streefkerk, midden in de groene Alblasserwaard, woont u hier in een gebied dat bekend staat om zijn open landschappen, kronkelende riviertjes en schilderachtige vergezichten. Het dorp heeft een vriendelijke dorpskern met winkels, basisscholen, sportverenigingen, een actief verenigingsleven en een jachthaven met horeca. Fiets- en wandelroutes starten letterlijk om de hoek.
Streefkerk is strategisch gelegen: u rijdt binnen 15-20 minuten naar steden als Dordrecht, Gorinchem en Rotterdam. Via de waterbusverbinding in het nabijgelegen Nieuw-Lekkerland bent u bovendien snel en filevrij in het hart van Dordrecht of Rotterdam.
Ervaar het zelf
Deze woning moet u zien en voelen. Maak een afspraak voor een bezichtiging en ontdek hoe het is om te wonen op deze unieke plek.
Kenmerken
Overdracht
- Oorspronkelijke vraagprijs
- € 849.000 kosten koper
- Aangeboden sinds
- Aanvaarding
- In overleg
- Vraagprijs
- € 799.000 kosten koper
- Vraagprijs per m²
- € 5.832
- Status
- Beschikbaar
Bouw
- Soort woonhuis
- Villa, vrijstaande woning (dijkwoning)
- Soort bouw
- Bestaande bouw
- Bouwjaar
- 1920
- Soort dak
- Zadeldak bedekt met pannen
Oppervlakten en inhoud
- Gebruiksoppervlakten
- Wonen
- 137 m²
- Overige inpandige ruimte
- 15 m²
- Gebouwgebonden buitenruimte
- 52 m²
- Externe bergruimte
- 120 m²
- Perceel
- 665 m²
- Inhoud
- 495 m³
Indeling
- Aantal kamers
- 5 kamers (4 slaapkamers)
- Aantal badkamers
- 2 badkamers en 2 aparte toiletten
- Badkamervoorzieningen
- Douche, wastafel, ligbad, toilet, en wastafelmeubel
- Aantal woonlagen
- 2 woonlagen en een kelder
- Voorzieningen
- Airconditioning, glasvezelkabel, rookkanaal, en zonnepanelen
Energie
- Energielabel
- Isolatie
- Dubbel glas
- Verwarming
- Cv-ketel en open haard
- Warm water
- Cv-ketel
- Cv-ketel
- Remeha HR CW5 (gas gestookt uit 2022, eigendom)
Kadastrale gegevens
- STREEFKERK E 1020
- Kadastrale kaart
- Oppervlakte
- 665 m²
- Eigendomssituatie
- Volle eigendom
Buitenruimte
- Ligging
- Aan drukke weg, aan water, open ligging en vrij uitzicht
- Tuin
- Achtertuin
- Achtertuin
- 475 m² (25,00 meter diep en 19,00 meter breed)
- Ligging tuin
- Gelegen op het zuidoosten bereikbaar via achterom
Bergruimte
- Schuur/berging
- Vrijstaande stenen berging
- Voorzieningen
- Vliering
- Isolatie
- Dakisolatie en muurisolatie
Garage
- Soort garage
- Vrijstaande stenen garage
- Capaciteit
- 5 auto's
- Voorzieningen
- Vliering, elektra en stromend water
- Isolatie
- Dakisolatie en muurisolatie
Parkeergelegenheid
- Soort parkeergelegenheid
- Op eigen terrein
Foto's 59
© 2001-2026 funda


























































