
Omschrijving
Lijkt het je leuk om jouw eigen droomwoning te creëren?
Kom dan langs bij de Johan ter Schoeleweg 8 in Surhuisterveen!
Als je opzoek bent naar een mogelijkheid om een nieuwe woning volledig naar eigen smaak en wensen in te richten, dan is dit jouw kans (!)
De huidige eigenaar heeft de woning volledig gestript en heeft daarnaast de volgende werkzaamheden uitgevoerd:
- Op de benedenverdieping is een nieuwe betonvloer gestort met PIR isolatie en vloerverwarming.
- De elektrische installatie is vernieuwd.
- Het plafond op de eerste verdieping is voorzien van gipsplaten.
- De zoldervloer is geïsoleerd.
- De benedenverdieping is gestuct.
Om een indruk te geven van de potentie van deze woning hebben we aan het foto-overzicht twee 'artist impressions' toegevoegd.
De woning bevindt zich op een perceel van 158 m2. Aan de achterzijde van de woning heb je de beschikking over een diepe achtertuin op het (zonnige) zuidwesten (!)
De woning is gelegen in een gezellige woonwijk, dichtbij het centrum van Surhuisterveen. Benodigde voorzieningen zoals supermarkten, sportverenigingen, scholen en openbaar vervoer bevinden zich allemaal in de directe omgeving.
Indeling.
Begane grond:
Entree, hal met toilet. Vanuit de hal komt u in de woonkamer met (open) keuken. Via de keuken heeft u toegang tot de bijkeuken aan de achterzijde van de woning.
Eerste verdieping:
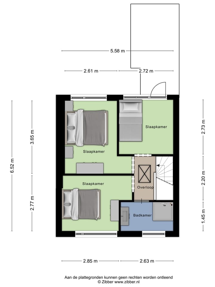
Vaste trap naar eerste verdieping, overloop 3 slaapkamers en badkamer. Via de overloop heeft u middels een vlizotrap tevens toegang tot de zolder.
Bijzonderheden:
- Woning volledig naar eigen wens in te richten.
- Bovenverdieping is voorzien van kunststof kozijnen.
- Achtertuin gelegen op het zuidwesten.
Benieuwd naar welke mogelijkheden deze woning biedt?
Bel of mail dan voor een bezichtiging!
Kenmerken
Overdracht
- Laatste vraagprijs
- € 225.000 kosten koper
- Vraagprijs per m²
- € 2.778
- Status
- Verkocht
Bouw
- Soort woonhuis
- Eengezinswoning, tussenwoning
- Soort bouw
- Bestaande bouw
- Bouwjaar
- 1961
- Soort dak
- Zadeldak bedekt met bitumineuze dakbedekking en pannen
Oppervlakten en inhoud
- Gebruiksoppervlakten
- Wonen
- 81 m²
- Overige inpandige ruimte
- 9 m²
- Gebouwgebonden buitenruimte
- 1 m²
- Perceel
- 158 m²
- Inhoud
- 318 m³
Indeling
- Aantal kamers
- 4 kamers (3 slaapkamers)
- Aantal badkamers
- 1 apart toilet
- Aantal woonlagen
- 2 woonlagen en een zolder
Energie
- Energielabel
- Isolatie
- Dubbel glas en HR-glas
Kadastrale gegevens
- SURHUIZUM B 6167
- Kadastrale kaart
- Oppervlakte
- 158 m²
- Eigendomssituatie
- Volle eigendom
Buitenruimte
- Ligging
- Aan rustige weg en in woonwijk
- Tuin
- Achtertuin en voortuin
- Achtertuin
- 74 m² (13,50 meter diep en 5,50 meter breed)
- Ligging tuin
- Gelegen op het zuidwesten bereikbaar via achterom
Parkeergelegenheid
- Soort parkeergelegenheid
- Op eigen terrein en openbaar parkeren
Foto's 29
© 2001-2026 funda




























