Dit huis op Funda: https://www.funda.nl/detail/koop/tegelen/huis-mulgouwsingel-78/43902843/

Omschrijving
Ruime hoekwoning met royale zijtuin, moderne keuken en extra hobbykamer in Tegelen
Aan de Mulgouwsingel 78 in Tegelen staat deze verrassend ruime hoekwoning met een royale zijtuin, overdekt terras, twee bergingen en een praktische indeling. De woning beschikt over een lichte woonkamer, een moderne keuken, drie comfortabele slaapkamers en een eigentijdse badkamer. De voormalige garage is omgebouwd tot een multifunctionele hobbyruimte of bijkeuken, wat deze woning ideaal maakt voor gezinnen of thuiswerkers. De gehele woning is voorzien van kunststof kozijnen met dubbel glas en/of HR++ beglazing, wat zorgt voor extra comfort en lage onderhoudskosten.
Begane grond
Bij binnenkomst word je verwelkomd in de hal met garderobe, een modern zwevend toilet en de meterkast. Vanuit hier betreed je de ruime woonkamer van ca. 29 m² met een praktische tegelvloer en een loopdeur naar het overdekte terras, perfect voor zomerse dagen.
Aansluitend aan de woonkamer ligt de aparte eetkamer (ca. 14 m²), die voldoende ruimte biedt voor een grote eettafel. De keuken (2009) is modern ingericht en voorzien van diverse inbouwapparatuur, waaronder een gasfornuis, oven, vaatwasser en voldoende werk- en bergruimte.
De voormalige garage is slim omgetoverd tot een extra hobbykamer/bijkeuken – ideaal als wasruimte, werkplek of speelkamer.
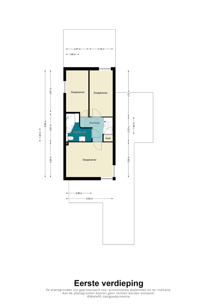
Eerste verdieping
Op de verdieping bevinden zich drie slaapkamers van ca. 14 m², 9 m² en 9 m². De overloop beschikt over een praktische inbouwkast met de opstelling van de cv-ketel. De badkamer is modern en compleet uitgerust met een hoekbad inclusief douche, een tweede toilet en een wastafel met meubel.
Zolder
De bergzolder is bereikbaar via een vlizotrap en biedt extra opslagruimte.
Buitenruimte
De royale zijtuin maakt deze hoekwoning extra aantrekkelijk. Hier vind je een groot overdekt terras, twee bergingen en volop ruimte om te genieten van het buitenleven. Dankzij de hoekligging is er veel privacy en lichtinval.
Over de omgeving
De woning ligt in een rustige, kindvriendelijke woonwijk in Tegelen met alle voorzieningen in de buurt. In de directe omgeving bevinden zich scholen, speeltuintjes, supermarkten, sportverenigingen en openbaar vervoer. Het centrum van Tegelen is op korte afstand bereikbaar en ook de uitvalswegen richting Venlo, Roermond en de A73 liggen binnen handbereik. Bovendien biedt de omgeving veel mogelijkheden voor recreatie, wandelen en fietsen in de groene omgeving van Noord-Limburg.
Bijzonderheden
- Hoekwoning met royale zijtuin, welke is voorzien van twee bergingen en overdekt terras
- Moderne keuken (2009) met inbouwapparatuur
- Woonkamer en aparte eetkamer
- Gehele woning voorzien van kunststof kozijnen met dubbel glas en/of HR++
Deze wonin biedt verrassend veel ruimte, comfort en mogelijkheden. Perfect voor wie op zoek is naar een goed onderhouden gezinswoning met extra’s, op een fijne locatie in Tegelen!
Kenmerken
Overdracht
- Laatste vraagprijs
- € 299.500 kosten koper
- Vraagprijs per m²
- € 2.773
- Status
- Verkocht
Bouw
- Soort woonhuis
- Eengezinswoning, hoekwoning
- Soort bouw
- Bestaande bouw
- Bouwjaar
- 1974
- Soort dak
- Lessenaardak bedekt met pannen
Oppervlakten en inhoud
- Gebruiksoppervlakten
- Wonen
- 108 m²
- Overige inpandige ruimte
- 16 m²
- Gebouwgebonden buitenruimte
- 23 m²
- Externe bergruimte
- 7 m²
- Perceel
- 396 m²
- Inhoud
- 493 m³
Indeling
- Aantal kamers
- 7 kamers (3 slaapkamers)
- Aantal woonlagen
- 2 woonlagen en een zolder
Energie
- Energielabel
- E
- Verwarming
- Cv-ketel
- Warm water
- Cv-ketel
- Cv-ketel
- Gas gestookt combiketel uit 2013, eigendom
Kadastrale gegevens
- TEGELEN D 1012
- Kadastrale kaart
- Oppervlakte
- 163 m²
- Eigendomssituatie
- Volle eigendom
- TEGELEN D 3716
- Kadastrale kaart
- Oppervlakte
- 233 m²
- Eigendomssituatie
- Volle eigendom
Buitenruimte
- Tuin
- Achtertuin, voortuin en zijtuin
- Zijtuin
- 210 m² (7,50 meter diep en 28,00 meter breed)
- Ligging tuin
- Gelegen op het oosten
Foto's 42
© 2001-2025 funda









































