Dit huis op Funda: https://www.funda.nl/detail/koop/tilburg/huis-hoefstraat-42/43090081/

Omschrijving
Let op! Kluswoning met potentie, grote stadstuin, 5-persoons verhuurvergunning én zonnepanelen – nabij centrum Tilburg
Op een centrale locatie in Tilburg, op korte afstand van het bruisende stadscentrum, staat deze karakteristieke tussenwoning uit 1938. De woning is recent grotendeels gestript, waardoor het zware sloopwerk al achter de rug is. Dit biedt een unieke kans voor de handige koper om hier een droomhuis van te maken — of voor de investeerder die op zoek is naar een pand met directe verhuurpotentie.
De woning beschikt over een vergunning voor 5-persoonsverhuur, zonnepanelen, een verrassend diepe stadstuin op het noordoosten én een royale berging van maar liefst 31 m². Dankzij de reeds uitgevoerde technische voorbereidingen, waaronder vernieuwde elektra, HR++ beglazing en afvoerleidingen voor dubbele sanitaire voorzieningen, is dit een solide basis voor verdere afbouw.
Bouwjaar: 1938
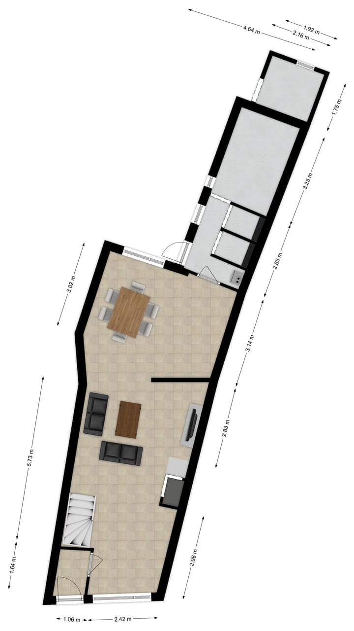
Woonoppervlakte: 89 m²
Perceeloppervlakte: 189m2
Inhoud: 331 m³
Indeling
Begane grond:
Entree met hal en toegang tot de woonkamer, die voorzien is van een tegelvloer en een open haard. De ruimte is recent gestript en wacht op verdere afwerking. Er zijn al voorzieningen getroffen voor een dubbele toiletinrichting, wat de woning bijzonder geschikt maakt voor (gedeeld) gebruik.
Eerste verdieping:
Op de eerste verdieping bevinden zich drie slaapkamers. Ook hier is de afwerking aan de nieuwe eigenaar, maar de basis is stevig. Er is ruimte en voorbereiding aanwezig voor het realiseren van een dubbele douchegelegenheid in de toekomstige badkamer — ideaal bij verhuur aan meerdere bewoners.
Buitenruimte
De verrassend diepe stadstuin is gelegen op het noordoosten en beschikt over een separate achterom. Achterin bevindt zich een royale, multifunctionele berging van 31 m², ideaal als werkruimte, opslag of hobbyruimte. Daarnaast worden bij aankoop diverse bouwmaterialen meegeleverd, waaronder zonnepanelen, gipsplaten en balkhout.
Reeds uitgevoerde werkzaamheden
- Elektra verzwaard van 1x25A naar 3x25A
- Nieuwe groepenkast met 12 groepen en 3 aardlekschakelaars
- Gedeeltelijk vernieuwde elektrische bekabeling
- Volledig vernieuwde kozijnen met HR++ beglazing
- Nieuwe achterdeur geplaatst
- Afvoeren aangelegd voor dubbele douche en toiletvoorziening
Inclusief bij aankoop:
- 12 Solarwatt zonnepanelen (320 WP – Vision 60M blackstyle)
- Montagesysteem (geschikt voor zuidwest-opstelling)
- ca. 28 gipsplaten (600x2000 mm) voor plafonds
- 9 groene gipsplaten (600x2600 mm) voor badkamer
- Ca. 120 meter balkhout (70x45 mm)
Bijzonderheden:
* Kluswoning met veel potentie en reeds uitgevoerde voorbereidingen
* Vergunning voor 5-persoonsverhuur — ideaal voor beleggers
* Drie slaapkamers op de eerste verdieping
* Stadstuin op het noordoosten met achterom
* Grote multifunctionele berging van 31 m²
* HR++ beglazing en kunststof kozijnen 2025,
* Zonnepanelen en bouwmaterialen inbegrepen
* Gelegen op loopafstand van het centrum van Tilburg
Kenmerken
Overdracht
- Laatste vraagprijs
- € 295.000 kosten koper
- Vraagprijs per m²
- € 3.315
- Status
- Verkocht
Bouw
- Soort woonhuis
- Eengezinswoning, tussenwoning
- Soort bouw
- Bestaande bouw
- Bouwjaar
- 1938
- Specifiek
- Kluswoning
- Soort dak
- Plat dak
Oppervlakten en inhoud
- Gebruiksoppervlakten
- Wonen
- 89 m²
- Gebouwgebonden buitenruimte
- 3 m²
- Externe bergruimte
- 31 m²
- Perceel
- 189 m²
- Inhoud
- 331 m³
Indeling
- Aantal kamers
- 4 kamers (3 slaapkamers)
- Aantal badkamers
- 1 badkamer en 1 apart toilet
- Aantal woonlagen
- 2 woonlagen
- Voorzieningen
- Glasvezelkabel, TV kabel, en zonnepanelen
Energie
- Energielabel
- Isolatie
- Dubbel glas en HR-glas
- Verwarming
- Cv-ketel
- Warm water
- Cv-ketel
Kadastrale gegevens
- TILBURG T 1738
- Kadastrale kaart
- Oppervlakte
- 10 m²
- Eigendomssituatie
- Volle eigendom
- TILBURG T 1136
- Kadastrale kaart
- Oppervlakte
- 179 m²
- Eigendomssituatie
- Volle eigendom
Buitenruimte
- Ligging
- In centrum, in woonwijk en open ligging
- Tuin
- Achtertuin
- Achtertuin
- 139 m² (25,32 meter diep en 5,50 meter breed)
- Ligging tuin
- Gelegen op het noordoosten bereikbaar via achterom
Bergruimte
- Schuur/berging
- Vrijstaande stenen berging
- Voorzieningen
- Elektra
Parkeergelegenheid
- Soort parkeergelegenheid
- Betaald parkeren en parkeervergunningen
Foto's 44
© 2001-2026 funda











































