Dit huis op Funda: https://www.funda.nl/detail/koop/tilburg/huis-piusstraat-339/43822311/

Omschrijving
PIUSSTRAAT 339 TILBURG
Midden in het hart van Tilburg ligt deze charmante eengezinswoning met garage. Als je het voorrecht hebt om op deze plek te mogen wonen, kun je werkelijk alles te voet doen. Als je de Piusstraat uitloopt sta je op het Piusplein met haar vele leuke restaurantjes. En zoek je eens wat anders dan loop je via de Heuvelstraat zo naar het gezellige dwaalgebied, de Korte Heuvel of de Spoorzone met nog meer leuke restaurants.....of loop zo de bruisende Piushaven in. Voor je dagelijkse boodschappen kun je naar diverse supermarkten in de directe omgeving. De Albert Heijn en de Jumbo liggen op steenworp afstand of de Aldi op het Transvaalplein. Op loopafstand in de richting van het centrum liggen De Muzentuin, en het Stadspark. In de zon geniet je op het heuvelachtige gras van de omgeving en met een beetje geluk krijg je zelfs een optreden van studenten van de naburige dansopleiding. Ben je een type dat ook graag de rust opzoekt......geen probleem, het Leijpark en Moerenburg liggen ook vlakbij waar je heerlijk kunt wandelen en kunt genieten van de rust. Kortom een Topplek met heerlijk vrij uitzicht over een mooie aangelegd groen parkje!
BEGANE GROND:
Entree: Je komt binnen in een statige hal, waar je meteen kennis maakt met de authentieke elementen van de
woning. De hoge houten paneeldeuren en kozijnen, de originele tegelvloer, de prachtige trap naar de eerste verdieping en het glas in lood in de deuren. WOW...! Je vindt er verder nog de toegang tot de woonkamer en de keuken en de trapkast.
Woonkamer: Vanuit de hal kom je de imposante woonkamer binnen. Deze is opgesplitst in een zitgedeelte en een eetgedeelte. De schouw met gashaard geeft het zitgedeelte een cosy uitstraling. De warme eikenhouten vloer vormt een mooi geheel met de strakke wanden en het plafond met sierlijst. Via de openslaande tuindeuren in de achtergevel heb je een heerlijk contact met de achtertuin.
Keuken: In de aanbouw, aan de achterzijde van de woning, bevindt zich de keuken. De keuken is aan twee zijden voorzien van een extra dik gebrand granieten aanrechtblad en is van alle gemakken voorzien. Je vindt er 4 gaspitten verwerkt in het aanrechtblad een vaatwasser, een Quooker en in de kastenwand de koelkast, een vriezer en een ingebouwde combi stoomoven op ooghoogte. Ook de keuken heeft openslaande tuindeuren. Op een zomerse dag loop je vanuit de keuken dus zo de achtertuin in.
Achter de keuken bevindt zich nog de bijkeuken dat toegang geeft tot het toilet, een berging en ook de achtertuin. Tevens vind je hier een inbouwkast.
EERSTE VERDIEPING:
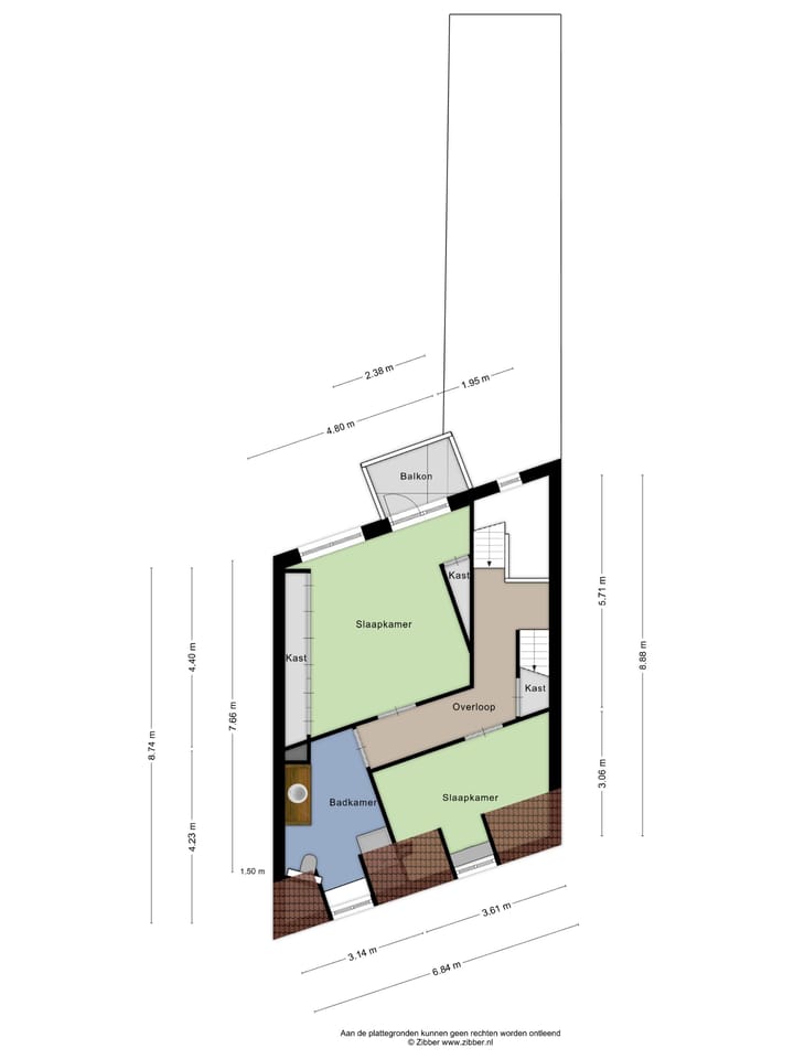
Via de ruime overloop is er toegang tot twee royale slaapkamers en de badkamer. Beide slaapkamers zijn mooi afgewerkt en voorzien van een "houtlook" PVC vloer. De slaapkamer aan de voorzijde van de woning is nu ingericht als kantoor/thuiswerkplek. De "master bedroom" bevindt zich aan de achterzijde en heeft een balkon. De luxe badkamer beschikt over een ruime douche, een badkamermeubel met marmeren wastafelblad, metro wandtegels en een zwevend toilet.
TWEEDE VERDIEPING:
Via de vaste trap bereik je de tweede verdieping van deze woning. Hier vind je nog een royale zolderkamer met twee dakramen. Ook deze verdieping is netjes afgewerkt met dezelfde PVC vloer als van de eerste verdieping.
TUIN:
De tuin ligt op het zuidwesten en heeft dus gedurende de dag veel zonuren te pakken. De tuin is aangelegd met sierbestrating en meerdere groene borders. Via de tuin bereik je tevens de garage. De garage heeft een oppervlakte van 19 m2 en is dus ook ideaal voor het opbergen van al je tuinspullen/gereedschap, de kliko's, het parkeren van je fiets en 1 auto. Via het afgesloten binnenterrein naast huisnummer 341, bereik je met de auto de garage.
Soms heb je dat bij een woning wanneer je naar binnenloopt......LIEFDE OP HET EERSTE GEZICHT...... We waarschuwen je daarom op voorhand want de kans dat dat bij deze bijzondere woning gebeurt is namelijk levensgroot! Maak snel een afspraak voor een bezichtiging! Deze woning wil je niet mislopen.
- Bouwjaar 1917;
- Perceeloppervlakte 199 m2;
- Woonoppervlakte 135 m2
- Inhoud 522 m3;
- NEN 2580 meetrapport*;
- Karakteristieke authentieke elementen;
- Gedeeltelijk voorzien van rolluiken;
- Voorzien van eigen garage;
- Winkels, scholen en de diverse uitvalswegen op korte afstand gelegen.
Wil je dit prachtige authentieke pand in hartje centrum van Tilburg bezichtigen?
Dat begrijpen wij heel goed!
Bel of mail ons dan voor een afspraak:
Tel: 013 - 30 33 195
Mail:
Via wie?
Via Paul Makelaardij natuurlijk!
Via wie anders?
* De NEN 2580 meetnorm is een eenduidige meetnorm, waarbij met bepaalde richtlijnen rekening gehouden wordt. Zo wordt o.a. een zolder zonder vaste trap of met een lichtoppervlakte (bv dakraam) kleiner dan 0,5 m² niet tot de woonoppervlakte gerekend. Hierdoor kan de woonoppervlakte soms kleiner lijken dan de daadwerkelijke vloeroppervlakte en kleiner lijken dan bij vergelijkbare woningen waar de makelaar de meetnorm niet toe heeft gepast. Ondanks het feit dat de meetnorm verplicht is, hanteren niet alle makelaars consequent de norm. Via Paul Makelaardij laat haar woningen inmeten door een erkend bedrijf. Het meetrapport van deze woning is dan ook, indien gewenst, ter inzage.
Ten aanzien van deze verkoopbrochure zijn de gegevens in deze brochure met de grootste zorg samengesteld. Voor de juistheid van de verstrekte informatie zijn wij in grote mate afhankelijk van derden. Aan vermelde tekst, maten en bijgevoegde tekeningen kunnen derhalve geen rechten worden ontleend. Via Paul makelaardij en de verkoper aanvaarden geen aansprakelijkheid ten aanzien van de gegevens in deze brochure.
Kenmerken
Overdracht
- Laatste vraagprijs
- € 550.000 kosten koper
- Vraagprijs per m²
- € 4.074
- Status
- Verkocht
Bouw
- Soort woonhuis
- Eengezinswoning, tussenwoning
- Soort bouw
- Bestaande bouw
- Bouwjaar
- 1917
- Soort dak
- Mansarde dak bedekt met leisteen en pannen
Oppervlakten en inhoud
- Gebruiksoppervlakten
- Wonen
- 135 m²
- Overige inpandige ruimte
- 12 m²
- Gebouwgebonden buitenruimte
- 4 m²
- Externe bergruimte
- 19 m²
- Perceel
- 200 m²
- Inhoud
- 522 m³
Indeling
- Aantal kamers
- 5 kamers (2 slaapkamers)
- Aantal badkamers
- 1 badkamer en 1 apart toilet
- Badkamervoorzieningen
- Douche, toilet, wastafel, en wastafelmeubel
- Aantal woonlagen
- 3 woonlagen
Energie
- Energielabel
- Verwarming
- Cv-ketel
- Warm water
- Cv-ketel
- Cv-ketel
- Atag Enigma (gas gestookt combiketel uit 2010, eigendom)
Kadastrale gegevens
- TILBURG R 5883
- Kadastrale kaart
- Oppervlakte
- 199 m²
- Eigendomssituatie
- Volle eigendom
- TILBURG R 6703
- Kadastrale kaart
- Oppervlakte
- 1 m²
- Eigendomssituatie
- Volle eigendom
Buitenruimte
- Ligging
- In centrum
- Tuin
- Achtertuin
- Achtertuin
- 64 m² (16,00 meter diep en 4,00 meter breed)
- Ligging tuin
- Gelegen op het zuidwesten bereikbaar via achterom
- Balkon/dakterras
- Balkon aanwezig
Garage
- Soort garage
- Vrijstaande stenen garage
- Capaciteit
- 1 auto
- Voorzieningen
- Elektra
Parkeergelegenheid
- Soort parkeergelegenheid
- Openbaar parkeren
Foto's 53
© 2001-2026 funda




















































