Dit huis op Funda: https://www.funda.nl/detail/koop/tilburg/huis-predikherenlaan-54/43807143/

Omschrijving
Kluswoning. Ruime en veelzijdige eengezinswoning inclusief losse garage aan de overzijde, adres Predikherenlaan 321, ruime tuin op het zuiden en volop mogelijkheden. Ben jij op zoek naar een fijne, praktische gezinswoning waar je helemaal je eigen plek van kunt maken? Dan is deze woning aan de Predikherenlaan 54 in Tilburg zeker de moeite waard.
Met een woonoppervlakte van ongeveer 103 m², een perceel van 151m² en een grote achtertuin op het zuiden, heb je hier alle ruimte om je woondromen waar te maken.
Het sloopwerk inclusief afvoeren is al in zijn geheel gedaan, dus dat scheelt een hoop werk en kosten. Je kunt meteen starten met het opbouwen van je ideale woning. Tevens is een gedeelte van de woning inmiddels voorzien van isolatie. De keuken is nog in goede staat en is tijdens de sloop verwijderd en in de schuur gezet.
Normale indeling:
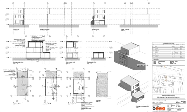
Begane grond: Lengte 9,75 m, breedte 5,77 m. Hal met meterkast, trapkast, toilet, woonkamer en keuken.
Eerste verdieping: 4 slaapkamers, badkamer en technische ruimte met Cv ketel. Balkon aan de achterzijde.
Tuin op het zuiden van 13 x 6 meter. Stenen schuur.
Verder is er een vergunning voor een opbouw. Taxatiewaarde van de woning inclusief opbouw en uitbouw is € 430.000,00.
Uniek wonen in Tilburg, dan ben je hier aan het juiste adres. Predikherenlaan 54 is gelegen in de leuke buurt Het Zand. Tevens is het een redelijk rustige omgeving gekeken naar de bevolkingsdichtheid.
De woning is goed bereikbaar met veel faciliteiten in de buurt. Gelegen op fietsafstand van het centrum van Tilburg, loopafstand van een supermarkt en fietsafstand van een treinstation. Verder is de eerste uitvalsweg in de nabije omgeving op slechts 5 minuten rijden.
Op zoek naar een ruime kluswoning. Pak dan nu je kans en maak een afspraak.
Kenmerken
Overdracht
- Laatste vraagprijs
- € 295.000 kosten koper
- Vraagprijs per m²
- € 2.864
- Status
- Verkocht
Bouw
- Soort woonhuis
- Eengezinswoning, tussenwoning
- Soort bouw
- Bestaande bouw
- Bouwjaar
- 1963
- Soort dak
- Plat dak bedekt met bitumineuze dakbedekking
Oppervlakten en inhoud
- Gebruiksoppervlakten
- Wonen
- 103 m²
- Externe bergruimte
- 14 m²
- Perceel
- 151 m²
- Inhoud
- 348 m³
Indeling
- Aantal kamers
- 5 kamers (4 slaapkamers)
- Aantal badkamers
- 1 badkamer en 1 apart toilet
- Aantal woonlagen
- 2 woonlagen
Energie
- Energielabel
- Niet beschikbaar
- Verwarming
- Cv-ketel
- Warm water
- Cv-ketel
- Cv-ketel
- Gas gestookt combiketel, eigendom
Kadastrale gegevens
- TILBURG AC 1330
- Kadastrale kaart
- Oppervlakte
- 151 m²
- Eigendomssituatie
- Volle eigendom
Buitenruimte
- Ligging
- Aan rustige weg
- Tuin
- Achtertuin
- Balkon/dakterras
- Balkon aanwezig
Bergruimte
- Schuur/berging
- Vrijstaande stenen berging
- Voorzieningen
- Elektra
Parkeergelegenheid
- Soort parkeergelegenheid
- Openbaar parkeren
Foto's 35
© 2001-2025 funda


































