Dit huis op Funda: https://www.funda.nl/detail/koop/ureterp/huis-de-jagerstrjitte-5/43773196/

Omschrijving
Mooie plek nabij het centrum van het dorp! Net om de hoek van de hoofdstraat van het dorp staat deze vrijstaande woning met garage. Bijzonder aan dit kleine straatje is dat het een parallelweg is van de doorgaande Skoalleane. Voor auto’s is deze straat doodlopend.
Vanuit de woning is er een vrij zicht over de genoemde straten. Voor de woning is een groenstrook gelegen. Dit is tevens de scheiding tussen beide straten. Het perceel is 448 m2 groot en de woning is gebouwd omstreeks 1957.
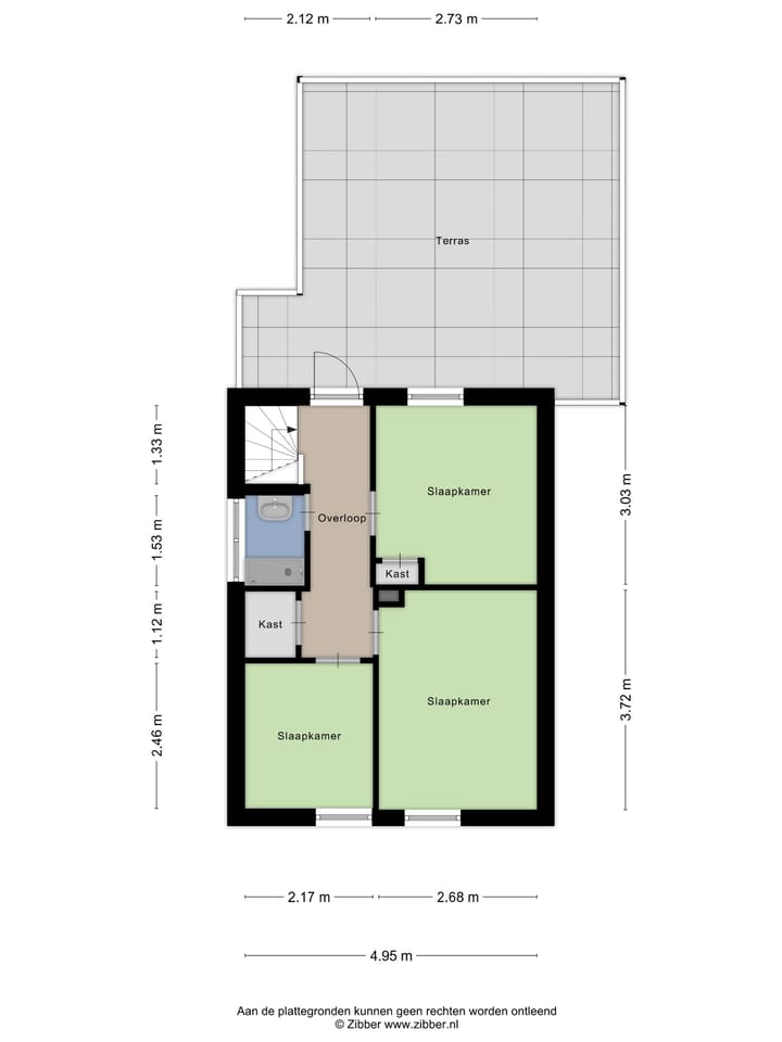
Indeling begane grond:
hal met entree, trapopgang; woonkamer, halfopen keuken, tussenhal met witgoedruimte, toilet en toegang tot kelder, ruime bijkeuken;
Verdieping:
overloop met deur naar plat dak, 3 slaapkamers en badkamer met douche en wastafel. Zolder te bereiken via luik.
De woning beschikt over vrijstaande stenen garage, tuinschuur en tuinkas.
Het dorp Ureterp is de op een na grootste plaats van de gemeente Opsterland, gelegen nabij Drachten en snelweg A7. De centrale ligging, een goed voorzieningenniveau en een fraai buitengebied, meerdere natuurgebieden zijn op korte afstand gelegen, maken het tot een geliefde woonomgeving.
Aktepassering zal plaatsvinden bij notariskantoor Anna de Vries te Drachten. Er is in dit geval geen notariskeuze voor koper.
Ben je/ zijn jullie jonger dan 35 jaar en heb je nog niet eerder gebruik gemaakt van een vrijstelling van overdrachtsbelasting? Dan kun je eenmalig gebruik maken van een vrijstelling van de overdrachtsbelasting. De woning moet dan wel zijn voor eigen gebruik en de koopsom moet onder de €510.000,00 (regeling 2024) blijven. Ook als een van beiden jonger dan 35 jaar is kun je (gedeeltelijk) gebruik maken van deze regeling.
Kenmerken
Overdracht
- Laatste vraagprijs
- € 300.000 kosten koper
- Vraagprijs per m²
- € 3.125
- Status
- Verkocht
Bouw
- Soort woonhuis
- Eengezinswoning, vrijstaande woning
- Soort bouw
- Bestaande bouw
- Bouwjaar
- 1957
- Soort dak
- Zadeldak bedekt met pannen
Oppervlakten en inhoud
- Gebruiksoppervlakten
- Wonen
- 96 m²
- Overige inpandige ruimte
- 4 m²
- Gebouwgebonden buitenruimte
- 31 m²
- Externe bergruimte
- 28 m²
- Perceel
- 448 m²
- Inhoud
- 371 m³
Indeling
- Aantal kamers
- 4 kamers (3 slaapkamers)
- Aantal badkamers
- 1 badkamer en 2 aparte toiletten
- Badkamervoorzieningen
- Douche, ligbad, en wastafelmeubel
- Aantal woonlagen
- 2 woonlagen, een zolder, en een kelder
Energie
- Energielabel
- F
- Isolatie
- Gedeeltelijk dubbel glas
- Verwarming
- Cv-ketel
- Warm water
- Cv-ketel
- Cv-ketel
- Intergas (gas gestookt combiketel uit 2022, eigendom)
Kadastrale gegevens
- URETERP A 3314
- Kadastrale kaart
- Oppervlakte
- 448 m²
- Eigendomssituatie
- Volle eigendom
Buitenruimte
- Ligging
- Beschutte ligging en vrij uitzicht
- Tuin
- Tuin rondom
Bergruimte
- Schuur/berging
- Vrijstaande houten berging
Garage
- Soort garage
- Vrijstaande stenen garage
- Capaciteit
- 1 auto
- Voorzieningen
- Elektra
Foto's 44
© 2001-2025 funda











































