
Omschrijving
Wonen op 5 minuten fietsen van het centrum en het Centraal Station ? Dat kan.
Wij hebben deze ruime 2-laags bovenwoning in de verkoop gekregen van maar liefst 109 m2 met vele mogelijkheden.
Deze lichte woning is gelegen op de 2e en 3e etage van een kleinschalig complex uit 1930.
De ligging:
De levendige Amsterdamsestraatweg wordt momenteel geheel nieuw ingericht met smallere rijstroken en brede fietspaden en meer groen. In de directe omgeving veel winkels voor de dagelijkse boodschappen (Albert Heijn en Ecoplaza) en horeca (zoals Gys en Bagels & Beans). Ook voor (kleine) kinderen zijn speel- en groenvoorzieningen in de directe omgeving zoals Utrechts best kept secret het Otter-Beverpark of het Julianapark dat ook op zo’n tien minuten loopafstand is.
Op de eerste etage is de entree.
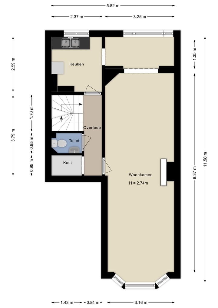
Op de tweede etage bevindt zich de ruime woonkamer met een erker en aansluitend de eenvoudige keuken. Op de overloop verder nog een toilet en een bergkast.
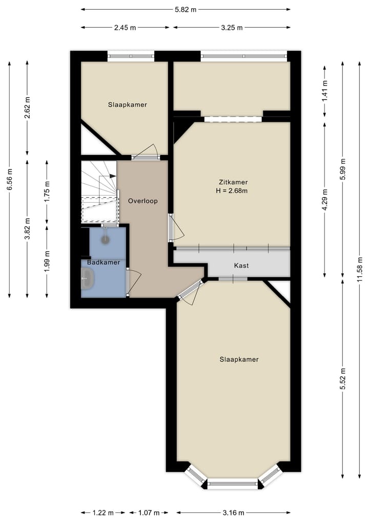
De derde etage heeft een zeer ruime voorkamer en achterkamer en nog een kleine zijkamer. Deze kleine kamer kan eventueel een badkamer worden. Deze bevindt zich nu nog op de overloop.
De woning is heel lang verhuurd geweest en moet worden aangepast aan de huidige eisen (zoals keuken, sanitair, centrale verwarming en (deels) houtwerk). Van oorsprong had de woning twee balkons die een aantal jaren geleden bij de woonkamer en bij een slaapkamer zijn getrokken. Uiteraard kan er voor gekozen worden om deze weer te heropenen.
Kortom een prima woning met veel potentie op een gewilde locatie.
Bijzonderheden:
*Notaris ter keuze verkoper
*De koopovereenkomst zal worden aangevuld met enkele extra clausules
*Grotendeels dubbel glas
*Verwarmd dmv. gaskachels
*Energielabel G
*Actieve v.v.e. maandelijkse bijdrage is € 100,-- per maand
Kenmerken
Overdracht
- Laatste vraagprijs
- € 365.000 kosten koper
- Vraagprijs per m²
- € 3.349
- Status
- Verkocht
- Bijdrage VvE
- € 100,00 per maand
Bouw
- Soort appartement
- Bovenwoning
- Soort bouw
- Bestaande bouw
- Bouwjaar
- 1930
- Soort dak
- Zadeldak bedekt met pannen
Oppervlakten en inhoud
- Gebruiksoppervlakten
- Wonen
- 109 m²
- Inhoud
- 381 m³
Indeling
- Aantal kamers
- 4 kamers (3 slaapkamers)
- Aantal badkamers
- 1 badkamer en 1 apart toilet
- Badkamervoorzieningen
- Douche en wastafel
- Aantal woonlagen
- 2 woonlagen
- Gelegen op
- 3e woonlaag
Energie
- Energielabel
- G
- Isolatie
- Gedeeltelijk dubbel glas
- Verwarming
- Gaskachels
- Warm water
- Elektrische boiler
Kadastrale gegevens
- LAUWERECHT B 5911
- Kadastrale kaart
- Eigendomssituatie
- Volle eigendom
Buitenruimte
- Ligging
- In woonwijk en vrij uitzicht
Parkeergelegenheid
- Soort parkeergelegenheid
- Betaald parkeren, openbaar parkeren en parkeervergunningen
VvE checklist
- Inschrijving KvK
- Ja
- Jaarlijkse vergadering
- Ja
- Periodieke bijdrage
- Ja (€ 100,00 per maand)
- Reservefonds aanwezig
- Ja
- Onderhoudsplan
- Nee
- Opstalverzekering
- Ja
Foto's 27
© 2001-2025 funda


























