
Omschrijving
Ontdek dit unieke appartement gelegen op de bovenste verdieping aan de Houtrakgracht. Gelegen in een rustige en geliefde buurt biedt dit appartement dat vernieuwd is in 2020 alles wat je nodig hebt voor comfortabel wonen. Geniet van een prachtig uitzicht, een lichte woonruimte en een rustige, groene omgeving met volop voorzieningen binnen handbereik.
Ligging:
Dit appartement ligt in een rustige wijk met veel groen, water en natuur, perfect voor wie op zoek is naar rust en ruimte, maar toch de stad nabij wil hebben. Winkelcentrum Parkwijk, het Maximapark en diverse sport- en recreatiefaciliteiten bevinden zich op korte afstand. Het stadscentrum en het station, maar ook Leidsche Rijn Centrum zijn eenvoudig bereikbaar, net als de uitvalswegen. Met zowel de auto als het openbaar vervoer ben je optimaal verbonden.
Indeling:
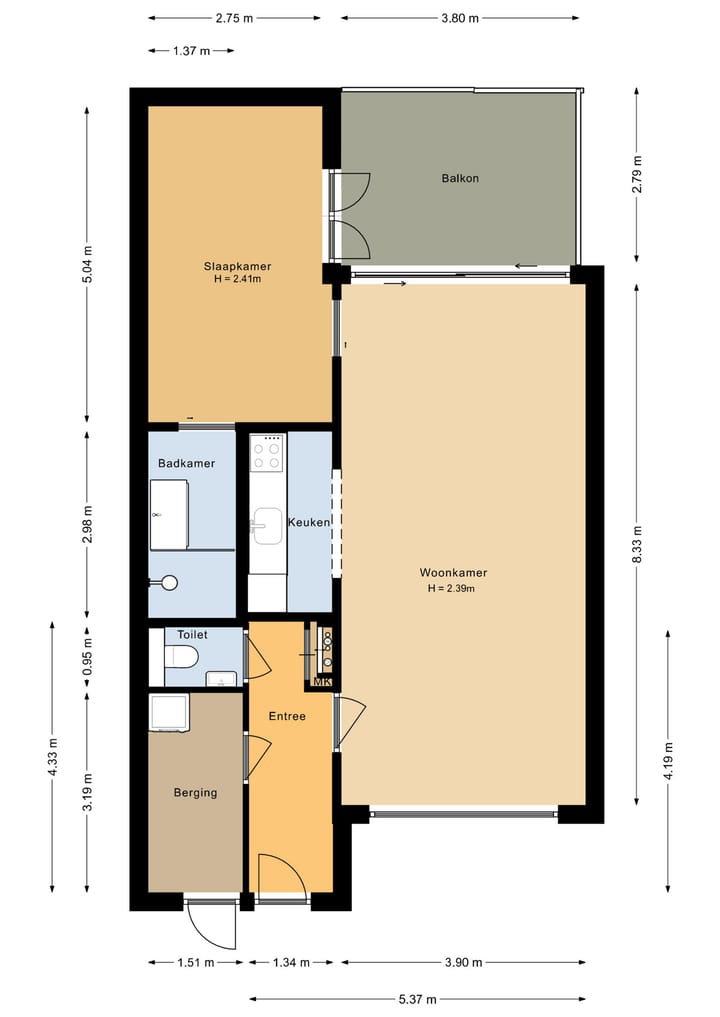
Bij binnenkomst komt u in de hal met toegang tot de berging, meterkast en een modern toilet. Vanuit de hal bereik je via een brede stalen deur de zonnige woonkamer met grote raampartijen die zorgen voor veel natuurlijk licht. De woonkamer biedt toegang tot de moderne half open keuken, die is uitgerust met diverse benodigde inbouwapparatuur. Het ruime dakterras, gelegen op het zuiden, is direct bereikbaar vanuit de woonkamer. Aangrenzend aan de woonkamer vind je een royale slaapkamer met directe toegang tot de moderne badkamer. De badkamer is voorzien van een inloopdouche, wastafelmeubel en handdoekenradiator, en wordt afgesloten met een schuifdeur. Daarnaast beschikt het appartement over een inpandige berging met aansluitingen voor zowel een wasmachine als een droger. De gehele woning, met uitzondering van de badkamer, het toilet en de berging, is voorzien van een prachtige houten vloer.
Bijzonderheden:
- modern afgewerkt appartement vernieuwd in 2020
- gestucte muren en plafonds met inbouwspots
- buiten is een stalling voor de fiets
- parkeren op eigen terrein
- het winkelcentrum ligt om de hoek
- actieve Vereniging van Eigenaren
- servicekosten bedragen € 115,-
- erfpacht volledig afgekocht
Kenmerken
Overdracht
- Laatste vraagprijs
- € 389.000 kosten koper
- Vraagprijs per m²
- € 5.557
- Status
- Verkocht
- Bijdrage VvE
- € 115,00 per maand
Bouw
- Soort appartement
- Galerijflat (appartement)
- Soort bouw
- Bestaande bouw
- Bouwjaar
- 1999
- Soort dak
- Plat dak
Oppervlakten en inhoud
- Gebruiksoppervlakten
- Wonen
- 70 m²
- Gebouwgebonden buitenruimte
- 11 m²
- Inhoud
- 213 m³
Indeling
- Aantal kamers
- 2 kamers (1 slaapkamer)
- Aantal badkamers
- 1 badkamer en 1 apart toilet
- Badkamervoorzieningen
- Douche en wastafel
- Aantal woonlagen
- 1 woonlaag
- Voorzieningen
- Lift, mechanische ventilatie, en schuifpui
Energie
- Energielabel
- A
- Isolatie
- Volledig geïsoleerd
- Verwarming
- Stadsverwarming
- Warm water
- Centrale voorziening
Kadastrale gegevens
- UTRECHT V 637
- Kadastrale kaart
- Eigendomssituatie
- Gemeentelijk eigendom belast met erfpacht
- Lasten
- Eeuwigdurend afgekocht
Buitenruimte
- Balkon/dakterras
- Dakterras aanwezig
Bergruimte
- Schuur/berging
- Inpandig
- Voorzieningen
- Elektra
Parkeergelegenheid
- Soort parkeergelegenheid
- Op eigen terrein en openbaar parkeren
VvE checklist
- Inschrijving KvK
- Ja
- Jaarlijkse vergadering
- Ja
- Periodieke bijdrage
- Ja (€ 115,00 per maand)
- Reservefonds aanwezig
- Ja
- Onderhoudsplan
- Ja
- Opstalverzekering
- Ja
Foto's 38
© 2001-2025 funda





































