
Omschrijving
Charmant en recent gerenoveerd bovenhuis aan de Muntkade met dakterras en uitzicht over het water!
Ontdek deze unieke en karakteristieke bovenwoning uit 1919, gelegen op een toplocatie in het gewilde ‘Muntkwartier’ van Utrecht. Dit prachtige appartement maakt deel uit van een markant hoekgebouw en biedt met zijn authentieke uitstraling en moderne afwerking een bijzondere woonsfeer. Bij de renovatie begin 2023 is de woning totaal aangepakt, daarbij zijn gevels en dak geïsoleerd zodoende het nu een duurzame comfortabele woning is.
Met een royaal woonoppervlak van circa 87 m², drie ruime slaapkamers, en een lichte woonkamer met weids uitzicht over het water, is dit een woning die direct in het oog springt. Dankzij de recent verleende vergunning kunt u hier binnenkort genieten van een privé-dakterras met adembenemend 360-graden uitzicht over Utrecht!
Locatie en omgeving
De woning bevindt zich op een perfecte locatie: op loopafstand van de Utrechtse binnenstad, het Centraal Station en diverse voorzieningen. Op slechts vijf minuten fietsen ligt het moderne winkelcentrum 'Groeneweg' voor al uw dagelijkse boodschappen. Voor een gezellige dag in het park of een verfrissende duik in de zomer, is park Oog in Al nabij, evenals de levendige Kanaalstraat met een rijk aanbod aan (speciaal)zaken. De buurt is levendig met gezellige cafés en restaurants, en dankzij de charmante Leidseweg bent u binnen enkele minuten in het centrum of op het station.
Indeling
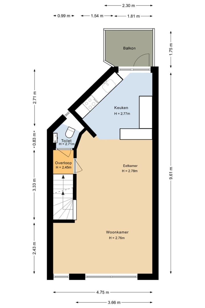
Begane grond
Entree met garderobe en nieuwe meterkast
Trapopgang naar de eerste verdieping
Eerste verdieping
Hal met toegang tot het toilet en fontein;
Riante en lichte woonkamer op het zuidwesten met schitterend uitzicht op het water;
Maatwerk-keuken met hoogwaardige afwerking en toegang tot een knus balkon op het oosten;
Tweede verdieping
Ruime overloop met voorzieningen voor een trap naar het toekomstige dakterras;
Moderne badkamer met inloopdouche, tweede toilet, en stijlvolle wastafel;
Hoofdslaapkamer aan de achterzijde, voorzien van wastafel;
Twee ruime slaapkamers aan de voorzijde (beide ca. 3,8 x 2,3), elk met een eigen wastafel.
Bijzonderheden
- Parket vloer door de gehele woning
- Gevels en dak geïsoleerd, dubbel glas aanwezig
- Professioneel onderhouden kozijnen, ramen en deuren; opnieuw geschilderd in 2023 - Goede staat van de platte daken (recent inspectierapport beschikbaar)
- Actieve VvE, ingeschreven bij de Kamer van Koophandel, €110,00 bijdrage Servicekosten per maand
- Koopovereenkomst bevat een ouderdoms-, niet zelf-bewonings- en asbestclausule
Unieke kans op een dakterras
De voorbereidingen voor een dakterras zijn getroffen tijdens de renovatie begin 2023, waardoor u hier straks kunt genieten van zon en een fenomenaal uitzicht over heel Utrecht.
Bent u op zoek naar een sfeervolle en centraal gelegen woning in een karaktervolle wijk? Neem dan contact met ons op voor een bezichtiging en ervaar zelf de charme van dit unieke appartement aan de Muntkade!
Kenmerken
Overdracht
- Laatste vraagprijs
- € 550.000 kosten koper
- Vraagprijs per m²
- € 6.471
- Status
- Verkocht
Bouw
- Soort appartement
- Bovenwoning (appartement)
- Soort bouw
- Bestaande bouw
- Bouwjaar
- 1919
- Soort dak
- Plat dak bedekt met bitumineuze dakbedekking
Oppervlakten en inhoud
- Gebruiksoppervlakten
- Wonen
- 85 m²
- Gebouwgebonden buitenruimte
- 4 m²
- Inhoud
- 326 m³
Indeling
- Aantal kamers
- 4 kamers (3 slaapkamers)
- Aantal badkamers
- 1 badkamer en 1 apart toilet
- Badkamervoorzieningen
- Douche, toilet, en wastafel
- Aantal woonlagen
- 2 woonlagen
- Voorzieningen
- Natuurlijke ventilatie en TV kabel
- Gelegen op
- 1e woonlaag
Energie
- Energielabel
- Isolatie
- Dakisolatie en dubbel glas
- Verwarming
- Cv-ketel
- Warm water
- Cv-ketel
- Cv-ketel
- Intergas (2012, eigendom)
Kadastrale gegevens
- CATHARIJNE D 11457
- Kadastrale kaart
- Eigendomssituatie
- Volle eigendom
Buitenruimte
- Ligging
- Aan rustige weg en in woonwijk
- Balkon/dakterras
- Dakterras aanwezig
Parkeergelegenheid
- Soort parkeergelegenheid
- Betaald parkeren
VvE checklist
- Inschrijving KvK
- Nee
- Jaarlijkse vergadering
- Nee
- Periodieke bijdrage
- Nee
- Reservefonds aanwezig
- Nee
- Onderhoudsplan
- Nee
- Opstalverzekering
- Nee
Foto's 36
© 2001-2026 funda



































