
Omschrijving
Alle appartementen staan onder optie.
Net zoals de voorgaande fases zijn we zeer tevreden over de uitkomst van de inschrijving voor fase 3. Met een ruime overinschrijving, staan alle woningen reeds onder optie. De reacties van de optanten waren dan ook zeer positief. Want hoe leuk is het als je hoort dat je één van de gelukkige bent die een woning toegewezen heeft gekregen? Dat maakt wel even indruk! Aankomende weken zullen de gesprekken met de optanten plaatsvinden.
Park voor de deur, mooi uitzicht op de stad; wonen in Smakkelaarspark is jaloersmakend leuk en betekent elke dag thuiskomen op een plek die verrast door de karakteristieke architectuur, door het vele groen en door de weldadige rust. Smakkelaarspark is een onverwacht gezonde woon- en leefomgeving in het hart van een stad die bruist van de energie.
Alle appartementen zijn comfortabel, met uitzicht op het park en de binnenstad, met veel daglicht en ontworpen om duurzaam en energieneutraal te wonen. De meeste woningen hebben een eigen buitenruimte en alle bewoners hebben sowieso toegang tot het royale, gezamenlijke dakterras. En: als je het gebouw verlaat, sta je meteen in het park. Het Havengebouw is een toekomstbestendig en gezond gebouw, welke fraai uitkijkt over het park en de stad, waarin alle woningen een A+++ energielabel hebben.
Je houdt van de dynamiek van het stadsleven. Je houdt van groen om je heen. Je zoekt rust en ruimte in een leuk, betaalbaar appartement. Het Havengebouw is voor jou de plek waar dat allemaal bij elkaar komt. In het ontwerp van het Havengebouw komen creativiteit en wetenschap samen om een verantwoorde leefomgeving te creëren. De combinatie van innovatieve ideeën, materialen en technieken laat je ervaren dat groen, duurzaam en doordacht wonen gewoon heel erg leuk kan zijn.
De prognose van oplevering staat gepland voor Q4-2026.
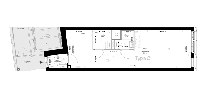
Type C
Een sfeervolle, knusse studio. Aan de achterkant vind je de open keuken en heb je via de openslaande deuren toegang tot het Franse balkon met een fantastisch uitzicht op het park. De badkamer is voorzien van een douche, wastafel en toilet. Ook is er een ruime inpandige berging.
Locatie
Smakkelaarspark; een plek om te wonen, te werken en te ontspannen die eigenlijk met niets is te vergelijken. Jong en oud, starters en doorstromers; iedereen die op een plezierige manier duurzaam en energieneutraal wil wonen, voelt zich hier thuis. Net als die ondernemer die in een groene omgeving werkruimte zoekt of een koffiebar wil openen.
De architectuur van Smakkelaarspark is gebaseerd op een uitgebreide studie naar de invloed van onder andere zonlicht, wind en geluid op het leefklimaat. Het resultaat daarvan is ontwerp waarmee een heel gezonde leefomgeving is gecreëerd. Onder andere door alle woningen een tweezijdige oriëntatie te geven. Dus ongeacht waar je woont, je geniet altijd van dat vriendelijke, uitnodigende stukje groen in hartje Utrecht.
Naast het Havengebouw vind je op Smakkelaarspark nog drie andere gebouwen. Het Kadegebouw biedt plaats aan kantoren, in het Parkgebouw komen koopwoningen en het Parkpaviljoen wordt de plek voor ontspanning. En: alle gebouwen hebben groene daken.
Wonen op Smakkelaarspark betekent leven in een gezonde, groene omgeving; een vernieuwend ecosysteem waarin de natuur, de mens en de gebouwen in dienst staan van elkaar.
Biodiversiteit speelt daarin een grote rol. In het glooiende park, geïnspireerd op het rivierenlandschap van de Utrechtse Heuvelrug, krijgen inheemse plant- en diersoorten volop de ruimte. Struiken en heideplanten, verschillende soorten bomen en allerlei kruidensoorten maken het park aantrekkelijk voor insecten en vogels.
De voordelen van die groene omgeving voor de bewoners zijn helder; leven tussen groen maakt de mens aantoonbaar gelukkiger en gezonder. Bovendien nodigt het park uit om te bewegen. De visie op duurzame mobiliteit draagt daar ook aan bij. Vanuit Smakkelaarspark zijn fietsen, wandelen en het OV voor de hand liggende opties om te verplaatsen. En mocht je een auto nodig hebben, dan heb je binnen een paar klikken een deelauto tot je beschikking.
Kenmerken
Overdracht
- Servicekosten
- € 118 per maand
- Laatste vraagprijs
- € 355.000 vrij op naam
- Vraagprijs per m²
- € 7.396
- Status
- Verkocht
Bouw
- Bouwjaar
- Na 2020
- Soort appartement
- Galerijflat (appartement)
- Soort bouw
- Nieuwbouw
- Soort dak
- Plat dak bedekt met bitumineuze dakbedekking
Oppervlakten en inhoud
- Gebruiksoppervlakten
- Wonen
- 48 m²
- Inhoud
- 127 m³
Indeling
- Aantal kamers
- 1 kamer
- Aantal badkamers
- 1 badkamer
- Badkamervoorzieningen
- Douche, toilet, en wastafel
- Aantal woonlagen
- 1 woonlaag
- Voorzieningen
- Lift
- Gelegen op
- 6e woonlaag
Energie
- Energielabel
- A+++
- Isolatie
- Volledig geïsoleerd
- Verwarming
- Warmtepomp
- Warm water
- Centrale voorziening
Buitenruimte
- Ligging
- Aan park, in centrum en vrij uitzicht
- Balkon/dakterras
- Balkon aanwezig
Bergruimte
- Schuur/berging
- Inpandig
Foto's 9
© 2001-2025 funda








