Dit huis op Funda: https://www.funda.nl/detail/koop/utrecht/huis-balderikstraat-23/43268089/

Balderikstraat 233553 BA UtrechtElinkwijk en omgeving
€ 419.000 k.k.
Omschrijving
Een goede kans voor wie een woning in Zuilen volledig naar eigen inzicht wil verbouwen.
Deze karakteristieke jaren ’30 tussenwoning aan de Balderikstraat 23 heeft enkele bouwkundige aandachtspunten en moet gemoderniseerd worden. Dat geeft wel de mogelijkheid om de woning volledig naar eigen wensen op te knappen.
De woning kan daarnaast interessant zijn voor wie zelf op de begane grond wil wonen en de eerste en/of tweede verdieping wil verhuren, of andersom. Het is een sfeervol jaren ’30-huis met een karakteristieke uitstraling en voldoende ruimte.
Indeling
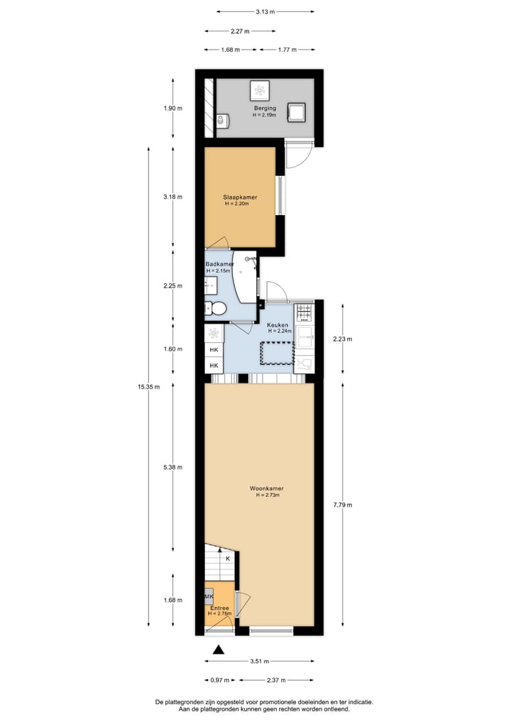
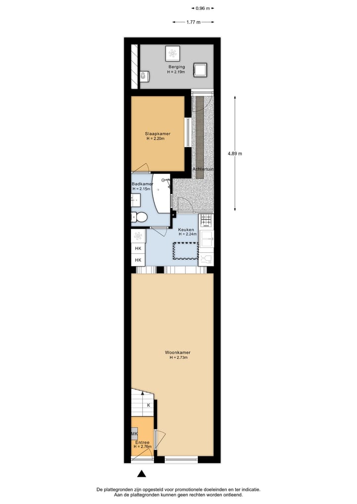
De begane grond bestaat uit een woonkamer, een uitgebouwde keuken, een slaapkamer, een badkamer en een stenen berging. Aan de achterzijde is een uitbouw geplaatst. Als je ervoor kiest deze te verwijderen, ontstaat er ruimte voor het realiseren van een fijne achtertuin.
Op de eerste verdieping vind je een slaapkamer, een keuken en een badkamer. De tweede verdieping heeft nog twee slaapkamers, één aan de achterzijde en één aan de voorzijde in de topgevel.
Bouwkundig
Volgens het recent uitgevoerde bouwkundig rapport verkeert de woning op enkele onderdelen in een staat die onderhoud en herstel vereist. Zo zijn bij enkele vloerbalken aan de voorzijde van het huis sporen van schimmel en bruinrot aangetroffen, waardoor vervanging van deze balken noodzakelijk is. Het rapport is ter inzage beschikbaar, zodat geïnteresseerden een volledig beeld kunnen krijgen van de huidige staat en de mogelijkheden.
Locatie
De Balderikstraat ligt in een gezellige, groene straat in de populaire wijk Zuilen. Op loopafstand vind je het Julianapark, ijssalon Roma en diverse horecagelegenheden zoals Warmoes, The Colour Kitchen en De Parel van Zuilen. De Amsterdamsestraatweg met winkels, openbaar vervoer en Station Zuilen ligt om de hoek. Binnen 15 minuten fiets je naar Utrecht Centraal of de binnenstad.
Kenmerken
Bouwjaar: 1926;
Energielabel D;
De platte daken zijn in 2022 vernieuwd van nieuwe bitumen;
Er zijn 9 zonnepanelen geplaatst in 2023;
CV-installatie: Intergas (2023), geplaatst in de berging;
De woning is grotendeels voorzien van slimme Tado thermostaat systeem;
Geen erfpacht, eigen grond;
Woonoppervlakte ca. 99 m²;
Perceeloppervlakte ca. 67 m²;
Verkoper heeft de woning recent niet zelf bewoond;
De koopovereenkomst wordt gesloten op basis van een NVM-koopovereenkomst, waarbij aanvullende clausules worden opgenomen. Deze zijn beschikbaar op aanvraag;
Oplevering in overleg; kan nog dit jaar.
Kortom: zoek je een woning met karakter, ruimte en volop mogelijkheden om jouw eigen droomhuis te realiseren? Dan laten we je Balderikstraat 23 graag zien.
Aankoopmakelaar inschakelen: Een NVM-aankoopmakelaar komt op voor jouw belang en bespaart je tijd, geld en zorgen. Adressen van collega NVM-aankoopmakelaars in Utrecht vind je op nvmaankoopmakelaarinutrecht.nl.
Toelichtingsclausule NEN2580: De meetinstructie is gebaseerd op de NEN2580. Deze instructie biedt een eenduidige manier van meten voor het geven van een indicatie van de gebruiksoppervlakte. Verschillen in meetuitkomsten kunnen echter niet volledig worden uitgesloten door interpretatieverschillen, afrondingen of beperkingen bij het uitvoeren van de meting.
Wij hebben grote zorg besteed aan het zo volledig en nauwkeurig mogelijk weergeven van de bovenstaande informatie. Toch kunnen fouten of onjuistheden niet geheel worden uitgesloten. Daarom adviseren wij om niet uitsluitend op deze informatie te vertrouwen, maar alle details zorgvuldig te controleren voordat je een definitieve aankoopbeslissing neemt.
Kenmerken
Overdracht
- Aangeboden sinds
- Aanvaarding
- In overleg
- Vraagprijs
- € 419.000 kosten koper
- Vraagprijs per m²
- € 4.232
- Status
- Beschikbaar
Bouw
- Soort woonhuis
- Eengezinswoning, tussenwoning
- Soort bouw
- Bestaande bouw
- Bouwjaar
- 1926
- Specifiek
- Dubbele bewoning mogelijk, gedeeltelijk gestoffeerd en kluswoning
- Soort dak
- Samengesteld dak bedekt met bitumineuze dakbedekking en pannen
- Keurmerken
- Bouwkundige Keuring en Energie Prestatie Advies
Oppervlakten en inhoud
- Gebruiksoppervlakten
- Wonen
- 99 m²
- Overige inpandige ruimte
- 6 m²
- Perceel
- 67 m²
- Inhoud
- 369 m³
Indeling
- Aantal kamers
- 5 kamers (4 slaapkamers)
- Aantal badkamers
- 2 badkamers
- Badkamervoorzieningen
- Ligbad, 2 toiletten, 2 wastafels, en douche
- Aantal woonlagen
- 3 woonlagen
- Voorzieningen
- Natuurlijke ventilatie, TV kabel, en zonnepanelen
Energie
- Energielabel
- D
- Isolatie
- Dubbel glas
- Verwarming
- Cv-ketel
- Warm water
- Cv-ketel
- Cv-ketel
- Intergas (gas gestookt combiketel uit 2023, eigendom)
Kadastrale gegevens
- ZUILEN C 3911
- Kadastrale kaart
- Oppervlakte
- 67 m²
- Eigendomssituatie
- Volle eigendom
Buitenruimte
- Ligging
- Aan rustige weg en in woonwijk
- Tuin
- Achtertuin
Parkeergelegenheid
- Soort parkeergelegenheid
- Openbaar parkeren
Foto's 45
© 2001-2025 funda












































