Omschrijving

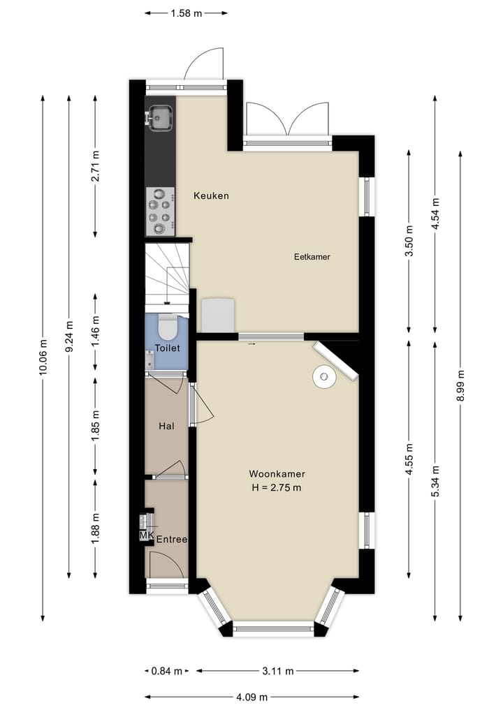
Sfeervolle en verrassende jaren dertig hoekwoning met tuin en aparte werkruimte. Cornelis Dirkszstraat 13 is een charmante hoekwoning gelegen in de levendige wijk Zuilen. Gebouwd in 1936, straalt deze woning de karakteristieke sfeer van die tijd uit. Met een woonoppervlak van 65 m² en daarnaast een flinke zoldervliering biedt het voldoende ruimte voor een comfortabel wonen. De woning beschikt over een ommuurde achtertuin, perfect voor ontspanning of een gezellige barbecue. Achter de tuin een voormalige garage welke in gebruik is als studio. De woning heeft energielabel D, wat ruimte biedt voor verbetering en personalisatie. Met nabijgelegen voorzieningen zoals scholen, winkels en openbaar vervoer is dit een ideale plek voor zowel gezinnen als professionals die op zoek zijn naar een mix van stadsleven en rust. Winkelcentrum “Rokade” en het Julianapark zijn op loopafstand te bereiken. Goed bereikbaar met openbaar vervoer, het NS-station Zuilen en enkele bushaltes bevinden zich op loop- of fietsafstand en nabij diverse uitvalswegen. Er is in de directe omgeving genoeg (gratis) parkeergelegenheid. Prima mogelijkheden voor sport/ontspanning; 5 minuten fietsen in tegengestelde richting en je bent in het buitengebied, met de ‘Vecht’, bossen, hardloopgebieden en in de zomer lekker zwemmen in het natuurwater van de "Maarsseveense Plassen". De indeling is als volgt; Begane grond: Entree/hal, toilet, kamer en suite met erker. Aan de voorzijde van de woning bevindt zich het zitgedeelte met de sfeervolle erker en de gaskachel. Aan de achterzijde de eetkamer met openslaande deuren naar de tuin en de open keuken. De keuken is voorzien van gasfornuis afzuigkap en een vaatwasser. De intieme achtertuin ligt op het oosten en beschikt over een achterom en vrijstaande stenen garage welke is omgebouwd tot studio en volledig is geïsoleerd en voorzien van vloerverwarming. Ideaal voor kantoor of werken aan huis. Hier bevinden zich ook de wasmachine en droger opstelling. Een deel van de garage is behouden als berging voor opslag en fietsen. Eerste verdieping: Overloop, twee prettige slaapkamers, badkamer voorzien van douche, ligbad, wastafel en tweede toilet. Tweede verdieping: Royale bergzolder op stahoogte voor opslag en genoeg ruimte voor een logeerbed. Bijzonderheden: - Woonoppervlakte 65 m², perceel eigen grond 80 m², inhoud 273 m³. - Aparte werkruimte welke volledig is geïsoleerd en voorzien is van vloerverwarming - Warm water en verwarming middels CV ( twee ketels, een in de woning en een in de studio.) - De woning is nagenoeg geheel voorzien van dubbel glas. - internet: glasvezel is aanwezig, inclusief netwerkbekabeling door het gehele huis en kantoor - Oplevering In overleg. Interesse in deze woning? Neem uw eigen NVM aankoopmakelaar mee.

Kenmerken

Overdracht

Laatste vraagprijs
€ 450.000 kosten koper
Vraagprijs per m²
€ 6.923
Status
Verkocht

Bouw

Soort woonhuis
Eengezinswoning, hoekwoning
Soort bouw
Bestaande bouw
Bouwjaar
1936
Soort dak
Samengesteld dak bedekt met pannen

Oppervlakten en inhoud

Gebruiksoppervlakten
Wonen
65 m²
Overige inpandige ruimte
8 m²
Externe bergruimte
17 m²
Perceel
80 m²
Inhoud
273 m³

Indeling

Aantal kamers
4 kamers (2 slaapkamers)
Aantal badkamers
1 badkamer
Badkamervoorzieningen
Douche, ligbad, toilet, en wastafel
Aantal woonlagen
2 woonlagen en een zolder

Energie

Energielabel
Isolatie
Grotendeels dubbelglas
Verwarming
Cv-ketel
Warm water
Cv-ketel
Cv-ketel
Gas gestookt combiketel, eigendom

Kadastrale gegevens

ZUILEN C 4876
Kadastrale kaart
Oppervlakte
80 m²
Eigendomssituatie
Volle eigendom

Buitenruimte

Ligging
In woonwijk
Tuin
Achtertuin
Achtertuin
18 m² (4,40 meter diep en 4,00 meter breed)
Ligging tuin
Gelegen op het oosten bereikbaar via achterom

Garage

Soort garage
Vrijstaande stenen garage
Capaciteit
1 auto
Voorzieningen
Elektra, verwarming en stromend water
Isolatie
Dakisolatie, muurisolatie en vloerisolatie

Parkeergelegenheid

Soort parkeergelegenheid
Openbaar parkeren

Foto's 31

  • Foto 1 van Cornelis Dirkszstraat 13
  • Foto 2 van Cornelis Dirkszstraat 13
  • Foto 3 van Cornelis Dirkszstraat 13
  • Foto 4 van Cornelis Dirkszstraat 13
  • Foto 5 van Cornelis Dirkszstraat 13
  • Foto 6 van Cornelis Dirkszstraat 13
  • Foto 7 van Cornelis Dirkszstraat 13
  • Foto 8 van Cornelis Dirkszstraat 13
  • Foto 9 van Cornelis Dirkszstraat 13
  • Foto 10 van Cornelis Dirkszstraat 13
  • Foto 11 van Cornelis Dirkszstraat 13
  • Foto 12 van Cornelis Dirkszstraat 13
  • Foto 13 van Cornelis Dirkszstraat 13
  • Foto 14 van Cornelis Dirkszstraat 13
  • Foto 15 van Cornelis Dirkszstraat 13
  • Foto 16 van Cornelis Dirkszstraat 13
  • Foto 17 van Cornelis Dirkszstraat 13
  • Foto 18 van Cornelis Dirkszstraat 13
  • Foto 19 van Cornelis Dirkszstraat 13
  • Foto 20 van Cornelis Dirkszstraat 13
  • Foto 21 van Cornelis Dirkszstraat 13
  • Foto 22 van Cornelis Dirkszstraat 13
  • Foto 23 van Cornelis Dirkszstraat 13
  • Foto 24 van Cornelis Dirkszstraat 13
  • Foto 25 van Cornelis Dirkszstraat 13
  • Foto 26 van Cornelis Dirkszstraat 13
  • Foto 27 van Cornelis Dirkszstraat 13
  • Foto 28 van Cornelis Dirkszstraat 13
  • Foto 29 van Cornelis Dirkszstraat 13
  • Foto 30 van Cornelis Dirkszstraat 13
  • Foto 31 van Cornelis Dirkszstraat 13

© 2001-2025 funda