Dit huis op Funda: https://www.funda.nl/detail/koop/utrecht/huis-seringstraat-118/43893589/

Omschrijving
Zoek je een compleet gerenoveerd gaaf afgewerkt huis met een zonnige stadstuin? Kom dan kijken bij Seringstraat 118 in Utrecht!
In de populaire Bloemenbuurt staat dit fantastische, stijlvolle en zeer goed onderhouden huis! Alles is aangepakt: een dakopbouw, een uitgebreide moderne keuken, een luxe badkamer, strak gestuukte wanden en een sfeervolle woonkamer met een prachtige visgraat houtenvloer, 10 zonnepanelen. Bovendien beschikt het huis over vier slaapkamers en 3 toiletten.
In de Seringstraat woon je rustig, maar heb je alle voorzieningen binnen handbereik. De winkels van winkelcentrum Plantage, NS-station Zuilen en het gezellige Julianapark zijn vlakbij. Met de fiets ben je binnen 7 minuten in hartje Utrecht en op Utrecht CS. In de directe omgeving zijn diverse restaurants, koffietentjes en terrassen te vinden. Door de ligging aan deze kant van de stad ben je ook snel op de uitvalswegen.
Een huis naar je hart? We laten het graag aan je zien!
Indeling:
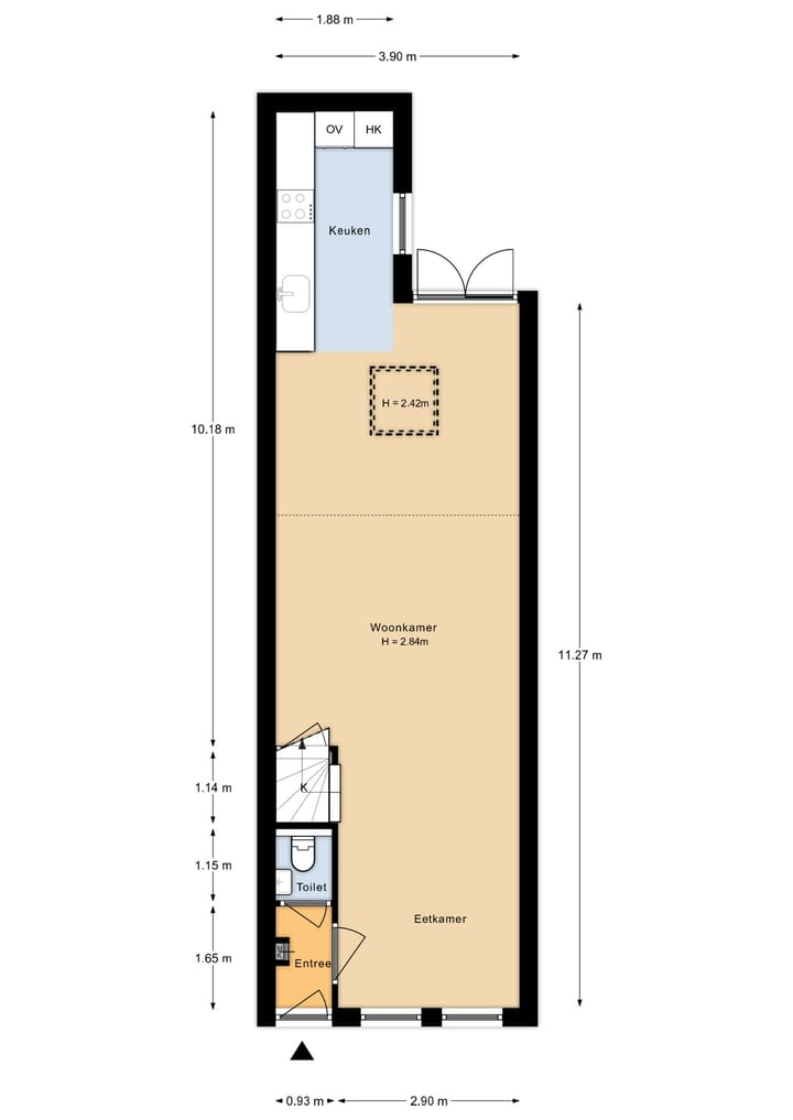
Begane grond:
Entree. Hal met luxe toiletruimte en meterkast. Riante en lichte woonkamer met een grote open keuken voorzien van modern wit keukenblok met wijnklimaatkast, quooker, vaatwasser, inductie kookplaat met bora, combi-oven en koelkast met vriesladen. De gehele begane grond is strak afgewerkt en voorzien van een fraaie visgraat houtenvloer. Vanuit de woonkamer is er toegang via de openslaande deuren naar de zonnige stadstuin waar je hoogzomer de hele dag zon hebt in de tuin.
1e Verdieping:
Overloop. Twee ruime slaapkamers. De stijlvolle badkamer is voorzien van een moderne en ruime inloopdouche, een vrijstaand ligbad, breed wastafelmeubel en een apart tweede toilet met fonteintje.
2e Verdieping:
Een verrassend ruime verdieping met nog twee extra slaapkamers, aparte bergruimte voor wasmachine/ wasdroger en CV ketel en een apart derde toilet. Door de dakramen is dit een bijzonder lichte en sfeervolle verdieping.
Bijzonderheden:
- Bouwjaar 1906, compleet gerenoveerd 2021;
- gebruiksoppervlakte wonen 106 m2, inhoud 367 m3, perceeloppervlakte 79 m2;
- energielabel B ;
- 10 zonnepanelen ( 2023);
- verwarming en warm water via cv-combiketel ( 2021);
- luxe afwerking (2021)met glas-in-lood details, visgraat houtenvloer en een lichtkoepel;
- uitstekende ligging in de Bloemenbuurt, dichtbij alle voorzieningen.
Oplevering:
In overleg.
Kenmerken
Overdracht
- Laatste vraagprijs
- € 650.000 kosten koper
- Vraagprijs per m²
- € 6.132
- Status
- Verkocht
Bouw
- Soort woonhuis
- Eengezinswoning, tussenwoning
- Soort bouw
- Bestaande bouw
- Bouwjaar
- 1906
- Soort dak
- Plat dak bedekt met bitumineuze dakbedekking en pannen
Oppervlakten en inhoud
- Gebruiksoppervlakten
- Wonen
- 106 m²
- Externe bergruimte
- 2 m²
- Perceel
- 79 m²
- Inhoud
- 367 m³
Indeling
- Aantal kamers
- 5 kamers (4 slaapkamers)
- Aantal badkamers
- 1 badkamer en 3 aparte toiletten
- Badkamervoorzieningen
- Inloopdouche, ligbad, en wastafelmeubel
- Aantal woonlagen
- 3 woonlagen
- Voorzieningen
- Dakraam, glasvezelkabel, natuurlijke ventilatie, TV kabel, en zonnepanelen
Energie
- Energielabel
- Isolatie
- Dubbel glas en volledig geïsoleerd
- Verwarming
- Cv-ketel
- Warm water
- Cv-ketel
- Cv-ketel
- Gas gestookt combiketel uit 2021, eigendom
Kadastrale gegevens
- CATHARIJNE B 5105
- Kadastrale kaart
- Oppervlakte
- 79 m²
- Eigendomssituatie
- Volle eigendom
Buitenruimte
- Ligging
- Aan rustige weg en in woonwijk
- Tuin
- Achtertuin
- Achtertuin
- 24 m² (6,00 meter diep en 4,00 meter breed)
- Ligging tuin
- Gelegen op het zuidwesten
Bergruimte
- Schuur/berging
- Vrijstaand kunststof
Parkeergelegenheid
- Soort parkeergelegenheid
- Openbaar parkeren
Foto's 55
© 2001-2026 funda






















































