
Omschrijving
Met zowel het centrum als het stadspark binnen handbereik, is de locatie van dit ROYALE 4-KAMER APPARTEMENT zeker een groot pluspunt te noemen. Als ook de volgende punten jou aanspreken, dan weten wij zeker dat je hier met heel veel plezier zult wonen!
• Een royaal gebruiksoppervlakte van ca. 86m2;
• De woonkamer en het balkon hebben een zonnige situering op het zuiden;
• 3 Ruime slaapkamers van ca. 14m2, 9m2 en 9m2;
• Eigen berging op de begane grond;
• Winkelcentrum en stadspark op loopafstand.
We verwelkomen je graag tijdens een bezichtiging om je alle pluspunten te laten ervaren!
Indeling
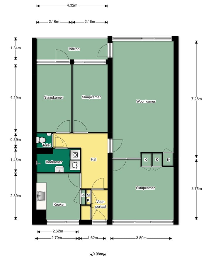
Je krijgt toegang tot het appartementencomplex via een beveiligde gemeenschappelijke hoofdentree. Deze is voorzien van een intercominstallatie, brievenbussentableau, trappenhuis en liftinstallatie. Via de lift of trap bereik je de 8e verdieping, waar zich op nummer 554 dit ruime appartement bevindt.
Je komt het appartement binnen in het voorportaal, dat is voorzien van een vaste kast en meterkast. Vanuit het voorportaal loop je de ruime hal in, waar je de intercominstallatie vindt en waarvandaan er toegang is tot de keuken, badkamer, toiletruimte, woonkamer en 2 (van de 3) slaapkamers.
De keuken is voorzien van een provisiekast en een standaard keukenblok met witte fronten en een RVS aanrechtblad. Dit keukenblok is voorzien van 3 onderkasten, 2 bovenkasten, een spoelbak en een elektrische boiler (80 liter).
De badkamer is voorzien van een wastafel, douche en een aansluiting voor de wasmachine. De wanden zijn volledig betegeld met witte tegels en op de vloer liggen grijze tegels. De toiletruimte is voorzien van een toilet en een fonteintje en hier zijn de wanden afgewerkt met witte resp. blauwe tegels en blauwe vloertegels.
De woonkamer voorzien van een elektrische screen heeft een fijne lichtinval door het kamerbrede raam en de situering op het zuiden. Vanuit de woonkamer kijk je prachtig weids weg richting de bossen van de Utrechtse Heuvelrug. Het balkon is vanuit de woonkamer en vanuit één van de slaapkamers bereikbaar en ook hier profiteer je van de zonnige situering op het zuiden en het mooie uitzicht.
De 3 slaapkamers hebben met 14m2, 9m2 en 9m2 bruikbare afmetingen. De ouderslaapkamer is gesitueerd aan de galerijzijde en voorzien van 2 vaste kasten; de twee andere slaapkamers bevinden zich aan de balkonzijde van het appartement en een van deze kamers is voorzien van een deur naar het balkon en drie losse kasten.
Kenmerken
Gebruiksoppervlakte: ca. 86m2
Gebouwgebonden buitenruimte: ca. 6m2
Externe bergruimte: ca. 8m2
Inhoud: ca. 268m3
Bouwjaar: ca. 1968
Servicekosten: € 177,42 per maand (excl. stookkosten)
Oppervlakten
Woonkamer: 28m2
Balkon: ca. 6m2
Keuken: ca. 8m2
Slaapkamer I: ca. 14m2
Slaapkamer II: ca. 9m2
Slaapkamer III: ca. 9m2
Badkamer: ca. 4m2
Berging: ca. 8m2
Appartementencomplex
Dit ruime appartement bevindt zich in het goed onderhouden gebouw ‘Zilvermeeuw’, dat onder andere is voorzien van een beveiligde hoofdentree, gemeenschappelijke entreehal, intercominstallatie, brievenbussentableau, 2 trappenhuizen en een liftinstallatie. Op de begane grond van het complex bevindt zich de gemeenschappelijke fietsenstalling en is er voor ieder appartement een afzonderlijke berging. Nabij het appartementencomplex zijn ruim voldoende openbare parkeermogelijkheden aanwezig.
Omgeving
Het appartement ligt nabij het gezellige centrum van Veenendaal, dat een uitgebreid aanbod aan winkels, horecagelegenheden en (culturele) activiteiten te bieden heeft. Ook sportievelingen kunnen vanaf deze plek hun hart op halen! Op korte afstand bevinden zich diverse sportaccommodaties, zoals hockey-, korfbal-, tennis- en voetbalvelden, maar ook een aantal sportscholen en de ijsbaan. Het nabijgelegen stadspark biedt niet alleen ruimte voor sportiviteit, maar ook voor ontspanning. Centraal kunnen we de ligging ook zeker noemen: station Veenendaal-Centrum ligt op circa 5 minuten fietsafstand en via de nabijgelegen Rondweg-Oost zijn ook de autosnelwegen A12, A30 en A15 snel bereikbaar!
Let op!
Dit appartement zal door de verkoper alleen worden verkocht aan een natuurlijk persoon die het appartement zelf gaat bewonen. Koper mag het appartement niet binnen 12 maanden na de eigendomsoverdracht verkopen danwel verhuren, op straffe van een direct opeisbare boete ten behoeve van de verkoper ad € 10.000,00. Dit artikel is niet van toepassing indien de onroerende zaak moet worden verkocht bij een executoriale verkoop. Na deze 12 maanden is verhuur uitsluitend toegestaan met schriftelijke toestemming van de Vereniging van Eigenaren.
Projectnotaris
Olenz notarissen te Veenendaal.
Kenmerken
Overdracht
- Servicekosten
- € 177 per maand
- Laatste vraagprijs
- € 284.500 kosten koper
- Vraagprijs per m²
- € 3.308
- Status
- Verkocht
- Bijdrage VvE
- € 177,42 per maand
Bouw
- Soort appartement
- Galerijflat (appartement)
- Soort bouw
- Bestaande bouw
- Bouwjaar
- 1968
- Soort dak
- Plat dak bedekt met bitumineuze dakbedekking
Oppervlakten en inhoud
- Gebruiksoppervlakten
- Wonen
- 86 m²
- Gebouwgebonden buitenruimte
- 6 m²
- Externe bergruimte
- 8 m²
- Inhoud
- 268 m³
Indeling
- Aantal kamers
- 4 kamers (3 slaapkamers)
- Aantal badkamers
- 1 badkamer en 1 apart toilet
- Badkamervoorzieningen
- Douche en wastafel
- Aantal woonlagen
- 8 woonlagen
- Voorzieningen
- Lift
- Gelegen op
- 8e woonlaag
Energie
- Energielabel
- Isolatie
- Dubbel glas
- Verwarming
- Blokverwarming
- Warm water
- Elektrische boiler
Kadastrale gegevens
- VEENENDAAL C. 3942
- Kadastrale kaart
- Eigendomssituatie
- Volle eigendom
Buitenruimte
- Ligging
- Aan water, in woonwijk en vrij uitzicht
- Balkon/dakterras
- Balkon aanwezig
Bergruimte
- Schuur/berging
- Box
Parkeergelegenheid
- Soort parkeergelegenheid
- Openbaar parkeren
VvE checklist
- Inschrijving KvK
- Ja
- Jaarlijkse vergadering
- Ja
- Periodieke bijdrage
- Ja (€ 177,42 per maand)
- Reservefonds aanwezig
- Ja
- Onderhoudsplan
- Ja
- Opstalverzekering
- Ja
Foto's 23
© 2001-2026 funda






















