
Omschrijving
Royaal 4-kamer appartement op een centrale locatie!
Met zowel het centrum als het stadspark op loopafstand, is de ligging van dit ruime 4-KAMER APPARTEMENT zonder twijfel een groot pluspunt. Tel daar de comfortabele indeling en prettige lichtinval bij op, en je hebt een fijne plek om thuis te komen. Wat dit appartement nog meer te bieden heeft:
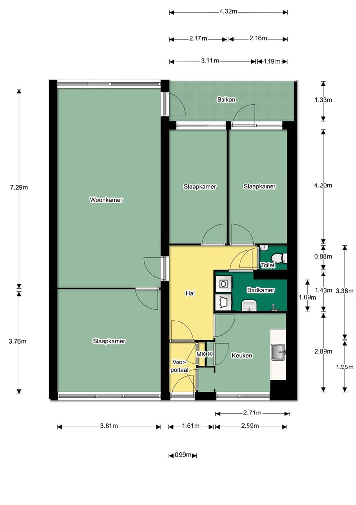
• Een royaal gebruiksoppervlakte van ca. 86 m²;
• Een zonnige woonkamer en balkon op het zuiden;
• Drie ruime slaapkamers van ca. 14 m², 9 m² en 9 m²;
• Eigen berging op de begane grond;
• Gelegen nabij winkelcentrum en stadspark;
• Actieve en financieel gezonde VvE.
Ben je benieuwd of dit jouw nieuwe thuis kan worden? Je bent van harte welkom voor een bezichtiging!
Indeling
Je krijgt toegang tot het appartementencomplex via een beveiligde gemeenschappelijke hoofdentree. Deze is voorzien van een intercominstallatie, brievenbussentableau, trappenhuis en liftinstallatie. Via de lift of trap bereik je de 1e verdieping, waar zich op nummer 568 dit ruime appartement bevindt.
Je komt het appartement binnen in het voorportaal, waar zich de meterkast bevindt. Een deur met glas geeft je toegang tot de ruime L-vormige hal. In deze hal vind je de intercominstallatie en hiervandaan krijg je toegang tot de keuken, badkamer, toiletruimte, woonkamer en 2 (van de 3) slaapkamers.
De keuken is voorzien van een provisiekast en een nis waarin je bijvoorbeeld de koelkast zou kunnen plaatsen. Het standaard keukenblok heeft houtstructuur fronten en een gemêleerd kunststof aanrechtblad. Dit keukenblok is voorzien van 2 onderkasten, 3 bovenkasten, een wasemkap, een spoelbak en een elektrische boiler (80 liter).
De badkamer is voorzien van een wastafel met planchet en spiegel, een douche en een aansluiting voor de wasmachine. De wanden zijn afgewerkt met lichte, gemêleerde tegels en op de vloer liggen lichtgrijze tegeltjes. De toiletruimte is voorzien van een toilet en fonteintje en is in dezelfde kleurstelling betegeld als de badkamer.
De woonkamer heeft een fijne lichtinval door het kamerbrede raam en de situering op het zuiden. Vanuit de woonkamer kijk je prachtig weids weg over de voorgelegen vijver. Het balkon is vanuit de woonkamer en vanuit één van de slaapkamers bereikbaar en ook hier profiteer je van de zonnige situering op het zuiden en het mooie uitzicht.
De 3 slaapkamers hebben met 14m2, 9m2 en 9m2 bruikbare afmetingen. De grootste slaapkamer is gesitueerd aan de galerijzijde en de twee andere slaapkamers bevinden zich aan de balkonzijde van het appartement.
Afwerking
Het appartement is voorzien van een laminaatvloer en de wanden zijn afgewerkt met granol.
Kenmerken
Gebruiksoppervlakte: ca. 86m2
Gebouwgebonden buitenruimte: ca. 6m2
Externe bergruimte: ca. 9m2
Inhoud: ca. 268m3
Bouwjaar: ca. 1968
Servicekosten: € 177,42 per maand (excl. stookkosten)
Oppervlakten
Woonkamer: 28m2
Balkon: ca. 6m2
Keuken: ca. 8m2
Slaapkamer I: ca. 14m2
Slaapkamer II: ca. 9m2
Slaapkamer III: ca. 9m2
Badkamer: ca. 4m2
Berging: ca. 9m2
Appartementencomplex
Dit ruime appartement bevindt zich in het goed onderhouden gebouw ‘Zilvermeeuw’, dat onder andere is voorzien van een beveiligde hoofdentree, gemeenschappelijke entreehal, intercominstallatie, brievenbussentableau, 2 trappenhuizen en een liftinstallatie. Op de begane grond van het complex bevindt zich de gemeenschappelijke fietsenstalling en is er voor ieder appartement een afzonderlijke berging. Nabij het appartementencomplex zijn ruim voldoende openbare parkeermogelijkheden aanwezig.
Omgeving
Het appartement ligt nabij het gezellige centrum van Veenendaal, dat een uitgebreid aanbod aan winkels, horecagelegenheden en (culturele) activiteiten te bieden heeft. Ook sportievelingen kunnen vanaf deze plek hun hart op halen! Op korte afstand bevinden zich diverse sportaccommodaties, zoals hockey-, korfbal-, tennis- en voetbalvelden, maar ook een aantal sportscholen en de ijsbaan. Het nabijgelegen stadspark biedt niet alleen ruimte voor sportiviteit, maar ook voor ontspanning. Centraal kunnen we de ligging ook zeker noemen: station Veenendaal-Centrum ligt op circa 5 minuten fietsafstand en via de nabijgelegen Rondweg-Oost zijn ook de autosnelwegen A12, A30 en A15 snel bereikbaar!
Let op!
Dit appartement zal door de verkoper alleen worden verkocht aan een natuurlijk persoon die het appartement zelf gaat bewonen. Koper mag het appartement niet binnen 12 maanden na de eigendomsoverdracht verkopen danwel verhuren, op straffe van een direct opeisbare boete ten behoeve van de verkoper ad € 10.000,00. Dit artikel is niet van toepassing indien de onroerende zaak moet worden verkocht bij een executoriale verkoop. Na deze 12 maanden is verhuur uitsluitend toegestaan met schriftelijke toestemming van de Vereniging van Eigenaren.
Projectnotaris
Olenz notarissen te Veenendaal.
Kenmerken
Overdracht
- Laatste vraagprijs
- € 287.500 kosten koper
- Vraagprijs per m²
- € 3.343
- Status
- Verkocht
- Bijdrage VvE
- € 177,42 per maand
Bouw
- Soort appartement
- Galerijflat (appartement)
- Soort bouw
- Bestaande bouw
- Bouwjaar
- 1968
- Soort dak
- Plat dak bedekt met bitumineuze dakbedekking
Oppervlakten en inhoud
- Gebruiksoppervlakten
- Wonen
- 86 m²
- Gebouwgebonden buitenruimte
- 6 m²
- Externe bergruimte
- 12 m²
- Inhoud
- 268 m³
Indeling
- Aantal kamers
- 4 kamers (3 slaapkamers)
- Aantal badkamers
- 1 badkamer en 1 apart toilet
- Badkamervoorzieningen
- Douche en wastafel
- Aantal woonlagen
- 4 woonlagen
- Voorzieningen
- Lift
- Gelegen op
- 1e woonlaag
Energie
- Energielabel
- Isolatie
- Gedeeltelijk dubbel glas
- Verwarming
- Blokverwarming
- Warm water
- Elektrische boiler
Kadastrale gegevens
- VEENENDAAL C. 3942
- Kadastrale kaart
- Eigendomssituatie
- Volle eigendom
Buitenruimte
- Ligging
- Aan water, in woonwijk en vrij uitzicht
- Balkon/dakterras
- Balkon aanwezig
Bergruimte
- Schuur/berging
- Box
Parkeergelegenheid
- Soort parkeergelegenheid
- Openbaar parkeren
VvE checklist
- Inschrijving KvK
- Ja
- Jaarlijkse vergadering
- Ja
- Periodieke bijdrage
- Ja (€ 177,42 per maand)
- Reservefonds aanwezig
- Ja
- Onderhoudsplan
- Ja
- Opstalverzekering
- Ja
Foto's 28
© 2001-2026 funda



























