
Omschrijving
Deze charmante MIDDENWONING met achtertuin bevindt zich op een rustige en aantrekkelijke locatie in een hofje aan de J.P.C. Leinweberstraat. Hier woont u in een prettige woonomgeving, op korte fietsafstand van het bruisende Veenendaalse centrum! De woning is fraai afgewerkt en biedt een comfortabele indeling met een lichte woonkamer, open keuken, praktische bijkeuken, drie slaapkamers en een badkamer. De zonnige achtertuin, gericht op het zuidwesten, zorgt voor een heerlijke plek om te ontspannen. Onder het in het hofje gelegen appartementengebouw bevindt zich nog een eigen (FIETSEN)BERGING. De ligging is ideaal, met supermarkten, basisscholen, het centrum en belangrijke uitvalswegen binnen handbereik.
Bouwjaar: 2002. Perceel: 68 m². Woonoppervlakte: 74 m². Energielabel: A.
Indeling:
Begane grond: vanaf de J.P.C. Leinweberstraat is het gezellige hofje bereikbaar waaraan deze woning zich bevindt. Het betreft een doodlopend straatje en daarmee dus een heerlijk rustige locatie. We komen de woning binnen in de ontvangsthal waar de meterkast (7 groepen), de toiletruimte en de trapopgang naar de verdieping zijn ondergebracht. De toiletruimte is netjes, licht betegeld en voorzien van een hangend toilet en een fonteintje.
De sfeervolle woonkamer is aan de tuinzijde van de woning gelegen en is eigentijds afgewerkt. Zo is er gekozen voor een donkere laminaatvloer in een eikenlook en zijn de wanden voorzien van spachtelputz. Een mooie en tijdloze basis! Wat verder opvalt is het prettige lichtinval dat binnenkomt in de woonkamer. Vanuit de woonkamer krijgt u toegang tot de praktische trapkast en de open keuken aan de voorzijde van de woning. We zien hier een L-vormige keukenopstelling met witte fronten, zwarte handgrepen en een kunststof aanrechtblad in een granietlook. De fronten zijn in 2023 vervangen en daardoor heeft het geheel een frisse uitstraling gekregen. Alle nodige voorzieningen zijn in de keuken aanwezig zoals een inductiekookplaat, vlakscherm afzuigkap, Siemens pulse-stoomoven, vaatwasser, koelkast met drie vrieslades en een spoelbak met een nieuwe kraan. Ten slotte krijgt u vanuit de woonkamer nog toegang tot de praktische bijkeuken. Hier is het naast veel bergruimte ook mogelijk om de wasmachine en de wasdroger te plaatsen.
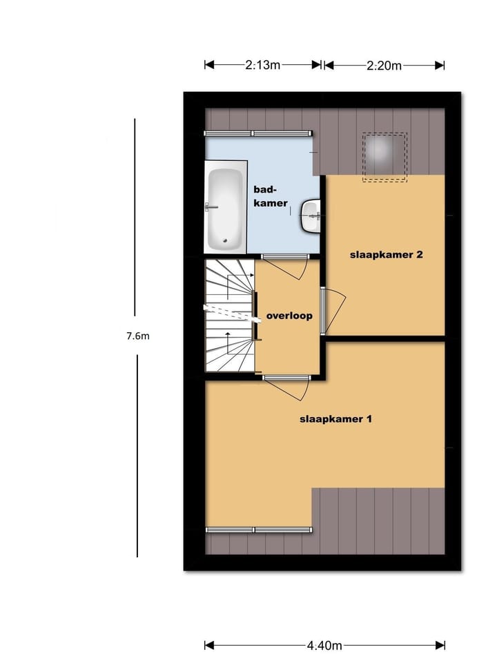
Eerste verdieping: via de vaste trapopgang komen we op de overloop op de eerste verdieping. Hier zijn twee slaapkamers en de badkamer ondergebracht. De hoofdslaapkamer heeft een vloeroppervlakte van 14 m² en is voorzien van een mooie schuifwandkast. Verder beschikt deze kamer over een dakkapel en is er nog voldoende ruimte over voor een bureau. De tweede slaapkamer, met een vloeroppervlakte van 7.8 m², is eveneens strak afgewerkt en voorzien van een dakraam. De licht betegelde badkamer (4.8 m²) beschikt over een bad-/douchecombinatie met thermostaatkraan en een wastafelmeubel met een spiegelkast. Door het aanwezige raam kan de badkamer op natuurlijke wijze geventileerd worden en is er veel lichtinval aanwezig.
Tweede verdieping: door middel van een vaste trap komen we op de voorzolder waar de cv-combiketel (Intergas CW4 HR, '17) is ondergebracht. Ook hier is eventueel een aansluiting voor de wasmachine. Vanaf de voorzolder krijgt u toegang tot de derde slaapkamer met een vloeroppervlakte van 9.7 m². Deze slaapkamer is voorzien van een dakraam.
Tuin: vanuit de bijkeuken komen we in de besloten achtertuin welke geheel is bestraat. De gunstige ligging op het zuidwesten zorgt ervoor dat u hier zowel 's middags als 's avonds van de zon kunt genieten. Verder beschikt de woning over een eigen berging van 4 m² welke is gelegen onder het naastgelegen appartementengebouw.
Aanvullend:
- raam achtergevel is v.v. een screen;
- servicekosten voor onderhoud berging inclusief verbruik elektra: € 4,74 per maand;
- aanvaarding: in overleg. Voorkeur verkopers: april 2025.
Kenmerken
Overdracht
- Laatste vraagprijs
- € 335.000 kosten koper
- Vraagprijs per m²
- € 4.527
- Status
- Verkocht
Bouw
- Soort woonhuis
- Eengezinswoning, tussenwoning
- Soort bouw
- Bestaande bouw
- Bouwjaar
- 2002
- Soort dak
- Zadeldak bedekt met pannen
Oppervlakten en inhoud
- Gebruiksoppervlakten
- Wonen
- 74 m²
- Overige inpandige ruimte
- 4 m²
- Perceel
- 68 m²
- Inhoud
- 250 m³
Indeling
- Aantal kamers
- 4 kamers (3 slaapkamers)
- Aantal badkamers
- 1 badkamer en 1 apart toilet
- Badkamervoorzieningen
- Douche, ligbad, wastafel, en wastafelmeubel
- Aantal woonlagen
- 3 woonlagen
- Voorzieningen
- Buitenzonwering, dakraam, glasvezelkabel, mechanische ventilatie, natuurlijke ventilatie, en TV kabel
Energie
- Energielabel
- A
- Isolatie
- Dakisolatie, dubbel glas, muurisolatie, vloerisolatie en volledig geïsoleerd
- Verwarming
- Cv-ketel
- Warm water
- Cv-ketel
- Cv-ketel
- Intergas CW4 HR (gas gestookt combiketel uit 2017, eigendom)
Kadastrale gegevens
- VEENENDAAL D 8843
- Kadastrale kaart
- Oppervlakte
- 68 m²
- Eigendomssituatie
- Volle eigendom
Buitenruimte
- Ligging
- Aan rustige weg, beschutte ligging en in woonwijk
- Tuin
- Achtertuin en voortuin
- Achtertuin
- 10 m² (3,20 meter diep en 3,00 meter breed)
- Ligging tuin
- Gelegen op het zuidwesten
Bergruimte
- Schuur/berging
- Box
- Voorzieningen
- Elektra
Parkeergelegenheid
- Soort parkeergelegenheid
- Openbaar parkeren
Foto's 37
© 2001-2026 funda




































