
Omschrijving
Deze sfeervolle jaren ’30-woning combineert authentiek karakter met modern wooncomfort. Dankzij de uitbouw op zowel de begane grond als de verdieping biedt de woning verrassend veel ruimte. Het hart van het huis wordt gevormd door de royale woonkeuken met kookeiland – centraal gelegen tussen de stijlvolle eetkamer met erker en de tuingerichte woonkamer. Op de eerste verdieping bevinden zich drie slaapkamers en een luxe badkamer. De achtertuin is onderhoudsvriendelijk aangelegd en achterin staat een stenen berging in een stijl, die mooi aansluit bij de uitstraling van de woning. Deze instapklare woning is gelegen in Veenendaal-Zuid met op loopafstand een wijkwinkelcentrum, scholen en het NS-station Veenendaal-Centrum.
Bouwjaar: 1938 (uitbouw: 2007). Perceel: 123 m². Woonoppervlakte: 112 m². Energielabel: C.
Indeling:
Begane grond: via de voortuin bereiken we de entree aan de voorzijde van de woning. Aan beide zijden van de voordeur zorgen glazen zijpanelen voor een aangename lichtinval in de hal. De hal is afgewerkt met een stijlvolle, klassieke granietvloer en biedt toegang tot de meterkast (met 8 groepen) en de toiletruimte. Deze toiletruimte is deels betegeld met fraaie wandtegels en een granieten vloer en is uitgerust met een hangend toilet. Vanuit het toilet is er toegang tot een praktische trapkast.
Via een glazen paneeldeur is de woonkeuken te bereiken. Al bij binnenkomst laat de entree iets zien van de bijzondere sfeer die deze woning kenmerkt – en die belofte wordt in de woonkeuken volledig waargemaakt. Deze leefruimte biedt het comfort van modern wonen, gecombineerd met de authentieke charme van de jaren ’30. De fraaie erker aan de voorzijde, de strak gestucte wanden en het witte balkenplafond stralen een serene, karaktervolle sfeer uit. De warme eikenhouten vloer en de sfeervolle houtkachel maken het geheel helemaal af.
Het kloppend hart van de woning is – letterlijk – de centraal gelegen keuken. Langs de linkerwand bevindt zich een royale, kamerhoge kastenwand, uitgevoerd in hoogglans wit. Ook het kookeiland is afgewerkt in hoogglans wit en wordt omlijst door een dikke wengé omlijsting, die tevens dienstdoet als werkblad. De keuken is van alle gemakken voorzien, waaronder een gaskookplaat, rvs-afzuigkap, combi-oven, ingebouwde koffieautomaat, koelkast, vriezer, vaatwasser en een spoelbak. Aan het eiland zijn barstoelen geplaatst, wat zorgt voor een gezellige zitplek.
Via een strakke toog is er toegang tot de woonkamer in de aanbouw aan de achterzijde van de woning. Deze heerlijk lichte ruimte beschikt over openslaande tuindeuren en is afgewerkt met hardstenen plavuizen. De wanden en plafonds zijn strak gestuct en dragen bij aan de moderne, frisse uitstraling van deze leefruimte.
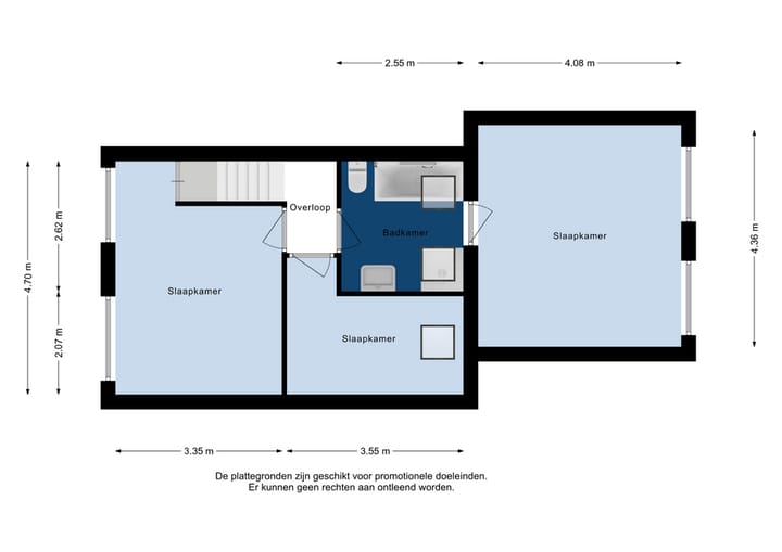
Eerste verdieping: via een vaste trap bereiken we de overloop op de eerste verdieping. Vanuit hier is er toegang tot twee slaapkamers en de badkamer. De eerste slaapkamer heeft een grootte van 14 m² en strekt zich uit over de volledige breedte van de woning. Deze slaapkamer is afgewerkt met een nette laminaatvloer, een fraai balkenplafond en biedt toegang tot de zolderverdieping. De tweede slaapkamer heeft een oppervlakte van ongeveer 8 m² en is voorzien van een vaste kastenwand. Dankzij het dakraam en het schuin oplopende dak valt het daglicht op een bijzondere manier binnen – een kenmerk dat ook in de badkamer terugkomt. De badkamer van 6.2 m² is volledig betegeld met moderne grijze wand- en vloertegels. De ruimte is uitgerust met een royaal ligbad, een ruime inloopdouche met ingebouwde kranen, een hangend toilet, een stijlvol wastafelmeubel in houtlook en een designradiator. Via een schuifdeur is er vanuit de badkamer directe toegang tot een derde slaapkamer aan de achterzijde. Deze kamer meet circa 18 m² en is keurig afgewerkt met strak gestucte wanden en plafonds, evenals een laminaatvloer.
Tweede verdieping: de tweede verdieping is uitstekend geschikt als bergzolder. De ruimte (vloeroppervlakte: 15 m²) is voorzien van vloerbedekking en beschikt over maar liefst drie dakramen, wat zorgt voor aangenaam daglicht. Daarnaast bevinden zich hier de cv-combiketel (Intergas, '07) en de aansluitingen voor wasmachine en droger.
Tuin: de achtertuin is onderhoudsvriendelijk ingericht en volledig bestraat met grote antracietkleurige tegels, wat zorgt voor een strakke en moderne uitstraling. Aan één zijde wordt de tuin omsloten door een groene haag. Dankzij de royale opzet is er voldoende ruimte voor een comfortabele loungeset, een eettafel én een speelplek voor kinderen. Achterin de tuin staat een stenen berging van 5.2 m². Deze is uitgevoerd in een fraaie stijl die perfect aansluit bij de jaren ’30-architectuur van de woning, compleet met glas-in-lood in het raam, een diep overstek met ingebouwde spots en een karakteristieke poortdeur met ronde toog. Een harmonieus geheel dat perfect past bij de uitstraling van het huis.
Aanvaarding: in overleg. Voorkeur verkopers: vanaf eind september '25.
Kenmerken
Overdracht
- Laatste vraagprijs
- € 445.000 kosten koper
- Vraagprijs per m²
- € 3.973
- Status
- Verkocht
Bouw
- Soort woonhuis
- Eengezinswoning, tussenwoning
- Soort bouw
- Bestaande bouw
- Bouwjaar
- 1938
- Soort dak
- Samengesteld dak
Oppervlakten en inhoud
- Gebruiksoppervlakten
- Wonen
- 112 m²
- Externe bergruimte
- 5 m²
- Perceel
- 123 m²
- Inhoud
- 370 m³
Indeling
- Aantal kamers
- 5 kamers (3 slaapkamers)
- Aantal badkamers
- 1 badkamer en 1 apart toilet
- Badkamervoorzieningen
- Inloopdouche, ligbad, toilet, wastafel, en wastafelmeubel
- Aantal woonlagen
- 3 woonlagen
- Voorzieningen
- Dakraam, glasvezelkabel, mechanische ventilatie, natuurlijke ventilatie, en rookkanaal
Energie
- Energielabel
- Isolatie
- Dakisolatie, muurisolatie en vloerisolatie
- Verwarming
- Cv-ketel en houtkachel
- Warm water
- Cv-ketel
- Cv-ketel
- Intergas (gas gestookt combiketel uit 2007, eigendom)
Kadastrale gegevens
- VEENENDAAL B 8987
- Kadastrale kaart
- Oppervlakte
- 123 m²
- Eigendomssituatie
- Volle eigendom
Buitenruimte
- Ligging
- Aan rustige weg en in woonwijk
- Tuin
- Achtertuin en voortuin
- Achtertuin
- 38 m² (8,20 meter diep en 4,60 meter breed)
- Ligging tuin
- Gelegen op het noorden bereikbaar via achterom
Bergruimte
- Schuur/berging
- Vrijstaande stenen berging
- Voorzieningen
- Elektra
Parkeergelegenheid
- Soort parkeergelegenheid
- Openbaar parkeren
Foto's 42
© 2001-2026 funda









































