Dit huis op Funda: https://www.funda.nl/detail/koop/veghel/appartement-broedershof-64/43277959/

Broedershof 645462 EG VeghelOranjewijk en Dorsveld
€ 359.000 k.k.
Omschrijving
Welkom in Broedershof 64!
Een verzorgd en comfortabel appartement met balkon en externe berging, gelegen in een rustige woonomgeving en op korte afstand van het centrum van Veghel.
Algemene informatie
Dit nette appartement ligt op de derde verdieping van een kleinschalig wooncomplex met een vriendelijke uitstraling. Het gebouw is goed onderhouden, beschikt over een lift en heeft rondom voldoende parkeergelegenheid. De rustige omgeving zorgt voor een prettige woonbeleving, terwijl winkels, horeca en voorzieningen op loop- en fietsafstand bereikbaar zijn.
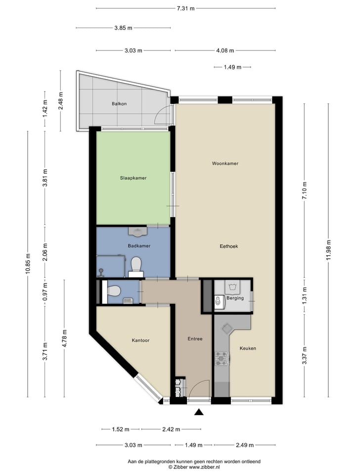
Indeling
Hal:
Ruime entree met meterkast, toilet en toegang tot de woonkamer en slaapkamer.
Woonkamer/keuken:
De lichte woonkamer heeft grote raampartijen die voor veel daglicht zorgen en voorzien zijn van screens. De keuken is uitgerust met diverse inbouwapparatuur, waaronder een 4 pits (gas)kookplaat en vaatwasser. Er is voldoende kast- en werkruimte om prettig te kunnen koken.
Slaapkamer:
De grote slaapkamer biedt plaats voor een tweepersoonsbed en kastruimte. Dankzij het grote raam is dit een lichte, rustige plek. Vanuit de slaapkamer heb je toegang tot de badkamer.
Werkkamer:
Grenzend aan de hal nog een ruimte geschikt als werkkamer of extra bergruimte.
Badkamer:
De nette badkamer is uitgerust met een douche, wastafelmeubel en radiator. Het toilet is voorzien van praktische steunen, wat extra comfort en veiligheid biedt voor wie minder goed ter been is.
Balkon:
Het zonnige balkon biedt een fijn uitzicht op de rustige omgeving van Broedershof. Je kunt hier heerlijk rustig zitten en genieten van zowel zon als schaduw door de gunstige ligging.
Berging
Op de begane grond bevindt zich een eigen berging met voldoende ruimte voor opslag.
Omgeving
Broedershof is gelegen in een rustige, groene wijk met veel voorzieningen in de directe omgeving. Het centrum van Veghel, supermarkten, sportvoorzieningen en de Noordkade liggen allemaal binnen enkele minuten. De A50 is goed bereikbaar, waardoor omliggende steden eenvoudig te bereiken zijn.
Kenmerken op een rij
• Verzorgd appartement met balkon
• Licht en praktisch ingedeeld
• Kleinschalig complex met lift
• Eigen berging
• Rustige ligging nabij centrum en Noordkade
• Voldoende parkeergelegenheid rondom het gebouw
• Goede bereikbaarheid van de A50
• VvE bijdrage €170,- euro per maand.
Ben je nieuwsgierig naar dit appartement? Neem gerust contact met ons op: we plannen graag een bezichtiging voor je in!
Kenmerken
Overdracht
- Aangeboden sinds
- Aanvaarding
- In overleg
- Vraagprijs
- € 359.000 kosten koper
- Vraagprijs per m²
- € 4.544
- Status
- Beschikbaar
- Bijdrage VvE
- € 171,00 per maand
Bouw
- Soort appartement
- Galerijflat
- Soort bouw
- Bestaande bouw
- Bouwjaar
- 1998
Oppervlakten en inhoud
- Gebruiksoppervlakten
- Wonen
- 79 m²
- Gebouwgebonden buitenruimte
- 7 m²
- Externe bergruimte
- 6 m²
- Inhoud
- 262 m³
Indeling
- Aantal kamers
- 3 kamers (1 slaapkamer)
- Aantal badkamers
- 1 badkamer en 1 apart toilet
- Badkamervoorzieningen
- Douche, toilet, wastafel, en wastafelmeubel
- Aantal woonlagen
- 3 woonlagen
Energie
- Energielabel
- B
Kadastrale gegevens
- VEGHEL K 3128
- Kadastrale kaart
- Eigendomssituatie
- Volle eigendom
Buitenruimte
- Balkon/dakterras
- Balkon aanwezig
VvE checklist
- Inschrijving KvK
- Ja
- Jaarlijkse vergadering
- Ja
- Periodieke bijdrage
- Ja (€ 171,00 per maand)
- Reservefonds aanwezig
- Nee
- Onderhoudsplan
- Ja
- Opstalverzekering
- Nee
Foto's 36
Plattegronden 2
© 2001-2025 funda





































