
Omschrijving
Benedenwoning met ruime leefruimte, 2 slaapkamers, badkamer en aparte toilet.
De woning is volledig geïsoleerd en voorzien van vloerverwarming (per ruimte te regelen).
Ideaal is de zonnige eigen achtertuin gelegen op het zuidoosten, deze is ruim te noemen met een oppervlakte van ca. 60 m²!
In de tuin kan in alle privacy optimaal van de zon worden genoten.
Daarnaast is er toegang tot de eigen berging en achterom naar het achtergelegen parkeerterrein, waar voldoende parkeergelegenheid is.
Goede bereikbaarheid naar de regio Eindhoven - Den Bosch vanwege de nabijheid aan de uitvalswegen naar de A50 en N279.
Gebruiksoppervlakte wonen: 72 m²
Externe bergruimte: 6 m²
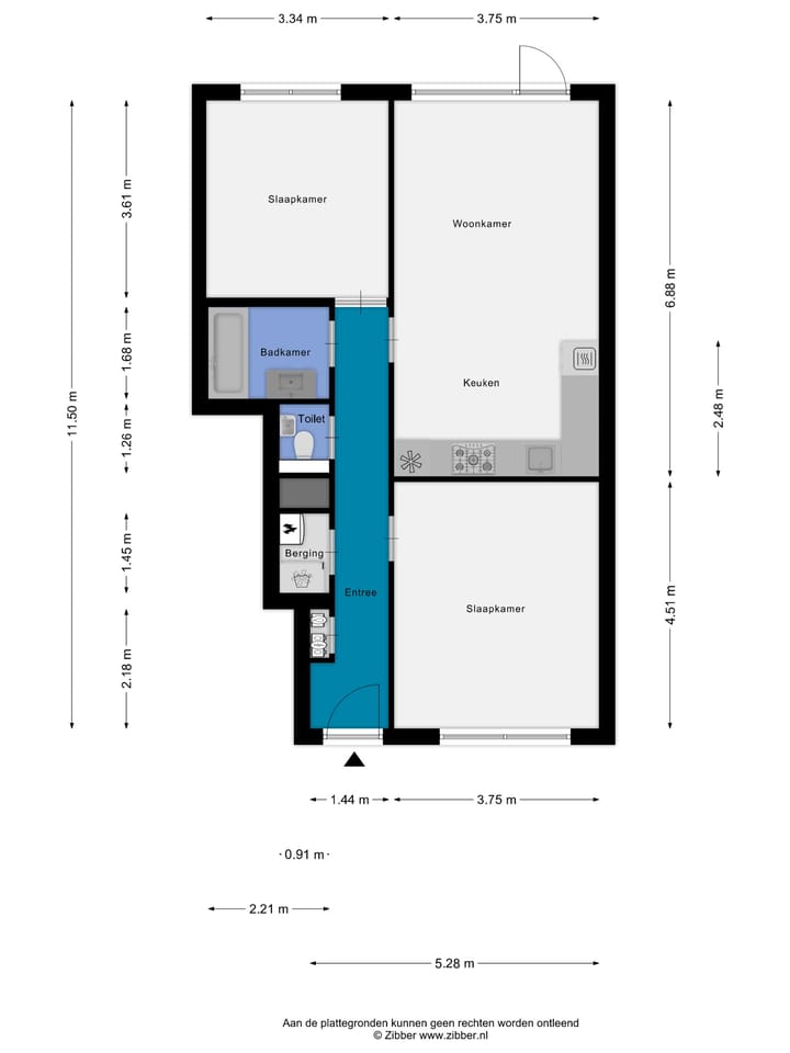
Begane grond
U heeft een eigen entree aan de voorzijde.
Centrale hal met toegang naar de meterkast, berging, toilet, badkamer, 2 slaapkamers en keuken / woonkamer.
De woonkamer is aan de achterzijde gelegen (oppervlakte van ca. 26 m²) en heeft veel lichtinval door de grote raampartij aan de achterzijde met daarbij ook de loopdeur naar de achtertuin.
De hoek opgestelde inbouwkeuken is uitgevoerd in een lichte kleurstelling.
De keuken voorziet van voldoende opbergruimte en een betegelde achterwand.
De volgende inbouwapparatuur is geplaatst:
• 5-pits gaskookplaat
• afzuigkap
• combi oven
• vaatwasser
Er zijn 2 slaapkamers (oppervlakte van ca. 12 m² en 17 m²), waarvan de grootste aan de voorzijde is gelegen.
De volledig betegelde en complete badkamer is afgewerkt met:
• ligbad met douchegelegenheid
• duo wastafel met badkamermeubel
Ideaal is voor de gasten om een apart toilet te mogen hebben.
Berging met wasmachineaansluiting, combi cv-ketel AWB (2009), centrale afzuigingsunit en verdeler vloerverwarming.
Afwerking
De vloeren in de hal, woonkamer en slaapkamers zijn voorzien van een laminaatvloer.
De wanden zijn voorzien van stucwerk en plafonds spuitwerk.
Het achterblad van de keuken is voorzien van tegels.
De badkamer is geheel betegeld en het toilet half hoog betegelde wanden.?
Tuin en berging
De berging (oppervlakte 6 m²) is achter in de tuin geplaatst en voorzien van elektra.
Ideaal voor het opslag van de spullen en de fietsen.
Deze gelegen langs de achterom met toegang naar het parkeerterrein.
De achtertuin met een oppervlakte van ca. 60 m² is ideaal op het zuidoosten gelegen.
Hier kunt u van alle rust genieten van de privacy die deze ruimte te bieden heeft.
Achter is het ruime parkeerterrein gelegen, deze is groot genoeg om voor iedereen een parkeergelegenheid te mogen bieden.
Bijzonderheden
- Goed onderhouden, volledig instapklaar!
- Met 2 ruime slaapkamers
- Volledig geïsoleerde woning en geheel dubbel glas
- Geheel vloerverwarming (per ruimte te regelen)
- Achtertuin ideaal op het zuidoosten
- Met eigen berging
- Servicekosten van € 83,- per maand
- Gunstige ligging t.o.v. Eindhoven of Nijmegen (A50) en Helmond of Den Bosch (N279)
Kenmerken
Overdracht
- Laatste vraagprijs
- € 325.000 kosten koper
- Vraagprijs per m²
- € 4.514
- Status
- Verkocht
- Bijdrage VvE
- € 83,00 per maand
Bouw
- Soort appartement
- Benedenwoning (appartement)
- Soort bouw
- Bestaande bouw
- Bouwjaar
- 2009
Oppervlakten en inhoud
- Gebruiksoppervlakten
- Wonen
- 72 m²
- Externe bergruimte
- 6 m²
- Inhoud
- 239 m³
Indeling
- Aantal kamers
- 3 kamers (2 slaapkamers)
- Aantal badkamers
- 1 badkamer en 1 apart toilet
- Badkamervoorzieningen
- Ligbad, wastafel, en wastafelmeubel
- Aantal woonlagen
- 1 woonlaag
- Gelegen op
- Begane grond
Energie
- Energielabel
- Isolatie
- Dubbel glas en volledig geïsoleerd
- Verwarming
- Cv-ketel en gehele vloerverwarming
- Warm water
- Cv-ketel
- Cv-ketel
- AWB (gas gestookt combiketel uit 2009, eigendom)
Kadastrale gegevens
- VEGHEL H 1892
- Kadastrale kaart
- Eigendomssituatie
- Volle eigendom
Buitenruimte
- Tuin
- Achtertuin
- Achtertuin
- 35 m² (5,00 meter diep en 7,00 meter breed)
- Ligging tuin
- Gelegen op het zuidwesten bereikbaar via achterom
Bergruimte
- Schuur/berging
- Vrijstaande houten berging
Parkeergelegenheid
- Soort parkeergelegenheid
- Openbaar parkeren
VvE checklist
- Inschrijving KvK
- Ja
- Jaarlijkse vergadering
- Ja
- Periodieke bijdrage
- Ja (€ 83,00 per maand)
- Reservefonds aanwezig
- Ja
- Onderhoudsplan
- Ja
- Opstalverzekering
- Ja
Foto's 24
© 2001-2026 funda























