
Omschrijving
Rustig gelegen, unieke, VRIJSTAANDE WONING met zonnige tuin op het Zuiden. Ideaal voor praktijk aan huis of voor mensen die gewoon lekker veel extra ruimte willen (bar, chill room, gaming, speelkamer, werkruimte, etc.). in totaal maar liefst 213 m2 woonoppervlak! Degelijk gebouwd, goed geïsoleerd en goed onderhouden. Deze unieke woning heeft een speels ontwerp, biedt veel lichtinval en vrij uitzicht aan verschillende kanten. Recentelijk voorzien van een nieuwe badkamer inrichting. Veel ruimte door extra woonlaag in de vorm van een half verdiept souterrain onder het hele huis. Uitstekende gelegenheid van thuis werken of praktijk aan huis onder andere door de eigen ingang voor bezoekers en / of klanten; hierdoor blijven privé en werk gescheiden. Gelegen in het rustige Eerde nabij wegen richting Eindhoven, 's-Hertogenbosch, Veghel, Schijndel, Uden, Oss en Sint Oedenrode.
BIJZONDERHEDEN
- Fraai en rustig gelegen, maar toch ook zeer centraal ten opzichte van omliggende plaatsen;
- Perceel: 490 m²; Inhoud 755 m³; Woonoppervlak 213 m²;
- Bouwjaar 1995; Volledig geïsoleerd en uitstekend onderhouden;
- Voorzien van een souterrain en kelder onder de gehele woning (volwaardige ruimte; licht, verwarming, isolatie)
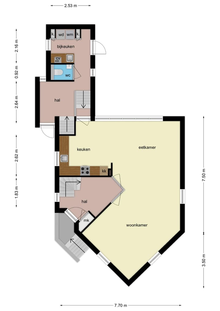
BEGANE GROND
Ruime HAL met meterkast en trapopgang. De WOONKAMER is lekker licht door de vele ramen aan verschillende kanten en biedt een fraai uitzicht op de tuin. De half open EETKEUKEN met een inrichting in hoekopstelling is voorzien van inbouw apparatuur en biedt via een achterdeur toegang tot de BIJKEUKEN. Deze is voorzien van aansluitingen ten behoeve van wasapparatuur en van een toilet. Via de bijkeuken is de achtertuin bereikbaar.
SOUTERRAIN
De bedrijfsruimte in het grote souterrain is via een eigen entree/ hal te bereiken en gasten kunnen gebruik maken van het toilet ter hoogte van deze entree. Vanuit het souterrain is er toegang tot een berging en een provisie/ wijnkelder. In het souterrain bevindt zich een ruim portaal, spreekkamer (15m²) en prachtige kantoorruimte (ca 35m²).
VERDIEPING
OVERLOOP met aangrenzende vertrekken als badkamer en 3 slaapkamers. De BADKAMER is in 2015 vernieuwd en voorzien van een inloopdouche, toilet, bidet en dubbele wastafel. Via een vlizotrap is de vliering bereikbaar; deze doet dienst als berging.
EXTERIEUR
Aan de voor- zij- en achterkant van de woning bevindt zich een fraai aangelegde tuin. De achterzijde is gericht op het Zuiden en heeft een gezellige tuin met veel privacy en een zonnig terras. Aan de voorzijde / zijkant van het perceel is ruime parkeergelegenheid op eigen terrein (4 auto's) en er is voldoende parkeergelegenheid in de nabije omgeving. Indien wenselijk kan er ook nog een garage worden gebouwd.
ALGEMEEN
Eerde is een dorp in de provincie Noord-Brabant, gelegen in de Meierij van 's-Hertogenbosch. Eerde is een gezellig kerkdorp in de gemeente Meierijstad en telt rond de 1.400 inwoners. De naam Eerde betekent 'beploegde grond, bouwland'. In de nabijheid van de woning treft u een basisschool en enkele buurtwinkels. U bevindt zich op 3 km afstand van de Noordkade (horeca, cultuur en ontspanning) in Veghel. Via de nabijgelegen A50 bereikt u snel o.a. Uden, Eindhoven en Oss. Ook bent u snel in Schijndel, Sint Oedenrode en 's-Hertogenbosch (N279).
Kenmerken
Overdracht
- Laatste vraagprijs
- € 595.000 kosten koper
- Vraagprijs per m²
- € 2.793
- Status
- Verkocht
Bouw
- Soort woonhuis
- Eengezinswoning, vrijstaande woning
- Soort bouw
- Bestaande bouw
- Bouwjaar
- 1995
- Soort dak
- Samengesteld dak bedekt met bitumineuze dakbedekking en leisteen
Oppervlakten en inhoud
- Gebruiksoppervlakten
- Wonen
- 213 m²
- Overige inpandige ruimte
- 4 m²
- Perceel
- 470 m²
- Inhoud
- 755 m³
Indeling
- Aantal kamers
- 6 kamers (3 slaapkamers)
- Aantal badkamers
- 1 badkamer en 1 apart toilet
- Badkamervoorzieningen
- Bidet, dubbele wastafel, inloopdouche, toilet, en wastafelmeubel
- Aantal woonlagen
- 5 woonlagen
- Voorzieningen
- Airconditioning, alarminstallatie, buitenzonwering, mechanische ventilatie, en TV kabel
Energie
- Energielabel
- A
- Isolatie
- Volledig geïsoleerd
- Verwarming
- Cv-ketel
- Warm water
- Cv-ketel
- Cv-ketel
- Remeha Calhenta (gas gestookt combiketel uit 2009, eigendom)
Kadastrale gegevens
- VEGHEL F 4797
- Kadastrale kaart
- Oppervlakte
- 470 m²
- Eigendomssituatie
- Volle eigendom
Buitenruimte
- Ligging
- Aan park, aan rustige weg, beschutte ligging en in centrum
- Tuin
- Achtertuin en voortuin
- Achtertuin
- 170 m² (11,30 meter diep en 15,00 meter breed)
- Ligging tuin
- Gelegen op het zuiden bereikbaar via achterom
Parkeergelegenheid
- Soort parkeergelegenheid
- Op eigen terrein en openbaar parkeren
Foto's 37
© 2001-2025 funda




































