
Goudenakkerstraat 135503 PK VeldhovenD'Ekker
€ 479.000 k.k.
Omschrijving
Uitstekend onderhouden, op- en uitbouwde tussenwoning met o.a. sfeervolle en ruime woonkamer, moderne keuken en badkamer, 4-5 slaapkamers, kunststof kozijnen en een vrij gelegen, aangelegde achtertuin met ligging op het zonnige zuidwesten.
Gelegen aan de rustige woonstraat in de wijk d'Ekker op loopafstand van het City Centrum, maar ook met voorzieningen zoals winkels, scholen, openbaar vervoer verbindingen en uitvalswegen binnen direct handbereik.
Bouwjaar: ca. 1952
Perceeloppervlakte: 152m
Woonoppervlakte: ca. 112m2
Externe bergruimte: ca. 11m2
Inhoud: ca. 399m3
Aanvaarding: in overleg
Indeling begane grond:
Aangelegde voortuin.
Ontvangsthal met antraciete tegelvloer met vloerverwarming, trapopgang, garderobenis en een praktische kelderkast met bergschappen en de meterkast.
Betegelde toiletruimte met hangcloset en wastafelmeubeltje.
Riante, sfeervolle woonkamer, aan de achterzijde over de volledige breedte uitgebouw en voorzien van een antraciete tegelvloer met vloerverwarming en dubbele tuindeuren.
Eveneens in de uitbouw is de semi-open keuken gesitueerd. Deze is in 2012 geheel vernieuwd en heeft een U-vormige inrichting met 5-pits rvs gaskookstel met geïntegreerde oven, afzuigkap, koel-/vriescombinatie, vaatwasser en diverse kastjes en laden.
De achtertuin is onderhoudsvriendelijk aangelegd met sierbestrating, borders, buitenkraantje, elektrapunten, overdekte achterom en een vrijstaande berging. De ligging is op het zonnige zuidwesten.
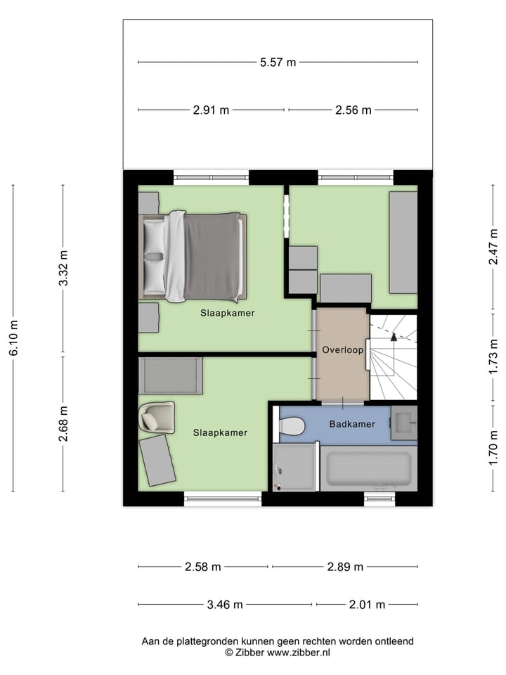
Indeling eerste verdieping:
Overloop met laminaatvloer.
Voorslaapkamer met laminaatvloer en elektrisch bedienbaar rolluik.
Moderne en vergrote badkamer, geheel betegeld en compleet uitgerust met kunststof ligbad, douchecabine, hangcloset, wastafelmeubel, decorradiator en een verlaagd plafond met ingebouwde spotjes.
De van origine twee achterslaapkamers zijn momenteel samengevoegd tot een riante hoofdslaapkamer met laminaatvloer, walk-in-closet en een tweetal elektrisch bedienbare rolluiken. Indien gewenst is het eenvoudig mogelijk deze weer op te splitsen in twee afzonderlijke kamers.
Indeling tweede verdieping:
Middels een vaste trapverbinding te bereiken overloop met laminaatvloer, aansluitingen t.b.v. de wasapparatuur, opstelling Vaillant HR cv-combiketel (bouwjaar 2008, eigendom) en een tweetal elektrisch bedienbare rolluiken.
Voorslaapkamer met laminaatvloer en elektrisch bedienbaar rolluik.
Achterslaapkamer met laminaatvloer en elektrisch bedienbaar rolluik.
Indeling derde verdieping:
Middels een losse trapverbinding te bereiken, praktische bergviering.
Algemeen:
De woning is voorzien van dakisolatie, deels gevelisolatie en isolerende beglazingen, deels HR++.
Er is een energielabel D aanwezig.
De gehele woning is uitgerust met kunststof kozijnen en grotendeels met elektrisch bedienbare rolluiken.
4-5 slaapkamers aanwezig.
Heerlijk vrij gelegen achtertuin met ligging op het zonnige zuidwesten.
Gelegen aan een rustige, kindvriendelijke woonstraat in de wij d'Ekker op korte afstand van het City Centrum, winkels, horeca, scholen, openbaar vervoer verbindingen en uitvalswegen.
Kenmerken
Overdracht
- Aangeboden sinds
- Aanvaarding
- In overleg
- Vraagprijs
- € 479.000 kosten koper
- Vraagprijs per m²
- € 4.277
- Status
- Beschikbaar
Bouw
- Soort woonhuis
- Eengezinswoning, tussenwoning
- Soort bouw
- Bestaande bouw
- Bouwjaar
- 1952
- Soort dak
- Zadeldak bedekt met pannen
Oppervlakten en inhoud
- Gebruiksoppervlakten
- Wonen
- 112 m²
- Externe bergruimte
- 11 m²
- Perceel
- 152 m²
- Inhoud
- 399 m³
Indeling
- Aantal kamers
- 5 kamers (4 slaapkamers)
- Aantal badkamers
- 1 badkamer en 1 apart toilet
- Badkamervoorzieningen
- Douche, ligbad, en wastafelmeubel
- Aantal woonlagen
- 2 woonlagen en een zolder met een vliering
- Voorzieningen
- Rolluiken en TV kabel
Energie
- Energielabel
- D
- Isolatie
- Dakisolatie, dubbel glas en HR-glas
- Verwarming
- Cv-ketel en gedeeltelijke vloerverwarming
- Warm water
- Cv-ketel
- Cv-ketel
- Vaillant HR (gas gestookt combiketel uit 2008, eigendom)
Kadastrale gegevens
- VELDHOVEN A 4773
- Kadastrale kaart
- Oppervlakte
- 152 m²
- Eigendomssituatie
- Volle eigendom
Buitenruimte
- Ligging
- Aan rustige weg en in woonwijk
- Tuin
- Achtertuin en voortuin
- Achtertuin
- 53 m² (9,00 meter diep en 5,91 meter breed)
- Ligging tuin
- Gelegen op het zuidwesten bereikbaar via achterom
Bergruimte
- Schuur/berging
- Vrijstaande stenen berging
- Voorzieningen
- Elektra
- Isolatie
- Geen isolatie
Parkeergelegenheid
- Soort parkeergelegenheid
- Openbaar parkeren
Foto's 36
Plattegronden 6
© 2001-2025 funda









































