
Omschrijving
In het kort:
- Penthouse met fenomenaal uitzicht,
- Heerlijke lichte woonruimte met industrieel tintje,
- Van alle gemakken voorzien,
- 2 ruime balkons met beplanting,
- Garage en parkeerplaats,
- Treinstation aan de voet van de flat,
- Veluwezoom en winkelhart Velp op loopafstand.
Wat een geweldig uitzicht! Meteen als je de woonruimte binnenloopt op de 12de verdieping, een levend schilderij van Arnhem via Nijmegen en Elten(D) tot aan Doesburg. En aan de achterkant zicht op de groene longen van de Veluwezoom.
Dit verrukkelijke penthouse is van alle gemakken voorzien. In de woonruimte is een verhoogd zitgedeelte om optimaal van het uitzicht te genieten. Daarop vindt u een pantry met stromend water en een koelkast. Eronder 3 grote lades met enorm veel bergruimte en 2 logeerbedden. In de keuken kun je je helemaal uitleven met stoomoven, inductiekookplaat met afzuiging, Quooker, afwasmachine, vriezer en koelkast. Of gewoon even een kant-en-klaartje opwarmen in de magnetron.
Heb je het die dag wel even gehad? Dan lekker bijkomen uit de wind op een van de twee terrassen. Of heerlijk de sauna in, douchen en knus in bed afsluiten met de home-cinema. Slaapkamer alvast voorverwarmd of gekoeld door de airco.
Dagje weg? Met de auto vanuit de eigen garage zo de A12 op, met de trein in 7 minuten in hartje Arnhem of een wandeling naar de Posbank en genieten van de natuur.
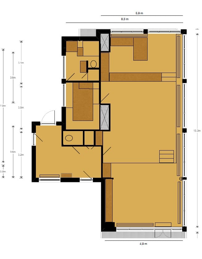
Indeling
- Centrale hal met brievenbussen en intercom.
- Penthouse bereikbaar met een dubbele lift tot de 11de verdieping, daarna een vaste trap naar de 12de, traplift aanwezig.
- Ruime hal met;
- broyeur-toilet;
- deur naar buiten;
- toegang technische ruimte van de lift;
- meterkast met glasvezel-aansluiting;
- vliering.
- Woonruimte (bijna 80m2) bestaande uit:
- zitdeel met pantry bovenop veel bergruimte met 2 logeerbedden,
- eetdeel voor een grote eettafel
- keuken voorzien van alle ingebouwde gemakken;
- verwarming/koeling door warmtepomp (lucht-lucht);
- backup verwarming door radiatoren (blokverwarming);
- 2 aansluitingen voor centraal stofzuigersysteem;
- intercom met camera;
- deur naar terras;
- elektrisch bedienbare screens aan zuid- en oostzijde.
- Slaapkamer met:
- vaste trap naar hoogslaper,
- ingebouwde kledingkasten,
- verwarming/koeling,
- home cinema met projector (ter overname).
- Badkamer met:
- douche;
- toilet;
- sauna;
- spiegel met infrarood-verwarming;
- ruimte voor wasmachine en droger;
- vlizotrap-trap naar ruime vliering met centrale stofzuiger en boiler.
- 1 terras met met grote plantenbakken 18m2, 1 terras met wilde bloemenweide 18 m2.
- Dak met 2 warmtepomp-buitenunits en 16 zonnepanelen.
- Garage en parkeerplaats op eigen terrein flat.
- Voor bewoners toegankelijke grote tuin met speelse indeling en zitjes.
- Fietsenstalling, deels overdekt.
- Algemene recreatieruimte en logeerkamer, beiden te huur,
Bijzonderheden
- Gezonde VVE,
- Actieve bewoners in commissies voor bestuur, bewoners, tuin en duurzaamheid flat,
- Glasbewassingslift aanwezig op terras,
- Hal penthouse recht van over overpad voor VVE (glasbewassing en liftonderhoud),
- Gierzwaluwkastjes onderhouden door vogelvereniging.
Vraag altijd naar de lijst van zaken. De in deze brochure omschreven zaken horen niet altijd bij de woning en gaan soms mee of zijn soms ter overname.
Deze woning is gemeten volgens de Meetinstructie. De Meetinstructie is gebaseerd op de NEN2580. De Meetin-structie is bedoeld om een meer eenduidige manier van meten toe te passen voor het geven van de gebruiks-oppervlakte. De Meetinstructie sluit verschillen in meetuitkomsten niet volledig uit, door bijvoorbeeld interpre-tatieverschillen, afrondingen of beperkingen bij het uitvoeren van de meting.
Hoewel wij de woning met veel zorg en naar eer en geweten hebben opgemeten, kan het zijn dat er verschillen zijn in de afmetingen. De opgegeven maten zijn indicatief, er kunnen kleine verschillen zijn. Afhankelijk van de moeilijkheidsgraad van het te meten specifieke object kunnen deze verschillen groter of kleiner zijn. Indien de exacte maatvoering voor u van belang is, raden wij u aan de maten zelf te (laten) meten.
Alle genoemde jaartallen zijn circa en zuiver indicatief.
Een mondelinge overeenstemming tussen de particuliere verkoper en de particuliere koper is niet rechtsgeldig. Met andere woorden: er is geen koop. Er is pas sprake van een rechtsgeldige koop als de particuliere verkoper en de particuliere koper de koopovereenkomst hebben ondertekend. Dit vloeit voort uit artikel 7:2 Burgerlijk Wetboek. Een bevestiging van de mondelinge overeenstemming per e-mail of een toegestuurd concept van de koopovereenkomst wordt overigens niet gezien als een 'ondertekende koopovereenkomst'.
De koopakte betreft een standaard-NVM koopovereenkomst met een aantal aanvullende artikelen, zoals:
- ouderdomsclausule (bij woningen ouder dan 20 jaar)
- asbestclausule (bij woningen van voor 1993)
- notarisclausule (maximum aan kosten voor verkoper en tijdsbepaling)
- meetclausule (aansprakelijkheid verkoper en makelaar)
- voorbehoud akkoord hypotheekbank verkoper (indien van toepassing)
- niet-bewonersclausule (indien van toepassing)
- overige clausules voor zover van toepassing
Deze informatie is door ons met de nodige zorgvuldigheid samengesteld. Dit geldt voor het opmeten van de ruimten, het geven van jaartallen en het geven van overige informatie. Heeft u twijfels omtrent de juistheid van enig punt dan verzoeken wij u vriendelijk dit aan ons kenbaar te maken. Onzerzijds wordt echter geen enkele aansprakelijkheid aanvaard voor enige onvolledigheid, onjuistheid of anderszins, dan wel de gevolgen daarvan. Eens te meer niet indien de betreffende informatie ouder is, moeilijker te verkrijgen, dan wel voor meerdere interpretaties vatbaar.
Kenmerken
Overdracht
- Laatste vraagprijs
- € 450.000 kosten koper
- Vraagprijs per m²
- € 4.500
- Status
- Verkocht
- Bijdrage VvE
- € 280,50 per maand
Bouw
- Soort appartement
- Penthouse (appartement)
- Soort bouw
- Bestaande bouw
- Bouwjaar
- 1965
- Soort dak
- Plat dak bedekt met bitumineuze dakbedekking
Oppervlakten en inhoud
- Gebruiksoppervlakten
- Wonen
- 100 m²
- Gebouwgebonden buitenruimte
- 39 m²
- Externe bergruimte
- 17 m²
- Inhoud
- 390 m³
Indeling
- Aantal kamers
- 2 kamers (1 slaapkamer)
- Aantal badkamers
- 1 badkamer en 1 apart toilet
- Badkamervoorzieningen
- Sauna, douche, toilet, wastafel, en wastafelmeubel
- Aantal woonlagen
- 1 woonlaag
- Voorzieningen
- Airconditioning, buitenzonwering, domotica, glasvezelkabel, natuurlijke ventilatie, sauna, en zonnepanelen
Energie
- Energielabel
- C
- Isolatie
- Dakisolatie en HR-glas
- Verwarming
- Blokverwarming en warmtepomp
Kadastrale gegevens
- VELP H 3414
- Kadastrale kaart
- Eigendomssituatie
- Volle eigendom
Buitenruimte
- Ligging
- Aan rustige weg en vrij uitzicht
- Balkon/dakterras
- Dakterras aanwezig
Garage
- Soort garage
- Garagebox
- Capaciteit
- 1 auto
- Voorzieningen
- Elektra
VvE checklist
- Inschrijving KvK
- Ja
- Jaarlijkse vergadering
- Ja
- Periodieke bijdrage
- Ja (€ 280,50 per maand)
- Reservefonds aanwezig
- Ja
- Onderhoudsplan
- Ja
- Opstalverzekering
- Ja
Foto's 45
© 2001-2025 funda












































