Dit huis op Funda: https://www.funda.nl/detail/koop/velp-ge/huis-pc-hooftlaan-6/43046157/

Omschrijving
Exclusief, sfeervol landhuis op A-locatie net buiten het centrum van Velp aan de P.C. Hooftlaan.
Een waar pareltje, zo kun je dit charmante, recent intensief gemoderniseerde landhuis uit 1913 noemen.
Het vrijstaande landhuis genaamd "T LANDHUIS AAFFIEN" is gebouwd rond 1913. Het huis heeft een geheel eigen karakter met haar witte gevels, de pyramide kap met leistenen dakleien, luiken en dakkapellen. Een uitbouw aan de achterzijde heeft gezorgd voor ruimte voor een grote woonkeuken.
Er is bij de recente modernisering een flinke inhaalslag gemaakt, de woning is qua afwerking geheel onder handen genomen en het comfort en de energiezuinigheid zijn fors verbeterd. Het huis kan geheel gestoffeerd opgeleverd worden en is met recht instapklaar.
Het landhuis ligt op een ruim perceel met eigen parkeerruimte een diepe, heerlijk vrije achtertuin met volop privacy en zon.
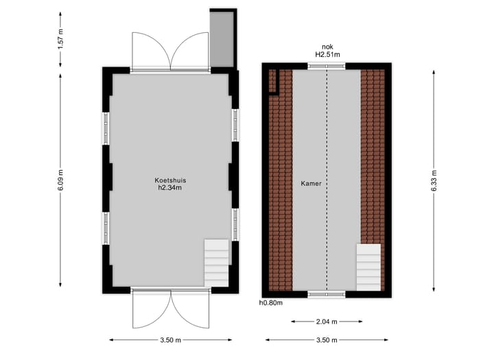
In de tuin bevindt zich een vrijstaand koetshuis, met een garage/bergruimte en werkruimte op de verdieping welke geïsoleerd is en geheel opnieuw ingericht en afgewerkt. Het koetshuis biedt zo een prachtige werk-, of hobbyruimte en indien gewenst mogelijkheid tot een guesthouse.
De locatie in Velp Noord is ideaal te noemen. De P.C. Hooftlaan is bijzonder rustig te noemen en toch bereikt u wandelend binnen 10 minuten zowel de winkels op de Rozendaalselaan en de Hoofdstraat van Velp, als ook het Beekdal van Rozendaal en de nabij gelegen bossen van de Veluwezoom. Aan de overzijde van de laan is een voormalig klooster gelegen met een grote, parkachtige tuin, dit draagt bij aan het groene beeld van dit pittoreske landhuis.
Indeling:
Onderverdieping:
Provisiekelder.
Begane grond:
Entree, royale hal met parketvloer en op maat gemaakte kastenwand, toegang tot wc-ruimte welke in stijl is gemoderniseerd.
De woonkamer met erker met glas in loos ramen ligt aan de voorzijde van de woning en heeft aan drie zijden ramen, waardoor de lichtinval optimaal is. Deze ruimte is eveneens voorzien van een visgraat parketvloer, gestucte wanden, waaronder één wand met een strakke inbouw elektrische haard en ruimte voor uw t.v.
Het zitgedeelte heeft een doorloop naar de uitgebouwde woonkeuken aan achterzijde van de woning.
Ook de woonkeuken is zeer licht en zonnig en heeft door middel van openslaande deuren verbinding met de tuin.
Hier is een Nolte keuken geplaatst met kookeiland met inbouw inductie kookplaat en downdraft afzuigkap. De keuken is daarnaast voorzien van een vaatwasser, stoomoven en koelkast. De tuin is hier ook via de achterdeur te bereiken.
1e Verdieping:
Lichte overloop met dakkapel, twee slaapkamers voorzien van dakkapellen, was/kleedruimte met op maat gemaakte kastenwand. Schitterende badkamer met ovaal vrijstaand bad, inloopdouche, wastafelmeubel met dubbele waskommen en wandcloset.
2e Verdieping:
Vaste trap naar zolderkamer in de nok van het huis. Te gebruiken als slaap-, of werkkamer met mooi vergezicht op de omgeving.
In de fraai aangelegde, diepe tuin zijn een romantisch prieeltje en diverse zon-, en schaduw terrassen te vinden. Door de diepte van de tuin en ontbreken van hoge beplanting rondom de achtertuin is deze uitermate zonnig.
De tuin wordt afgesloten door een gietijzeren poort, de oprit biedt ruimte voor het parkeren van meerdere auto's.
Bijzonderheden:
- Het woonoppervlak is exclusief de werkruimte in het koetshuis;
- CV ketel Remeha 2024;
- Vloerverwarming op de begane grond en in de badkamer;
- Airco in de woonkamer, voorslaapkamer en op de 2e verdieping;
- Airco in het koetshuis;
- 5 zonnepanelen;
- Nieuwe groepenkast;
- Dakisolatie, deels muurisolatie en zo goed geheel isolatieglas;
- Alle vloeren, plafonds en wanden opnieuw afgewerkt;
- Geheel gestoffeerd;
- Bovenruimte van het koetshuis is geïsoleerd, hier is een nieuwe trap aangebracht en wanden en vloeren zijn opnieuw afgewerkt;
- Laadpaal kan in overleg achterblijven.
Uitgebreide info van deze woning kunt u vinden op de unieke, eigen website! Download de brochure op Funda voor de link naar de website waar u alle gegevens en stukken van de woning kunt terugvinden, zoals de lijst van zaken en de vragenlijst. Op deze site kunt u ook uw bod uitbrengen.
Kenmerken
Overdracht
- Laatste vraagprijs
- € 1.040.000 kosten koper
- Vraagprijs per m²
- € 7.704
- Status
- Verkocht
Bouw
- Soort woonhuis
- Landhuis, vrijstaande woning
- Soort bouw
- Bestaande bouw
- Bouwjaar
- 1913
- Specifiek
- Gestoffeerd
- Soort dak
- Tentdak bedekt met leisteen
Oppervlakten en inhoud
- Gebruiksoppervlakten
- Wonen
- 135 m²
- Overige inpandige ruimte
- 11 m²
- Externe bergruimte
- 34 m²
- Perceel
- 600 m²
- Inhoud
- 543 m³
Indeling
- Aantal kamers
- 5 kamers (3 slaapkamers)
- Aantal badkamers
- 1 badkamer en 1 apart toilet
- Badkamervoorzieningen
- Inloopdouche, ligbad, toilet, en wastafelmeubel
- Aantal woonlagen
- 3 woonlagen en een kelder
- Voorzieningen
- Dakraam, rookkanaal, en zonnepanelen
Energie
- Energielabel
- D
- Isolatie
- Dakisolatie, dubbel glas en muurisolatie
- Verwarming
- Cv-ketel en gedeeltelijke vloerverwarming
- Warm water
- Cv-ketel
- Cv-ketel
- Remeha (gas gestookt combiketel uit 2024, eigendom)
Kadastrale gegevens
- VELP GELDERLAND F 1340
- Kadastrale kaart
- Oppervlakte
- 600 m²
- Eigendomssituatie
- Volle eigendom
Buitenruimte
- Ligging
- Aan rustige weg en in woonwijk
- Tuin
- Tuin rondom
Garage
- Soort garage
- Vrijstaande stenen garage
- Capaciteit
- 1 auto
- Voorzieningen
- Elektra
Parkeergelegenheid
- Soort parkeergelegenheid
- Op afgesloten terrein en op eigen terrein
Foto's 61
© 2001-2025 funda




























































