Dit huis op Funda: https://www.funda.nl/detail/koop/velp-ge/huis-reinaldstraat-18/43164911/

Reinaldstraat 186883 HN Velp (GE)Velp-Zuid beneden spoorlijn
€ 585.000 k.k.
Omschrijving
Op een fraaie en centrale locatie in Velp staat dit half vrijstaande herenhuis met karakter aan de Reinaldstraat 18. Dit royale pand biedt niet alleen een charmante uitstraling, maar ook een zee aan mogelijkheden en een unieke kans voor wie een oud herenhuis met modern comfort wil realiseren.
Dit echte kluspand, is bij uitstek geschikt voor een handige koper met verfijnde ideeën en diegene die eigen stempel op het woonplan willen drukken. Met de juiste afwerking biedt dit object volop potentie voor een combinatie van wonen en werken.
Deze totale renovatie zal grotendeels binnen plaatsvinden. Zo heeft verkoper gezamenlijk met de buren reeds het volledig dak opnieuw opgebouwd. Hierbij is het volledige dak met alle aanbouwdelen opnieuw opgebouwd en vervangen. Hierbij zijn het dakbeschot, dakpannen, hoekkepers, balken, goten en alle ramen en kozijnen vervangen. Hierbij is ook gedacht aan het aanbrengen van dakisolatie (rc 6,4), HR++ glas in alle beweegbare kozijnen en triple glas in de nieuwe vaste kozijnen. Ook heeft verkoper een fraaie moderne dakkapel geplaatst met aluminium kozijn. Het dak is voorzien van een extra staal constructie voor de isolatie en alle inwendige staalconstructies zijn ook reeds uitgevoerd. Daarbij zijn ook alle kozijnen op de eerste verdieping en de zolder vernieuwd. Kortom een mooie solide moderne basis die enkel nog in eigen stijl dient te worden afgebouwd.
Bijzonder is dat het object beschikt over een extra perceel van 58 m2 waar 3 eigen parkeerplaatsen, extra buitenplaats of de ontwikkeling tot een schuur kunnen worden gerealiseerd (apart perceelnummer, geen vergunning voor schuur aanwezig). Een waardevol pluspunt, zeker in deze gewilde buurt van Velp.
Locatie & Ligging
Gelegen in een rustige, groene straat nabij het centrum van Velp, profiteer je hier van een uitstekende bereikbaarheid en een prettige woonomgeving. Op loopafstand vind je diverse winkels, supermarkten, horecagelegenheden en scholen. Het treinstation van Velp is binnen enkele minuten te bereiken, net als uitvalswegen richting Arnhem, Nijmegen en de A12.
De Reinaldstraat ligt op de grens van stad en natuur: dichtbij het prachtige Nationaal Park Veluwezoom, maar ook vlak bij alle stedelijke voorzieningen van Arnhem. Een ideale combinatie voor wie centraal én rustig wil wonen en werken.
Kenmerken:
* Halfvrijstaande herenhuis met karakter
* Volledige dak renovatie en isolatie waarbij alles op de spanten na is vervangen met originele materialen en behoud van authenticiteit.
* Fraaie moderne dakkapel.
* Ramen en kozijnen op de eerste verdieping en zolder zijn vernieuwd.
* Alle staalconstructies zijn aangebracht of bestaande vernieuwd,
* Drie eigen parkeerplaatsen op eigen perceel
* Gelegen op een aantrekkelijke locatie in Velp
* Nabij centrum, station en uitvalswegen
* Herenhuis die geheel naar eigen idee en behoefte kan worden ingedeeld en ingericht.
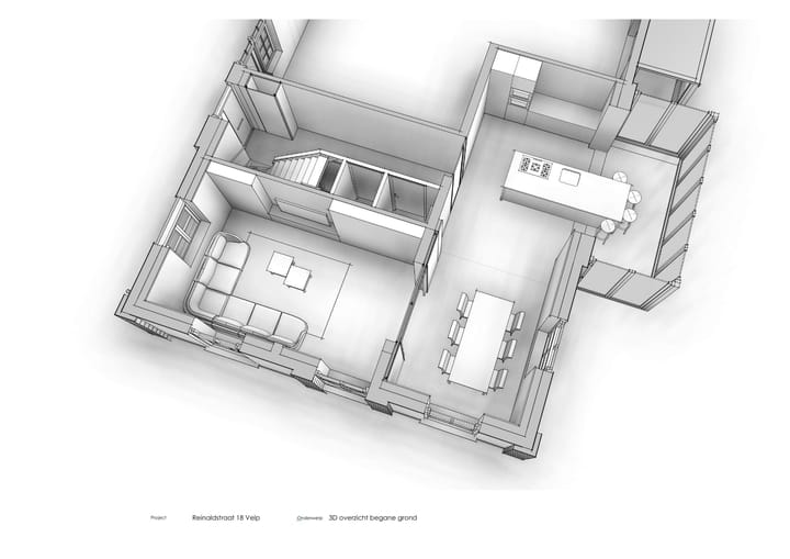
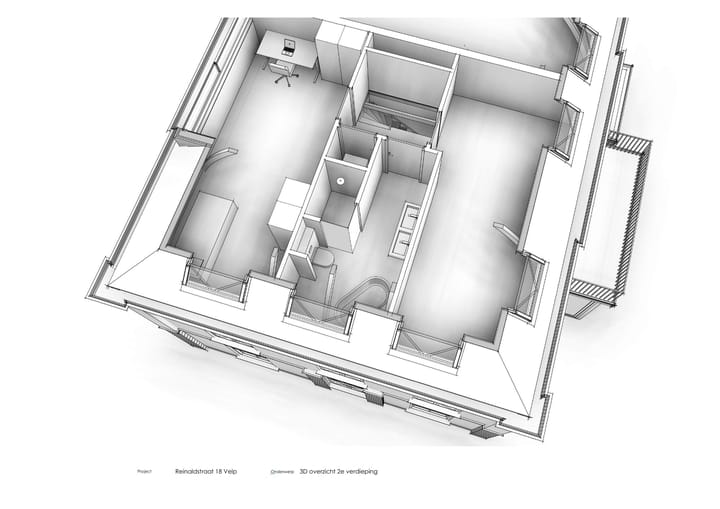
* 3D tekeningen in Revit en Archicad beschikbaar
* Architecten tekeningen voor een concept woonhuis
* Vergunning conform bouwtekeningen voor 3 appartementen (tekeningen en eisen zijn aanwezig).
Kenmerken
Overdracht
- Aangeboden sinds
- Aanvaarding
- In overleg
- Vraagprijs
- € 585.000 kosten koper
- Vraagprijs per m²
- € 2.671
- Status
- Beschikbaar
Bouw
- Bouwjaar
- Voor 1906
- Soort woonhuis
- Herenhuis, halfvrijstaande woning
- Soort bouw
- Bestaande bouw
- Specifiek
- Dubbele bewoning mogelijk en kluswoning
- Soort dak
- Samengesteld dak bedekt met pannen
Oppervlakten en inhoud
- Gebruiksoppervlakten
- Wonen
- 219 m²
- Perceel
- 224 m²
- Inhoud
- 834 m³
Indeling
- Aantal kamers
- 2 kamers
- Aantal woonlagen
- 2 woonlagen
Energie
- Energielabel
- Isolatie
- Dakisolatie en gedeeltelijk dubbel glas
Kadastrale gegevens
- VELP GELDERLAND H 3796
- Kadastrale kaart
- Oppervlakte
- 58 m²
- Eigendomssituatie
- Volle eigendom
- VELP GELDERLAND H 3795
- Kadastrale kaart
- Oppervlakte
- 166 m²
- Eigendomssituatie
- Volle eigendom
Buitenruimte
- Ligging
- Aan rustige weg, in bosrijke omgeving en in woonwijk
- Tuin
- Plaats en voortuin
Garage
- Soort garage
- Parkeerplaats
Parkeergelegenheid
- Soort parkeergelegenheid
- Op eigen terrein en openbaar parkeren
Foto's 74
Plattegronden 5
© 2001-2026 funda














































































