
Meerweidenlaan 31951 BV Velsen-NoordWatervlietbuurt
€ 409.000 k.k.
BlikvangerInstapklare woning met vrij uitzicht & splinternieuwe stenen schuur!
Omschrijving
Instapklare tussenwoning met vrij uitzicht & splinternieuwe stenen schuur!
In het rustige en kindvriendelijke wijk van Velsen-Noord staat deze tot in de puntjes verzorgde tussenwoning klaar voor haar nieuwe bewoners. Met vrij uitzicht aan de voorzijde, een zonnige achtertuin én een nieuwe vrijstaande stenen schuur is dit een woning die je niet wilt missen!
De ligging is ideaal: een groene, rustige woonwijk op korte afstand van wandelparken, scholen en supermarkt. Je loopt zo naar diverse voorzieningen, pakt gemakkelijk de bus of trein richting Beverwijk of Amsterdam, en met de A9 en A22 om de hoek ben je zo onderweg. Zelfs het strand van Wijk aan Zee ligt op fietsafstand — wat wil je nog meer?
Bouwjaar: 1930
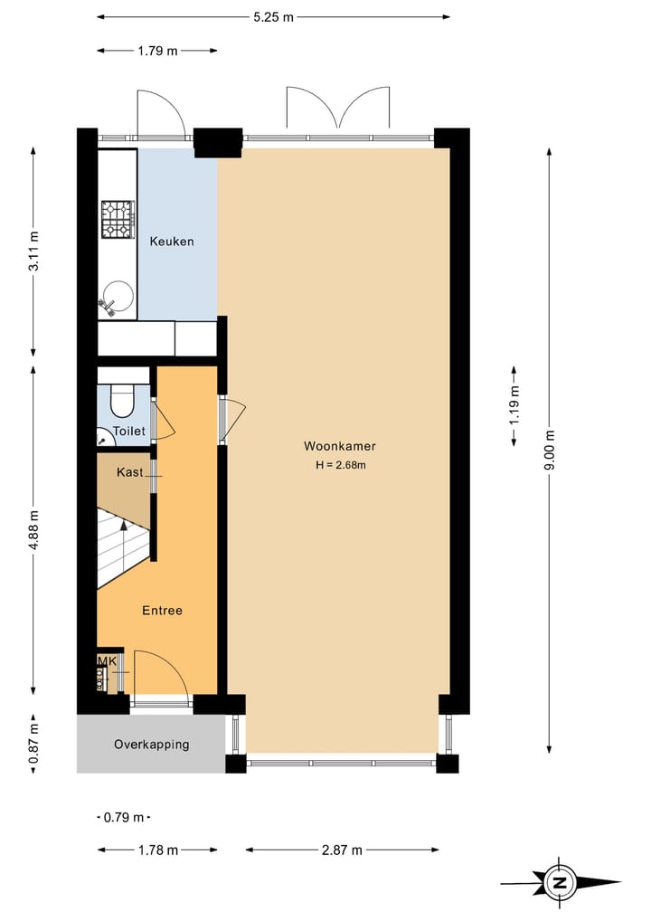
Woonoppervlakte: 113 m²
Vrijstaande stenen berging: 12 m²
Perceeloppervlakte: 120 m²
Indeling:
Begane grond met betonvloer en vloerverwarming!
Entree, hal, meterkast, trapopgang, trapkast, toiletruimte, lichte doorzon woonkamer met echte houten 'leefvloer' en openslaande deuren naar de achtertuin, strak gestuukte wanden en plafond, halfopen keuken voorzien van inbouwapparatuur (deels recent vernieuwd), deur naar achtertuin,
1e Verdieping:
Overloop met separate toiletruimte, drie slaapkamers en badkamer met douchecabine, wastafelmeubel met dubbele kranen, ligbad met jetstreams én raam voor daglicht/ventilatie,
2e verdieping:
Voorzolder met daglicht, opstelling CV-ketel, witgoedaansluitingen, bergruimte en vierde grote slaapkamer met hoge nok en dakkapel.
Buitenruimte:
Voor- en achtertuin. De brede achtertuin is superzonnig gelegen op het westen. overkapping en is achterom via een dubbele poortdeur bereikbaar. Achterin bevindt zich een vrijstaande stenen schuur met elektriciteitsaansluiting.
De buitenruimte bestaat uit een gevarieerde tuin met voor- en achtertuin. De hoofdtuin, die zich aan de achterkant van de woning bevindt, heeft een toegang aan de achterzijde en ligt op het westen, perfect voor de middag- en avondzon. De tuin is van normale kwaliteit en biedt voldoende ruimte om te genieten van het buitenleven. Daarnaast heeft de woning een vrijstaande stenen schuur met elektra en geen isolatie.
Parkeren doe je gemakkelijk op de openbare parkeerplaatsen in de straat. De openbaar vervoervoorzieningen zijn op korte afstand.
Bijzonderheden:
- vrij uitzicht op plantsoen zonder overburen
- rustige straat met ruime parkeermogelijkheden
- schuimbetonvloer begane grond met vloerverwarming
- brede dakkapel (kunststof) achtergevel
- gemoderniseerde toiletruimte en badkamer
- lichte keuken met inbouwapparatuur
- elektrische installatie volledig vernieuwd
- traprenovatie uitgevoerd
- hoge zolderkamer met kunststof dakkapel en dakramen
- buitenschilderwerk in 2024 uitgevoerd
- bestrate voor- en achtertuin
- achtertuin zonovergoten
- nieuwe stenen schuur met dubbel toegangsdeuren naar steeg (motoren/bakfietsen)
- trein- en busstation Beverwijk nabij
- snelle aansluiting op de uitvalswegen A9/A22
Interesse in deze woning?
Schakel direct uw eigen NVM-aankoopmakelaar in. Uw NVM-aankoopmakelaar komt op voor úw belang en bespaart u tijd, geld en zorgen. Adressen van collega NVM-aankoopmakelaars vindt u op Funda.
Kenmerken
Overdracht
- Aangeboden sinds
- Aanvaarding
- In overleg
- Vraagprijs
- € 409.000 kosten koper
- Vraagprijs per m²
- € 3.619
- Status
- Beschikbaar
Bouw
- Soort woonhuis
- Eengezinswoning, tussenwoning
- Soort bouw
- Bestaande bouw
- Bouwjaar
- 1930
- Specifiek
- Gestoffeerd
- Soort dak
- Zadeldak bedekt met pannen
Oppervlakten en inhoud
- Gebruiksoppervlakten
- Wonen
- 113 m²
- Gebouwgebonden buitenruimte
- 2 m²
- Externe bergruimte
- 12 m²
- Perceel
- 120 m²
- Inhoud
- 400 m³
Indeling
- Aantal kamers
- 5 kamers (4 slaapkamers)
- Aantal badkamers
- 1 badkamer en 2 aparte toiletten
- Badkamervoorzieningen
- Douche, ligbad, wastafelmeubel, en whirlpool
- Aantal woonlagen
- 3 woonlagen
- Voorzieningen
- Glasvezelkabel
Energie
- Energielabel
- C
- Isolatie
- Dakisolatie, dubbel glas, HR-glas en vloerisolatie
- Verwarming
- Cv-ketel en gedeeltelijke vloerverwarming
- Warm water
- Cv-ketel
- Cv-ketel
- Remeha Avanta CW4 (gas gestookt combiketel uit 2007, eigendom)
Kadastrale gegevens
- VELSEN B 3003
- Kadastrale kaart
- Oppervlakte
- 120 m²
- Eigendomssituatie
- Volle eigendom
Buitenruimte
- Ligging
- Aan rustige weg, in woonwijk en vrij uitzicht
- Tuin
- Achtertuin en voortuin
- Achtertuin
- 53 m² (9,00 meter diep en 5,85 meter breed)
- Ligging tuin
- Gelegen op het westen bereikbaar via achterom
Bergruimte
- Schuur/berging
- Vrijstaande stenen berging
- Voorzieningen
- Elektra
- Isolatie
- Geen isolatie
Parkeergelegenheid
- Soort parkeergelegenheid
- Openbaar parkeren
Foto's 54
Plattegronden 5
© 2001-2025 funda


























































