
Omschrijving
Hoekwoning met 'gouden kranen'.
Instapklare leuke hoekwoning aan de Wijkerstraatweg in Velsen-Noord. In 1922 gebouwd en recent gemoderniseerd met de perfecte mix van klassieke charme (kamer-en-suite) en moderne gemakken (o.a. strak gestuukt, keuken, toiletruimte en badkamer). De woning heeft lichte leefruimtes, een zonnige tuin en een gunstige ligging nabij alle voorzieningen.
Bouwjaar: 1922
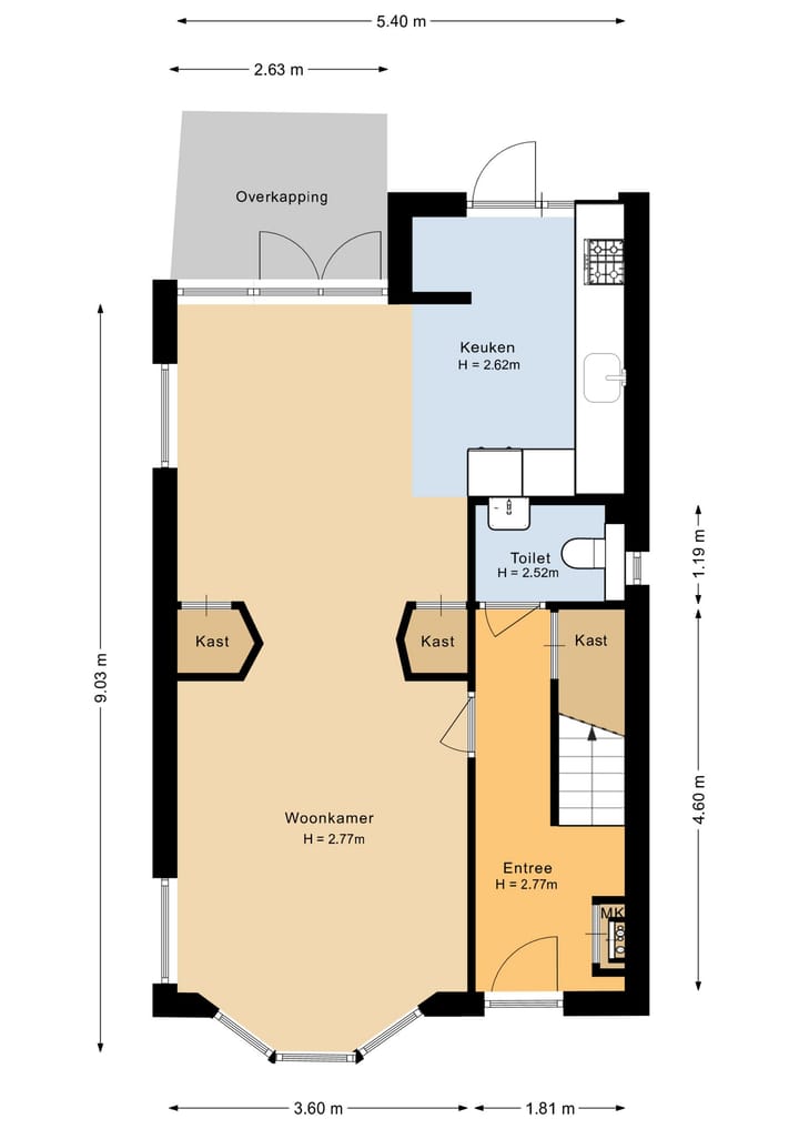
Woonoppervlakte: 100 m²
Overkapping: 6 m²
Vrijstaande berging: 5 m²
Perceeloppervlakte: 124 m²
Indeling:
Entree, hal, sfeervolle kamer-en-suite woonkamer met veel lichtinval en ruimte voor een royale zit- en eethoek. Eetkamer met dubbele tuindeuren en moderne halfopen keuken in de uitbouw,
1e Verdieping:
Overloop met lichtkoepel, drie slaapkamers en een plaatje van een badkamer met inloopdouche, toilet, wastafelmeubel, raam voor daglicht/ventilatie én 'gouden kranen''.
Buitenruimte:
Bestrate voor- en achtertuin. De brede achtertuin is gelegen op het zuidoosten, heeft een gezellige overkapping en is achterom via een dubbele poortdeur bereikbaar. Achterin bevindt zich een vrijstaande stenen schuur met elektriciteitsaansluiting.
Bijzonderheden:
- hoekwoning met fraaie erker
- sfeervolle kamer-en-suite
- twee extra zijgevelramen
- geen directe overburen
- uitbouw met moderne keuken
- gemoderniseerde toiletruimte
- overloop met lichtkoepel
- plaatje van een badkamer
- gemoderniseerd toiletruimte
- traprenovatie uitgevoerd
- HR++ glas en kruipruimte-isolatie
- nieuwe CV ketel in 2023 geplaatst (eigendom)
- zonnige achtertuin op het zuidoosten
- dubbele poortdeuren voor toegang motor (of zelfs auto)
- nostalgische overkapping
- op loopafstand van station Beverwijk
- op fietsafstand van Wijk aan Zee
- nabij het centrum van Beverwijk
- openbare parkeergelegenheid rondom
- elektrische laadpaal op korte afstand
- voor natuurliefhebbers zijn er meerdere wandelparken in de buurt
- forenzen zijn met de A9/A22 binnen 2 minuten onderweg
Interesse in deze woning?
Schakel direct uw eigen NVM-aankoopmakelaar in. Uw NVM-aankoopmakelaar komt op voor úw belang en bespaart u tijd, geld en zorgen. Adressen van collega NVM-aankoopmakelaars vindt u op Funda.
Kenmerken
Overdracht
- Laatste vraagprijs
- € 369.000 kosten koper
- Vraagprijs per m²
- € 3.690
- Status
- Verkocht
Bouw
- Soort woonhuis
- Eengezinswoning, hoekwoning
- Soort bouw
- Bestaande bouw
- Bouwjaar
- 1922
- Specifiek
- Gedeeltelijk gestoffeerd
- Soort dak
- Plat dak bedekt met bitumineuze dakbedekking
Oppervlakten en inhoud
- Gebruiksoppervlakten
- Wonen
- 100 m²
- Gebouwgebonden buitenruimte
- 6 m²
- Externe bergruimte
- 5 m²
- Perceel
- 124 m²
- Inhoud
- 350 m³
Indeling
- Aantal kamers
- 4 kamers (3 slaapkamers)
- Aantal badkamers
- 1 badkamer en 1 apart toilet
- Badkamervoorzieningen
- Inloopdouche, toilet, wastafel, en wastafelmeubel
- Aantal woonlagen
- 2 woonlagen
- Voorzieningen
- Mechanische ventilatie, natuurlijke ventilatie, en TV kabel
Energie
- Energielabel
- Isolatie
- Dakisolatie, dubbel glas en HR-glas
- Verwarming
- Cv-ketel
- Warm water
- Cv-ketel
- Cv-ketel
- Remeha Tzerra CW4 (gas gestookt combiketel uit 2023, eigendom)
Kadastrale gegevens
- VELSEN B 4256
- Kadastrale kaart
- Oppervlakte
- 124 m²
- Eigendomssituatie
- Volle eigendom
Buitenruimte
- Tuin
- Achtertuin en voortuin
- Achtertuin
- 41 m² (7,00 meter diep en 5,90 meter breed)
- Ligging tuin
- Gelegen op het zuidoosten bereikbaar via achterom
Bergruimte
- Schuur/berging
- Vrijstaande stenen berging
- Voorzieningen
- Elektra
- Isolatie
- Geen isolatie
Parkeergelegenheid
- Soort parkeergelegenheid
- Openbaar parkeren
Foto's 54
© 2001-2026 funda





















































