Dit huis op Funda: https://www.funda.nl/detail/koop/velserbroek/huis-engels-gras-64/43642572/

Omschrijving
Op één van de mooiste locaties in Velserbroek, met uitzicht over de Slaperdijk, gelegen ruime gezinswoning met carport en parkeergelegenheid op eigen terrein en prachtig, zonnige tuin met vrij uitzicht aan de achterzijde!
Heerlijk rustig aan de voorzijde, zonder doorgaand verkeer en aan de achterzijde gelegen aan waterpartij, weiland én met uitzicht op de Santpoortse molen.
Deze woning heeft alles wat je zoekt: een ruime, lichte en opvallend brede woonkamer, een complete, brede keuken, 4 goede slaapkamers en moderne badkamer. Bovendien een royaal, zonnig dakterras op de 2e etage.
Kortom een zó te betrekken, goed onderhouden woning op een unieke locatie welke beslist moet worden gezien voor de juiste indruk!
Gunstige ligging ten opzichte van scholen (Velserbroek en Santpoort), bos, duinen, strand, recreatiegebieden Westbroekplas en Spaarnwoude, dorpscentrum van Santpoort, winkelcentrum van Velserbroek en openbaar vervoer met uitstekende (snelle) verbindingen met onder andere het stadscentrum van Haarlem en Amsterdam.
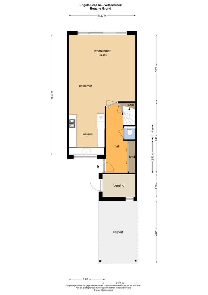
INDELING:
Parterre: parkeerplaats met carport; stenen schuur; uitgebouwde entree; ruime hal voorzien van schuifkastenwand; uitgebreide elektra groepenkast; modern toilet; trapkast; lichte, tuingerichte woonkamer met schuifpui naar de achtertuin; grote hoekopgestelde keuken aan de voorzijde met composiet aanrecht, 5-pits gaskookplaat, afzuigkap, koelkast, vriezer, magnetron, oven en vaatwasser.
1e verdieping: overloop met grote vaste kast; 2 slaapkamers aan de achterzijde; 3e slaapkamer aan de voorzijde; moderne badkamer met inloopdouche, wastafelmeubel, 2e toilet en handdoekradiator.
2e verdieping: overloop; wasruimte met opstelling van wasmachine/droger en CV-ketel; slaapkamer met toegang tot het dakterras met prachtig vrij uitzicht!
Bijzonderheden:
- prachtige ligging aan de buitenrand van Velserbroek
- Santpoort Noord en Haarlem op steenworp afstand
- verwarming en warm water middels CV
- elektra 10 groepen met aardlekschakelaar
- glasvezel
- voor indeling en afmetingen: zie de plattegronden
- aanvaarding in overleg
Kenmerken
Overdracht
- Laatste vraagprijs
- € 559.000 kosten koper
- Vraagprijs per m²
- € 4.658
- Status
- Verkocht
Bouw
- Soort woonhuis
- Eengezinswoning, tussenwoning
- Soort bouw
- Bestaande bouw
- Bouwjaar
- 1991
- Soort dak
- Plat dak
Oppervlakten en inhoud
- Gebruiksoppervlakten
- Wonen
- 120 m²
- Overige inpandige ruimte
- 5 m²
- Gebouwgebonden buitenruimte
- 20 m²
- Perceel
- 154 m²
- Inhoud
- 433 m³
Indeling
- Aantal kamers
- 5 kamers (4 slaapkamers)
- Aantal badkamers
- 1 badkamer en 1 apart toilet
- Badkamervoorzieningen
- Inloopdouche, toilet, en wastafelmeubel
- Aantal woonlagen
- 3 woonlagen
- Voorzieningen
- Buitenzonwering, glasvezelkabel, mechanische ventilatie, en TV kabel
Energie
- Energielabel
- B
- Isolatie
- Dakisolatie, dubbel glas en muurisolatie
- Verwarming
- Cv-ketel
- Warm water
- Cv-ketel
- Cv-ketel
- Daalderop ( combiketel uit 2007)
Kadastrale gegevens
- VELSEN P 2132
- Kadastrale kaart
- Oppervlakte
- 154 m²
- Eigendomssituatie
- Volle eigendom
Buitenruimte
- Ligging
- Aan rustige weg, in woonwijk en vrij uitzicht
- Tuin
- Achtertuin en voortuin
- Achtertuin
- 55 m² (10,06 meter diep en 5,51 meter breed)
- Ligging tuin
- Gelegen op het zuidwesten
- Balkon/dakterras
- Dakterras aanwezig
Bergruimte
- Schuur/berging
- Aangebouwde stenen berging
Garage
- Soort garage
- Carport
Parkeergelegenheid
- Soort parkeergelegenheid
- Op eigen terrein en openbaar parkeren
Foto's 46
© 2001-2025 funda













































