Dit huis op Funda: https://www.funda.nl/detail/koop/venlo/huis-jade-1/43811974/

Omschrijving
Ruime en perfect onderhouden hoekwoning met onder andere 5 slaapkamers en een garage!
In deze woning komen ruimte, comfort en duurzaamheid samen. Met maar liefst 5 slaapkamers, een zeer lichte woonkamer met open keuken en een volledig omheinde achtertuin met garage biedt deze woning veel ruimte. Op de eigen oprit is plek voor 1 auto.
De woning is verduurzaamd met 11 zonnepanelen, 2 airco's en vloerverwarming over de gehele begane grond.
Begane grond
De gehele begane grond is voorzien van een tegelvloer mét vloerverwarming (m.u.v. het toilet). In de hal is de meterkast aanwezig. Vanuit de hal is de woonkamer bereikbaar.
De woonkamer is ruim (ca. 31m²) en zeer licht door de grote raam aan de voorzijde. In de woonkamer hangt de 1ste airco. De trapkast zorgt voor veel opbergruimte. Openslaande deuren, met daarnaast een loopdeur, bieden toegang tot de achtertuin. In de open keuken (ca. 5m²) zijn een 4-pits gaskookplaat, afzuigkap, koelkast en vaatwasser aanwezig.
Het tussenportaal in de woonkamer biedt toegang tot het toilet met fonteintje en de 1ste verdieping door middel van de trapopgang.
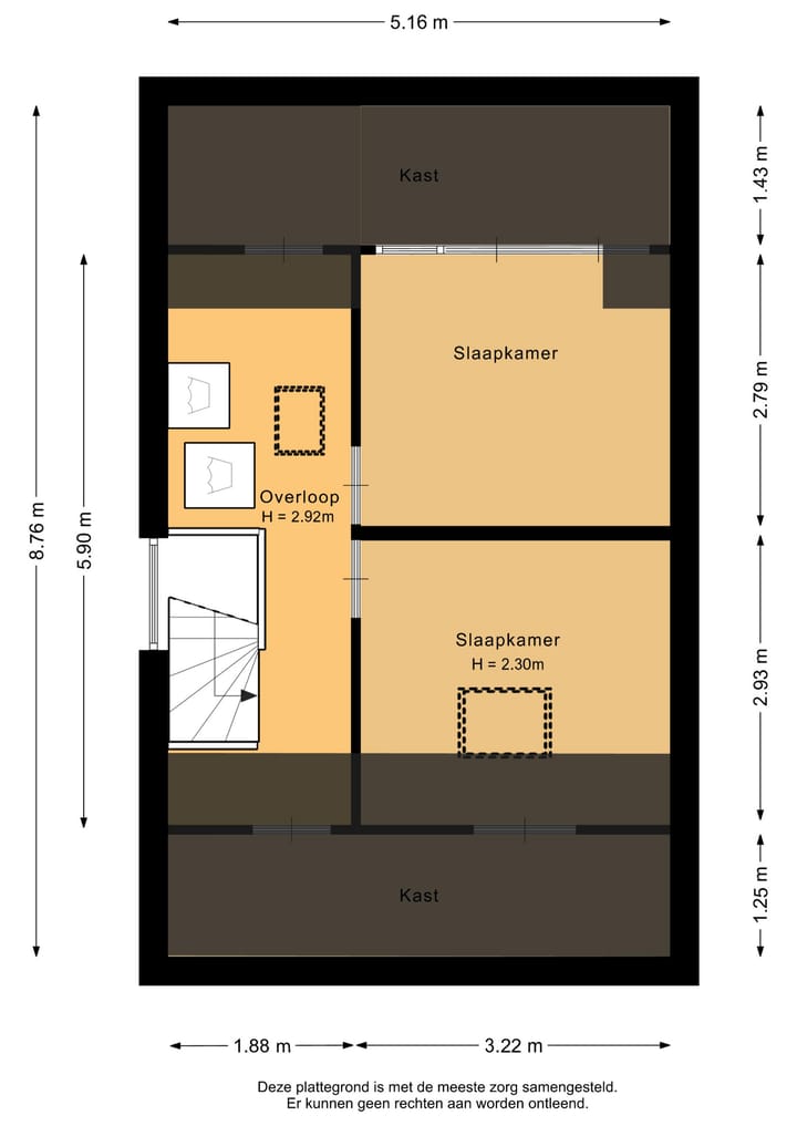
1ste verdieping
Op de overloop is een ruime bergkast met de cv-ketel aanwezig. Vanuit de overloop zijn de 3 slaapkamers en de badkamer bereikbaar.
Alle slaapkamers (ca. 6,5m², 12m² en 13,5m²) zijn voorzien van vloerbedekking. De volledig betegelde badkamer (ca. 5m²) is uitgerust met een ligbad met douche, toilet en wastafel. Het raam zorgt voor daglicht en tevens natuurlijke ventilatie.
2de verdieping
De tweede verdieping is bereikbaar door middel van een vaste trap. Op de overloop hangt de 2de airco. Hier bevinden zich ook de witgoedaansluiting en een klein dakraam. Vanuit de overloop zijn de 2 slaapkamers toegankelijk.
Beide slaapkamers zijn voorzien van vloerbedekking en veel bergruimte onder het schuine dak. Eén slaapkamer (ca. 8m²) heeft een grote dakkapel en de andere slaapkamer (ca. 7m²) heeft een Velux dakraam met verduisterend gordijn.
Tuin
De geheel omheinde achtertuin is verrassend ruim en voorzien van een vrije achterom. Aan de achtergevel hangt zonnescherm (handmatig te bedienen).
De aangebouwde stenen garage is bereikbaar door middel van een loopdeur vanuit de tuin. De garage biedt plek voor 1 auto en is voorzien van een stalen kantelpoort met loopdeur naar de oprit, elektra, verwarming en een lichtkoepel.
Op de oprit is plek voor 1 auto.
Bijzonderheden
- 11 zonnepanelen.
- Airco in de woonkamer en op de overloop van de 2de verdieping.
- Houten kozijnen met dubbel glas.
- Deels rolluiken en horren.
- Het laadpunt op de oprit is ter overname.
Kenmerken
Overdracht
- Laatste vraagprijs
- € 400.000 kosten koper
- Vraagprijs per m²
- € 3.448
- Status
- Verkocht
Bouw
- Soort woonhuis
- Eengezinswoning, hoekwoning
- Soort bouw
- Bestaande bouw
- Bouwjaar
- 1999
- Soort dak
- Zadeldak bedekt met pannen
Oppervlakten en inhoud
- Gebruiksoppervlakten
- Wonen
- 116 m²
- Overige inpandige ruimte
- 18 m²
- Perceel
- 223 m²
- Inhoud
- 457 m³
Indeling
- Aantal kamers
- 6 kamers (5 slaapkamers)
- Aantal badkamers
- 1 badkamer en 1 apart toilet
- Badkamervoorzieningen
- Douche, ligbad, toilet, en wastafel
- Aantal woonlagen
- 3 woonlagen
- Voorzieningen
- Airconditioning, buitenzonwering, dakraam, rolluiken, en zonnepanelen
Energie
- Energielabel
- A
- Isolatie
- Dubbel glas
- Verwarming
- Cv-ketel
- Warm water
- Cv-ketel
- Cv-ketel
- Gas gestookt combiketel uit 2012, eigendom
Kadastrale gegevens
- VENLO H 6528
- Kadastrale kaart
- Oppervlakte
- 223 m²
- Eigendomssituatie
- Volle eigendom
Buitenruimte
- Ligging
- Aan rustige weg en in woonwijk
- Tuin
- Achtertuin en voortuin
- Achtertuin
- 108 m² (13,50 meter diep en 8,00 meter breed)
- Ligging tuin
- Gelegen op het noordwesten bereikbaar via achterom
Garage
- Soort garage
- Aangebouwde stenen garage
- Capaciteit
- 1 auto
- Voorzieningen
- Elektra en verwarming
Parkeergelegenheid
- Soort parkeergelegenheid
- Op eigen terrein
Foto's 36
© 2001-2025 funda



































