Dit huis op Funda: https://www.funda.nl/detail/koop/venlo/huis-kapelaan-nausstraat-35/89572894/

Omschrijving
Fijne tussenwoning met achtertuin op het zuiden, vier slaapkamers en een kindvriendelijke ligging!
In een rustige en kindvriendelijke woonwijk ligt deze goed onderhouden tussenwoning, direct tegenover een speelveld – ideaal voor gezinnen! De woning biedt een lichte woonkamer met open keuken en openslaande deuren naar de tuin, waardoor binnen en buiten mooi in elkaar overlopen.
De woning heeft drie slaapkamers op de eerste verdieping en een extra kamer op de tweede verdieping. Dankzij de airco in de woonkamer en op de overloop van de eerste verdieping is het ook op warme dagen heerlijk comfortabel. De achtertuin op het zuiden met vrije achterom maakt het woongenot compleet.
Een ideale gezinswoning op een fijne plek. Het centrum van Venlo ligt op slechts 10 minuten fietsafstand!
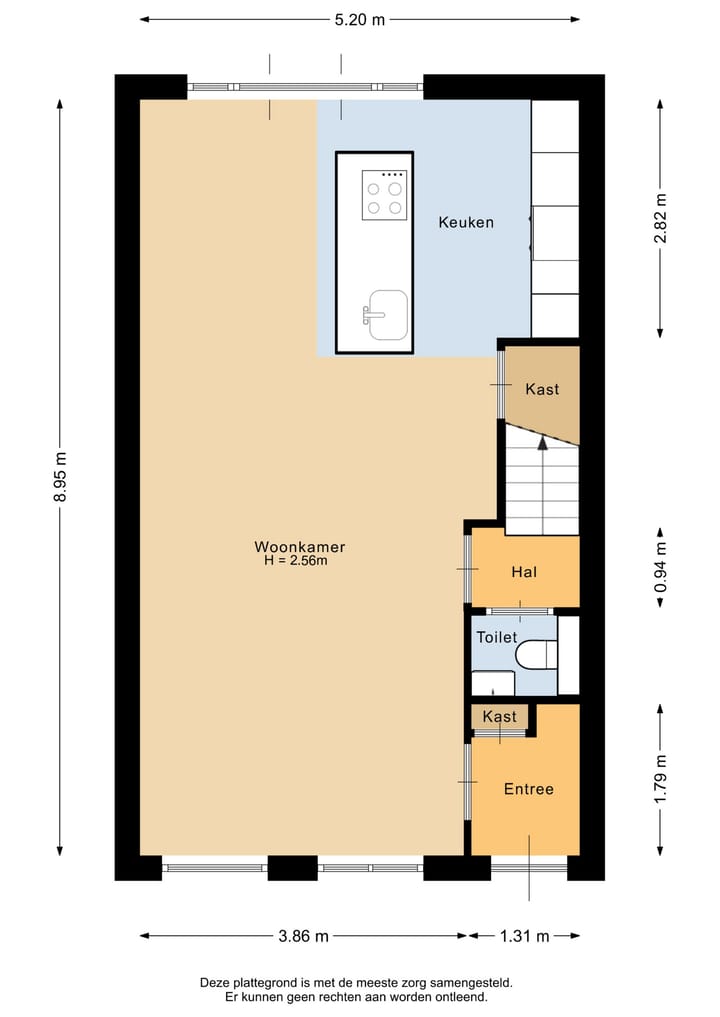
Begane grond
De begane grond is voorzien van een doorlopende pvc-vloer. In de hal is de meterkast aanwezig.
De ruime woonkamer heeft airco en is voorzien van een trapkast. Het afgesloten portaal biedt toegang tot het toilet (2024) met fonteintje en de eerste verdieping. Openslaande deuren (2023) bieden toegang tot de tuin.
In de open keuken (2022) zijn een koelkast, diepvries, vaatwasser, combi oven/magnetron en kook- en spoeleiland met een inductiekookplaat met geïntegreerde afzuiging aanwezig. De keuken heeft veel bergruimte door alle kasten rondom en de grote apothekerskast.
Eerste verdieping
Op de overloop hangt een airco. De laminaatvloer loopt door in de slaapkamers.
Twee van de drie slaapkamers zijn voorzien van een dakraam met screen. De grootste slaapkamer heeft een dakkapel.
In de badkamer is ook een dakraam met screen aanwezig. Verder is de badkamer uitgerust met een ligbad met douche, wastafelmeubel, designradiator en witgoedaansluiting. De afzuiging is recent vernieuwd.
Tweede verdieping
De tweede verdieping is bereikbaar door middel van een vaste trap. Hier bevindt zich de vierde slaapkamer.
De slaapkamer is voorzien van een laminaatvloer, een dakkapel met rolluik, veel bergruimte, de cv-ketel en de tweede witgoedaansluiting.
Tuin
De achtertuin is volledig omheind. Je geniet er van veel rust en privacy. Achterin de tuin staat een overkapping die plek biedt voor bijvoorbeeld fietsen. Hier is tevens de vrije achterom aanwezig.
Bijzonderheden
- Airco in de woonkamer en op de overloop van de eerste verdieping. Deze kunnen koelen én verwarmen.
- Kunststof en houten kozijnen met dubbel glas.
- Deels voorzien van rolluiken. De rolluiken aan de voorzijde zijn van 2024.
Kenmerken
Overdracht
- Aangeboden sinds
- Aanvaarding
- In overleg
- Vraagprijs
- € 339.500 kosten koper
- Vraagprijs per m²
- € 3.464
- Status
- Onder bod
Bouw
- Soort woonhuis
- Eengezinswoning, tussenwoning
- Soort bouw
- Bestaande bouw
- Bouwjaar
- 1992
- Soort dak
- Zadeldak bedekt met pannen
Oppervlakten en inhoud
- Gebruiksoppervlakten
- Wonen
- 98 m²
- Externe bergruimte
- 17 m²
- Perceel
- 140 m²
- Inhoud
- 338 m³
Indeling
- Aantal kamers
- 5 kamers (4 slaapkamers)
- Aantal badkamers
- 1 badkamer en 1 apart toilet
- Badkamervoorzieningen
- Douche, ligbad, en wastafelmeubel
- Aantal woonlagen
- 3 woonlagen
- Voorzieningen
- Airconditioning, dakraam, mechanische ventilatie, en rolluiken
Energie
- Energielabel
- B
- Isolatie
- Dakisolatie en dubbel glas
- Verwarming
- Cv-ketel
- Warm water
- Cv-ketel
- Cv-ketel
- Nefit (gas gestookt combiketel uit 2013, eigendom)
Kadastrale gegevens
- VENLO F 3026
- Kadastrale kaart
- Oppervlakte
- 140 m²
- Eigendomssituatie
- Volle eigendom
Buitenruimte
- Ligging
- Aan bosrand, aan rustige weg en in woonwijk
- Tuin
- Achtertuin en voortuin
- Achtertuin
- 69 m² (12,50 meter diep en 5,50 meter breed)
- Ligging tuin
- Gelegen op het zuiden bereikbaar via achterom
Parkeergelegenheid
- Soort parkeergelegenheid
- Openbaar parkeren
Foto's 29
© 2001-2025 funda




























