
Omschrijving
Comfortabel 4-kamer appartement met balkon op het westen | Centraal wonen in Alkmaar-Zuid
Heel soms komt er in deze straat een appartement in de verkoop welke gelegen is op de eerste verdieping. En dit is er zo één!
Ben je op zoek naar een verzorgd appartement met een praktische indeling, veel lichtinval én alle voorzieningen binnen handbereik? Dan is deze woning absoluut een bezichtiging waard.
Dit nette 4-kamer appartement van ca. 67 m² is ideaal voor starters, jonge gezinnen of doorstromers die graag centraal wonen, maar toch rust en privacy willen. Met winkels, scholen, sportvoorzieningen en het stadspark Oosterhout om de hoek, en de gezellige binnenstad van Alkmaar op korte fietsafstand, woon je hier op een superhandige locatie. Bovendien rijd je met de auto binnen een minuut de A9 of ring-Alkmaar op. Perfect voor forenzen richting Haarlem, Amsterdam of Schiphol.
Pluspunten op een rij:
- Gelegen op de eerste verdieping van een langgerekt appartementencomplex op eigen grond
- Zonnig balkon op het westen; genieten van middag- en avondzon
- Twee slaapkamers + een slaap-/werkkamer van ca. 5 m²
- Kunststof kozijnen voorzien van HR-glas
- Ruime eigen (fietsen)berging op de begane grond
- Actieve en professioneel beheerde VvE; lage servicekosten
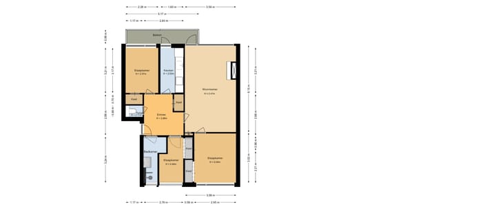
Indeling:
Begane grond: afgesloten entree met intercominstallatie, centrale hal en toegang tot de privéberging.
Eerste verdieping: via het trappenhuis bereik je de entree van het appartement.
De centrale hal geeft toegang tot een nette badkamer (met inloopdouche, wastafel en opbergmeubel) en tot een separaat toilet. Daarnaast leidt de hal naar twee van de drie slaapkamers, welke voorzien zijn van vaste kasten.
De woonkamer vangt veel buitenlicht en is ca. 21 m² groot. Waardoor er voldoende ruimte is voor een gezellige zit- en eethoek.
De dichte keuken tenslotte is functioneel en biedt toegang tot het op 't westen gesitueerde balkon.
Bijzonderheden:
Laminaatvloer (2023) door gehele appartement
Servicekosten: € 125,21
Centrale ligging met winkels, scholen, sportvoorzieningen en openbaar vervoer in de directe omgeving
Niet-zelfbewoningsclausule van toepassing
Verkoop geschiedt onder voorbehoud gunning verkoper
Benieuwd of dit jouw nieuwe thuis kan worden? Maak dan snel een afspraak voor een vrijblijvende bezichtiging en ervaar zelf het comfort en de fijne ligging van Huibert Pootlaan 190!
Hoewel de grootst mogelijke zorgvuldigheid is betracht bij het opstellen van deze tekst, in combinatie met de bijbehorende foto's en plattegrond(en), kunnen hier geen rechten aan worden ontleend.
Vraag altijd naar de lijst van zaken; niet alle in de brochure genoemde items behoren standaard tot de woning.
Deze woning is gemeten volgens de Meetinstructie. De Meetinstructie is gebaseerd op de NEN2580. De Meetinstructie is bedoeld om een meer eenduidige manier van meten toe te passen voor het geven van de gebruiks-oppervlakte. De Meetinstructie sluit verschillen in meetuitkomsten niet volledig uit, door bijvoorbeeld interpretatieverschillen, afrondingen of beperkingen bij het uitvoeren van de meting.
Hoewel wij de woning met veel zorg en naar eer en geweten hebben opgemeten, kan het zijn dat er verschillen zijn in de afmetingen. De opgegeven maten zijn indicatief, er kunnen kleine verschillen zijn. Afhankelijk van de moeilijkheidsgraad van het te meten specifieke object kunnen deze verschillen groter of kleiner zijn. Indien de exacte maatvoering voor u van belang is, raden wij u aan de maten zelf te (laten) meten.
Alle genoemde jaartallen zijn bij benadering en indicatief.
De NVM-koopakte bevat (indien van toepassing) aanvullende clausules zoals de ouderdoms-, asbest-, meet- en niet-bewonersclausule, alsmede een voorbehoud van akkoord van de hypotheekverstrekker van verkoper.
Hoewel deze informatie met zorg is samengesteld, aanvaarden wij geen aansprakelijkheid voor onjuistheden, onvolledigheden of de gevolgen daarvan.
Kenmerken
Overdracht
- Laatste vraagprijs
- € 283.500 kosten koper
- Vraagprijs per m²
- € 4.231
- Status
- Verkocht
- Bijdrage VvE
- € 125,21 per maand
Bouw
- Soort appartement
- Portiekflat (appartement)
- Soort bouw
- Bestaande bouw
- Bouwjaar
- 1964
- Soort dak
- Plat dak bedekt met bitumineuze dakbedekking
Oppervlakten en inhoud
- Gebruiksoppervlakten
- Wonen
- 67 m²
- Gebouwgebonden buitenruimte
- 5 m²
- Externe bergruimte
- 8 m²
- Inhoud
- 200 m³
Indeling
- Aantal kamers
- 4 kamers (3 slaapkamers)
- Aantal badkamers
- 1 badkamer en 1 apart toilet
- Badkamervoorzieningen
- Douche en wastafel
- Aantal woonlagen
- 1 woonlaag
- Voorzieningen
- Natuurlijke ventilatie en TV kabel
Energie
- Energielabel
- D
- Isolatie
- Dubbel glas en HR-glas
- Verwarming
- Cv-ketel
- Warm water
- Cv-ketel
- Cv-ketel
- Remeha (gas gestookt combiketel uit 2006, eigendom)
Kadastrale gegevens
- ALKMAAR F 5728
- Kadastrale kaart
- Eigendomssituatie
- Volle eigendom
Buitenruimte
- Ligging
- In woonwijk en vrij uitzicht
- Balkon/dakterras
- Balkon aanwezig
Bergruimte
- Schuur/berging
- Inpandig
- Voorzieningen
- Elektra en stromend water
Parkeergelegenheid
- Soort parkeergelegenheid
- Openbaar parkeren
VvE checklist
- Inschrijving KvK
- Ja
- Jaarlijkse vergadering
- Ja
- Periodieke bijdrage
- Ja (€ 125,21 per maand)
- Reservefonds aanwezig
- Ja
- Onderhoudsplan
- Ja
- Opstalverzekering
- Ja
Foto's 27
© 2001-2025 funda


























