
Omschrijving
Ruime gezinswoning met vrij uitzicht en volop potentie
Ben jij niet bang om de handen uit de mouwen te steken?
En droom je van een ruime woning op een rustige plek in Alkmaar, met uitzicht op groen en alle voorzieningen in de buurt? Dan is Blanckerhofweg 8 jouw kans om van een huis een écht thuis te maken.
Deze tussenwoning uit 1960 heeft een woonoppervlakte van maar liefst 121 m², beschikt over vier slaapkamers, een balkon op het zuiden en een vrij uitzicht op een park en speelveld aan de overzijde.
De woning is gedateerd en verdient een nieuwe eigenaar die het potentieel ziet – en het karakter van deze woning nieuw leven in wil blazen.
Ligging: groen en kindvriendelijk
De woning ligt in een rustige, groene straat met vrij uitzicht aan de voorzijde. Ideaal voor gezinnen: er is een speelveld en park direct voor de deur, waar kinderen veilig kunnen spelen en jij kunt genieten van rust en ruimte.
Winkels, scholen en het centrum van Alkmaar zijn op korte afstand bereikbaar, net als uitvalswegen richting de ring en snelweg.
Indeling
Via de entree kom je in de hal met meterkast, toilet en trapopgang. De ruime doorzonwoonkamer biedt veel lichtinval dankzij de grote raampartijen aan beide zijden. Aan de achterzijde bevindt zich de eenvoudige keuken met toegang tot de achtertuin.
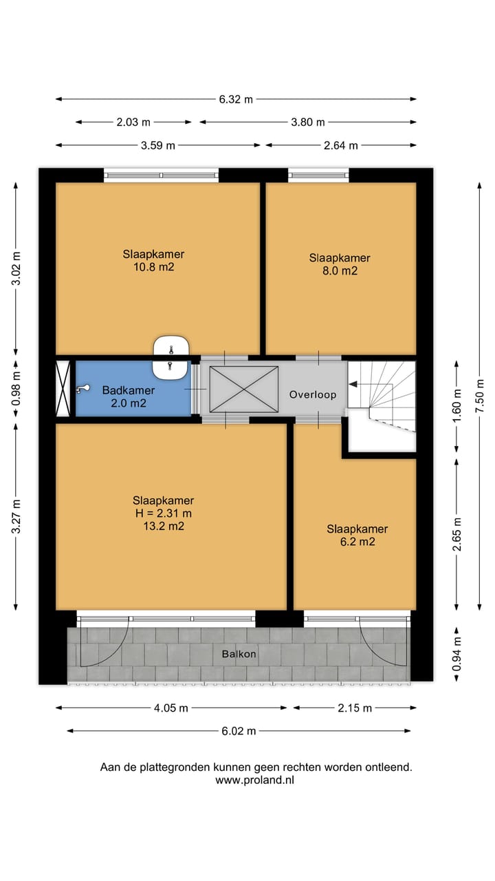
Op de eerste verdieping zijn vier slaapkamers en een badkamer te vinden. De slaapkamers aan de voorzijde hebben toegang tot een heerlijk balkon op het zuiden – een fijne plek voor een kop koffie in de zon. De tweede verdieping is een ruime zolder met veel bergruimte.
Kenmerken op een rij:
• Woonoppervlakte: ca. 121 m²
• Bouwjaar: 1960
• 4 slaapkamers
• Balkon op het zuiden
• Vrij uitzicht op groen
• Tuin aan achterzijde (noordelijk gelegen)
• Rustige, kindvriendelijke buurt
• Energielabel E – woning dient gemoderniseerd te worden
• Volop mogelijkheden om de woning naar eigen smaak te vernieuwen
Ben jij op zoek naar ruimte, rust én een woning die je helemaal naar jouw wensen kunt maken? Laat deze kans niet voorbijgaan en plan snel een bezichtiging bij Blanckerhofweg 8 in Alkmaar!
Kenmerken
Overdracht
- Laatste vraagprijs
- € 350.000 kosten koper
- Vraagprijs per m²
- € 2.893
- Status
- Verkocht
Bouw
- Soort woonhuis
- Eengezinswoning, tussenwoning
- Soort bouw
- Bestaande bouw
- Bouwjaar
- 1960
- Specifiek
- Kluswoning
- Soort dak
- Zadeldak bedekt met pannen
Oppervlakten en inhoud
- Gebruiksoppervlakten
- Wonen
- 121 m²
- Gebouwgebonden buitenruimte
- 9 m²
- Externe bergruimte
- 8 m²
- Perceel
- 165 m²
- Inhoud
- 409 m³
Indeling
- Aantal kamers
- 6 kamers (4 slaapkamers)
- Aantal badkamers
- 1 badkamer en 1 apart toilet
- Badkamervoorzieningen
- Douche en wastafel
- Aantal woonlagen
- 2 woonlagen en een zolder
- Voorzieningen
- Rookkanaal
Energie
- Energielabel
- Verwarming
- Cv-ketel
- Warm water
- Cv-ketel
- Cv-ketel
- Intergas (gas gestookt combiketel uit 2024, eigendom)
Kadastrale gegevens
- ALKMAAR D 525
- Kadastrale kaart
- Oppervlakte
- 165 m²
- Eigendomssituatie
- Volle eigendom
Buitenruimte
- Ligging
- Aan park, aan rustige weg, in woonwijk en vrij uitzicht
- Tuin
- Achtertuin en voortuin
- Achtertuin
- 44 m² (7,00 meter diep en 6,30 meter breed)
- Ligging tuin
- Gelegen op het noorden bereikbaar via achterom
- Balkon/dakterras
- Balkon aanwezig
Bergruimte
- Schuur/berging
- Vrijstaande stenen berging
Parkeergelegenheid
- Soort parkeergelegenheid
- Openbaar parkeren
Foto's 49
© 2001-2026 funda
















































