
Omschrijving
Ervaar het ultieme woongenot op een schitterende locatie in de wijk Aalderinkshoek met dit goed onderhouden appartement, gelegen op de eerste verdieping die te bereiken is via de lift.
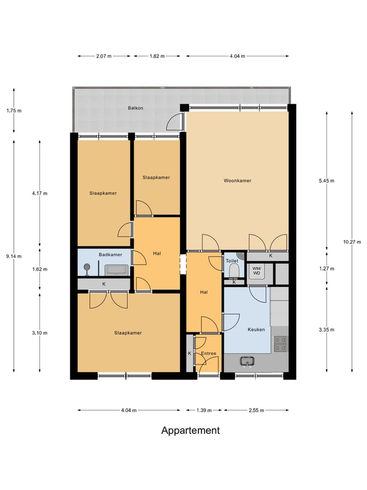
We nemen je mee de woning in!
Zodra je de voordeur opent en de hal van het appartement betreedt, word je begroet met een gevoel van gemak en comfort. De prachtig afgewerkte keuken, compleet met inbouwapparatuur, straalt uitnodiging en efficiëntie uit, met ruime opbergmogelijkheden die direct opvallen.
Als we de keuken uitlopen en de woonkamer betreden, wordt meteen duidelijk dat er veel natuurlijk licht de ruimte binnenstroomt door het grote raam, voorzien van hoogwaardig HR++ glas en omringd door kunststof kozijnen. Dit is een uitnodigende ruimte waar je zowel met elkaar als met vrienden kunt ontspannen. Wil je even wat frisse lucht? Geen probleem! Stap op het balkon en geniet van het heerlijke zitje met een prachtig uitzicht.
Laten we eens een kijkje nemen in de slaapkamers van dit appartement. Hier bevinden zich maar liefst drie slaapkamers, waaronder een ruime master bedroom, een gezellige kinderkamer en een multifunctionele kantoor- of gamekamer.
Een prachtig afgewerkte badkamer, compleet met alle benodigde voorzieningen om mee af te sluiten.
Nieuwsgierig geworden? Neem snel contact met ons op om een bezichtiging in te plannen.
Bijzonderheden;
- pvc vloer
- Kunststof kozijnen
- HR++ glas
- Hor voor elk raam dat opengezet kan worden
- Elektrisch zonnescherm
- VVE bijdrage 175,- euro
Kenmerken
Overdracht
- Laatste vraagprijs
- € 200.000 kosten koper
- Vraagprijs per m²
- € 2.500
- Status
- Verkocht
- Bijdrage VvE
- € 175,00 per maand
Bouw
- Soort appartement
- Galerijflat (appartement)
- Soort bouw
- Bestaande bouw
- Bouwjaar
- 1966
- Specifiek
- Gedeeltelijk gestoffeerd
- Soort dak
- Plat dak bedekt met bitumineuze dakbedekking
Oppervlakten en inhoud
- Gebruiksoppervlakten
- Wonen
- 80 m²
- Gebouwgebonden buitenruimte
- 10 m²
- Externe bergruimte
- 10 m²
- Inhoud
- 256 m³
Indeling
- Aantal kamers
- 4 kamers (3 slaapkamers)
- Aantal badkamers
- 1 apart toilet
- Aantal woonlagen
- 6 woonlagen
- Voorzieningen
- Glasvezelkabel, lift, natuurlijke ventilatie, en zonnepanelen
- Gelegen op
- 1e woonlaag
Energie
- Energielabel
- C
- Isolatie
- HR-glas en volledig geïsoleerd
- Verwarming
- Cv-ketel
- Warm water
- Cv-ketel
- Cv-ketel
- Agpo Ferolli (gas gestookt combiketel uit 2006, eigendom)
Kadastrale gegevens
- AMBT-ALMELO I 2738
- Kadastrale kaart
- Eigendomssituatie
- Volle eigendom
- AMBT-ALMELO I 2738
- Kadastrale kaart
- Eigendomssituatie
- Volle eigendom
Buitenruimte
- Ligging
- In woonwijk
Bergruimte
- Schuur/berging
- Inpandig
- Voorzieningen
- Elektra
- Isolatie
- Geen isolatie
Parkeergelegenheid
- Soort parkeergelegenheid
- Openbaar parkeren
VvE checklist
- Inschrijving KvK
- Ja
- Jaarlijkse vergadering
- Ja
- Periodieke bijdrage
- Ja (€ 175,00 per maand)
- Reservefonds aanwezig
- Ja
- Onderhoudsplan
- Ja
- Opstalverzekering
- Ja
Foto's 30
© 2001-2025 funda





























